8355 County 9 Road, Clearview, Ontario L0M 1G0

Listed for:
$789,000
2 beds
1 baths
Listed 115 days ago
House for rent: 8355 County 9 Road, Clearview, Ontario L0M 1G0

View all 33 photos

Learn more about this property
Listing provided by:
Century 21 Millennium Inc.
MLS® number:
S12302521
Agent:
Wendy Donnelly
*Indicates required field
Name is required
Email is required
Please enter a valid phone number (e.g., 416-111-1111).

About

Cross Streets: County 9 Road and Sideroad 9, Creemore. ** Directions: Take County Rd 9 - West of Creemore to sign. Tranquil Riverfront Retreat on the Noisy River Near Creemore, Ontario Escape to the peaceful sounds of flowing water and nature on this enchanting riverfront property nestled along the picturesque Noisy River, just minutes from the charming village of Creemore. This cozy and well-maintained 2-bedroom, 1-bathroom home is perfectly positioned on a gently sloping lot that offers stunning views of the river below and lush, mature landscaping throughout. Whether you're sipping your morning coffee on the deck or enjoying a quiet evening around the firepit, the natural beauty of this property surrounds you. Inside, the home offers a warm and inviting atmosphere with an open living space, functional kitchen, and comfortable bedrooms all designed to make the most of this unique setting. A separate bunkie provides extra space for guests or a quiet retreat, while an additional storage building adds practicality for tools, gear, or hobby supplies. Whether you are looking for a weekend getaway, a full-time residence, or a peaceful artists retreat, this idyllic riverfront property offers unmatched tranquility with easy access to Creemore's boutique shops, cafés, markets, and year-round community events. Your peaceful riverside lifestyle awaits! (id:27476)

Property Highlights

MLS® Number
S12302521
Type
Single Family
Community Name
Rural Clearview
Ownership Type
Freehold
Land Size
198 x 96.9 FT ; Rectangular|under 1/2 acre
Parking Space Total
6

Building

Building Type
House
Square Footage
700 - 1100 sqft
Bathrooms Total
1
Bedrooms Above Ground
2
Bedrooms Total
2
Amenities
Fireplace(s) Ski area
Exterior Finish
Wood
Fireplace Present
Yes
Basement Type
Crawl space
Basement Features
Building Heating Type
Baseboard heaters
Heating Fuel
Electric
Building Cooling Type
None

Utilities

Water
Dug Well
Utility Sewer
Septic System

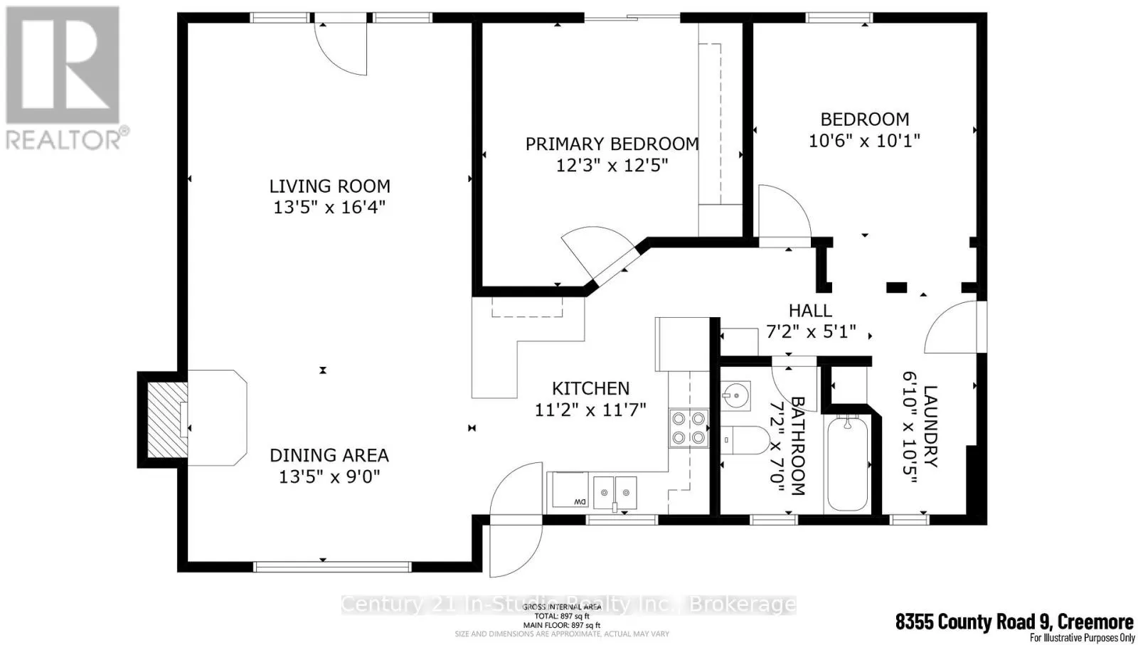
Room Layout

Primary Bedroom
Main level
3.73 m x 3.78 m
Bedroom 2
Main level
3.2 m x 3.07 m
Kitchen
Main level
3.4 m x 3.53 m
Living room
Main level
4.09 m x 4.98 m
Dining room
Main level
4.09 m x 2.74 m
Bathroom
Main level
2.18 m x 2.13 m
Foyer
Main level
2.18 m x 1.55 m
Laundry room
Main level
2.08 m x 3.18 m

Location

Street Spotlight - For sale