1862 Sunnidale 6/7 Side Road, Clearview, Ontario L0M 1S0

Listed for:
$1,999,950
4 beds
3 baths
Listed 107 days ago
House for rent: 1862 Sunnidale 6/7 Side Road, Clearview, Ontario L0M 1S0

View all 50 photos

Learn more about this property
Listing provided by:
Royal LePage Locations North
MLS® number:
S12419129
Agent:
Justin Henri Bischoff
*Indicates required field
Name is required
Email is required
Please enter a valid phone number (e.g., 416-111-1111).

About

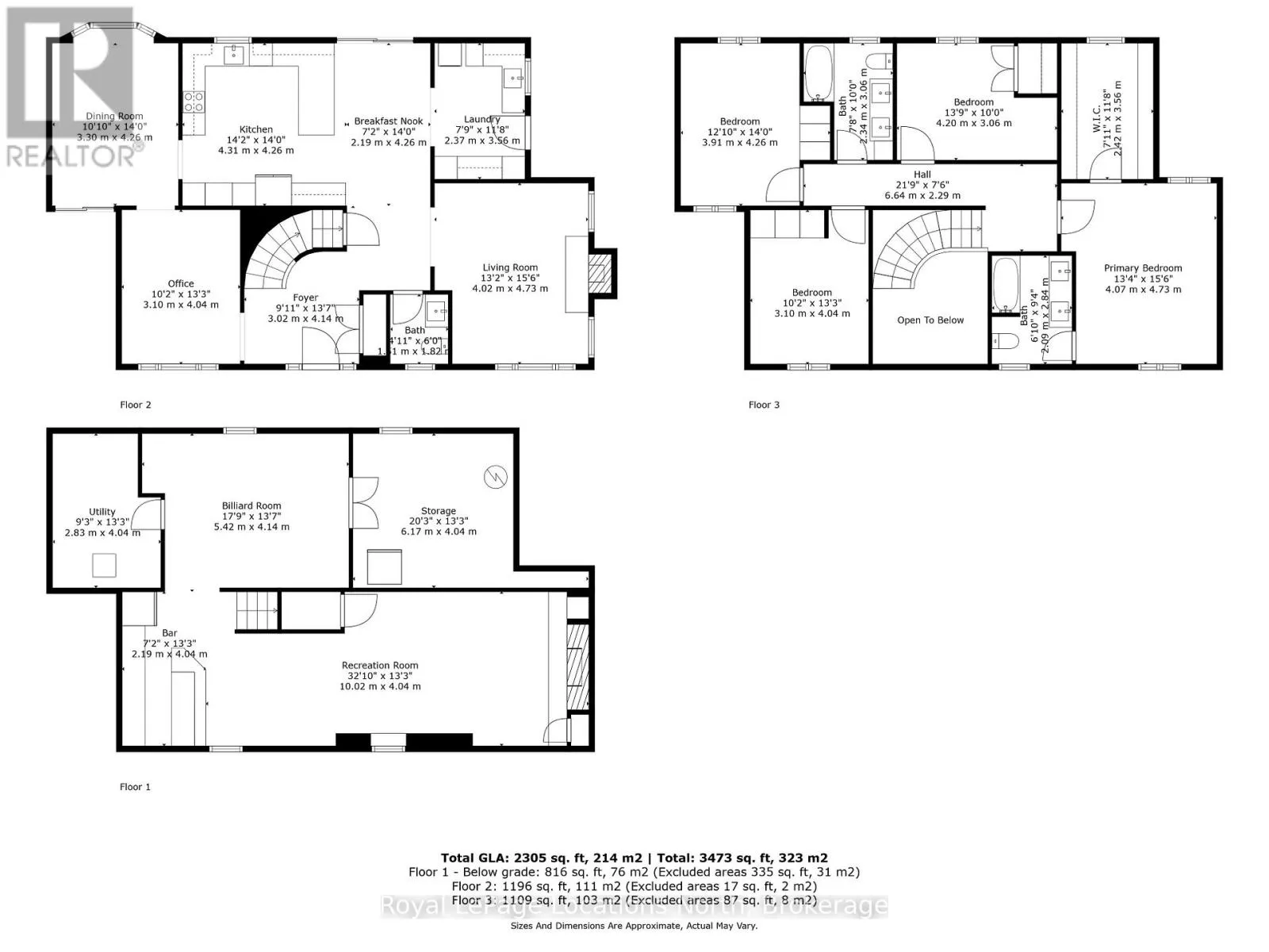
Cross Streets: Concession Sideroad 7. ** Directions: Take Concession Rd 6 West to Sunnidale Sideroad 6 North. Property is on the left. Welcome to 1862 Sunnidale 6/7 Sideroad, a private 50-acre retreat that blends modern luxury with peaceful country living. Situated just 30 minutes from both Barrie and The Blue Mountains, this estate is perfectly positioned for convenience, recreation, and tranquility.This fully renovated 4-bedroom, 3-bathroom home has been thoughtfully designed with a bright, open layout. The heart of the home is the brand-new chefs kitchen, featuring all KitchenAid stainless steel appliances, an induction cooktop, sleek cabinetry, and ample counter space perfect for everyday living and entertaining. Throughout the home, youll find new oak flooring and travertine tile, stylish pot lights, and a redesigned mudroom/laundry. Every detail has been carefully considered, delivering a true move-in ready experience.Step outside and discover your own private paradise. A sparkling above ground swimming pool with full deck surround provides the ideal space for summer gatherings. Over 2 km of private walking and ATV trails wind through the forest, while a picturesque pond offers year-round enjoyment from skating in winter to quiet relaxation in summer. The cleared field is well-suited for horses, with space to add your own paddock.For hobbyists and tradespeople, the 20x40 heated detached garage is a standout, separated into two functional areas: one side serves as a fully heated workshop, while the other offers secure vehicle storage. With ample space for equipment, tools, or toys, this property is as practical as it is beautiful.Adding even more value, the estate offers the potential for an Accessory Dwelling Unit (ADU). Whether for extended family, private guest accommodations this flexibility makes the property an exceptional long-term investment.More than just a home, this is a lifestyle property one that invites you to host family and friends, explore nature, or simply retreat into the comfort of your own private estate. (id:27476)

Property Highlights

MLS® Number
S12419129
Type
Single Family
Community Name
Rural Clearview
Ownership Type
Freehold
Land Size
1155 x 1952 Acre|50 - 100 acres
Parking Space Total
31

Building

Building Type
House
Storeys
2.00
Square Footage
2000 - 2500 sqft
Bathrooms Total
3
Bedrooms Above Ground
4
Bedrooms Total
4
Amenities
Separate Heating Controls
Exterior Finish
Vinyl siding
Fireplace Present
Yes
Basement Type
Full (Finished)
Basement Features
Building Heating Type
Forced air
Heating Fuel
Oil
Building Cooling Type
Central air conditioning

Utilities

Water
Bored Well
Utility Sewer
Septic System

Location

Community Spotlight: Homes For sale in Your Neighborhood