8223 30/31 Side Road, Clearview, Ontario L0M 1P0

Listed for:
$1,100,000
3 beds
3 baths
Listed 20 days ago
House for rent: 8223 30/31 Side Road, Clearview, Ontario L0M 1P0

View all 46 photos

About

Cross Streets: HWY 124. ** Directions: HWY 124 TO 30/31 SDRD. Country Living, Minutes from Town! Wake up to birdsong, enjoy nature in your backyard, and explore the nearby Bruce Trail, all just 10 minutes from Collingwood! Discover this charming 3-bedroom 3 bath 3859sqft home nestled on over 2 acres in a serene setting with easy access to Collingwood, Blue Mountain and the Bruce Trail. Enjoy the sun-filled eat-in kitchen with walkout to the backyard, where you'll be surrounded by trees, birds, and privacy. Featuring a family room with propane gas fireplace and formal living room with vaulted ceilings and wood burning fireplace. Heat Pump offers economical heating throughout. Brand new water softener system. The full, partially finished basement offers plenty of space to customize, while the current laundry, storage, and workshop area could be converted back into an attached double-car garage. A separate detached two-car garage, ample parking, and sweeping views add to the appeal. On school bus route. This property offers endless potential, bring your ideas and make it your own! (id:27476)

Property Highlights

MLS® Number
S12692666
Type
Single Family
Community Name
Rural Clearview
Ownership Type
Freehold
Land Size
199.8 x 462.9 FT|2 - 4.99 acres
Parking Space Total
8

Building

Building Type
House
Storeys
2.00
Square Footage
3000 - 3500 sqft
Bathrooms Total
3
Bedrooms Above Ground
3
Bedrooms Total
3
Amenities
Fireplace(s) Place of Worship
Exterior Finish
Stone, Stucco
Fireplace Present
Yes
Basement Type
Full (Partially finished)
Basement Features
Building Heating Type
Heat Pump, Not known
Heating Fuel
Electric, Other
Building Cooling Type
Central air conditioning

Utilities

Water
Drilled Well
Utility Sewer
Septic System

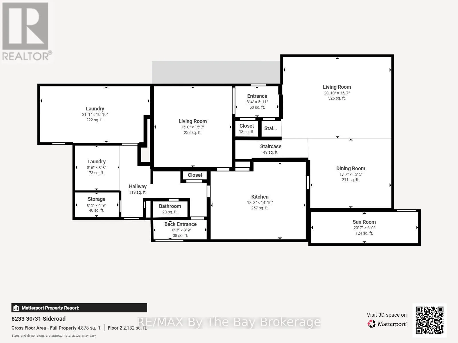
Room Layout

Primary Bedroom
Second level
2.44 m x 4.57 m
Bedroom
Second level
2.44 m x 4.05 m
Bedroom 2
Second level
2.47 m x 3.69 m
Kitchen
Main level
4.51 m x 5.58 m
Dining room
Main level
4.08 m x 4.75 m
Living room
Main level
4.75 m x 6.64 m
Family room
Main level
4.75 m x 4.75 m
Laundry room
Main level
2.62 m x 2.59 m
Workshop
Main level
3.32 m x 6.43 m
Sunroom
Main level
1.83 m x 6.28 m

Location

Learn more about this property
Listing provided by:
RE/MAX By The Bay Brokerage
MLS® number:
S12692666
Agent:
Cathy Wilde
*Indicates required field
Name is required
Email is required
Please enter a valid phone number (e.g., 416-111-1111).

Community Spotlight: Homes For sale in Your Neighborhood