Part 2 Charles Wilson Parkway, Cobourg, Ontario K9A 0L2

Listed for:
$1,099,900
3 beds
3 baths
Listed 151 days ago
House for rent: Part 2 Charles Wilson Parkway, Cobourg, Ontario K9A 0L2

View all 4 photos

Learn more about this property
Listing provided by:
ROYAL LEPAGE PROALLIANCE REALTY
MLS® number:
X12236037
Agent:
Lindsey Edwards
*Indicates required field
Name is required
Email is required
Please enter a valid phone number (e.g., 416-111-1111).

About

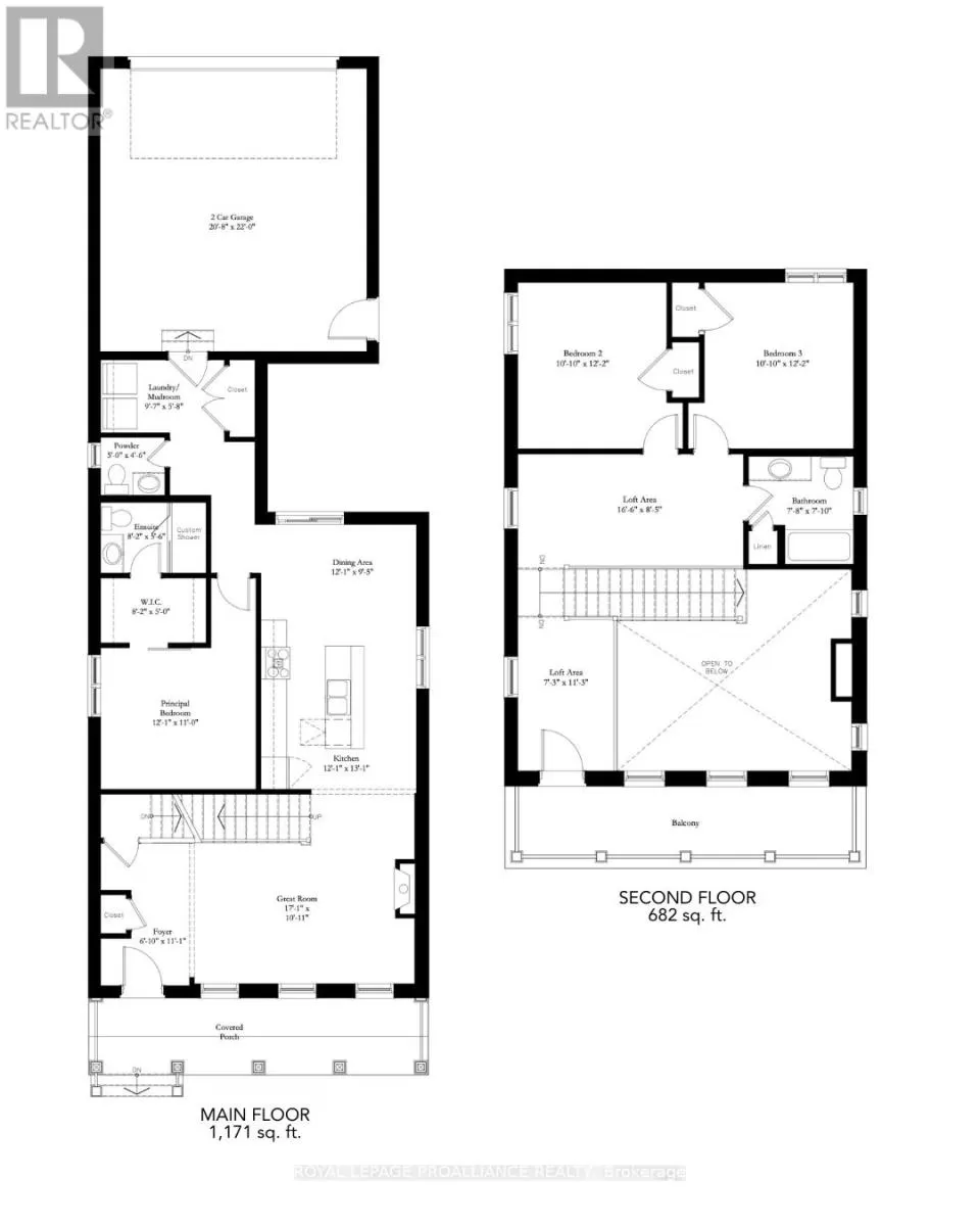
Cross Streets: New Amherst Blvd. ** Directions: Elgin St W to New Amherst Blvd, to Charles Wilson Pkwy. Located on Charles Wilson Parkway in the sought-after New Amherst community, this beautifully designed to-be-built 1,853 sq. ft. two-storey home blends classic architectural styling with modern finishes offering the perfect balance of comfort, style, and functionality.With 3 bedrooms and 2.5 bathrooms, this thoughtfully planned home suits families, professionals, or anyone looking for a low-maintenance lifestyle in a vibrant, walkable neighbourhood. The main floor features a spacious principal suite complete with walk-in closet and private ensuite. A main floor laundry room adds practical efficiency, while the open-concept kitchen, dining, and living areas are perfect for entertaining or everyday ease. Large windows and double front porch access offer a strong connection to the outdoors and sweeping views of the central park. Upstairs, two generous bedrooms, a full bath, and a versatile loft-style sitting area make an ideal family room, home office, or play space. An attached two-car garage at the rear preserves the community's classic streetscape, while the full masonry exterior ensures durability and curb appeal. **Premium features that are standard in all New Amherst homes: Quartz counters in kitchen and all bathrooms, luxury vinyl plank flooring throughout, Benjamin Moore paint, custom colour exterior windows, high-efficiency gas furnace, central air conditioning, Moen Align faucets, smooth 9' ceilings on the main-floor, 8' ceilings on 2nd floor and in the basement, 200amp panel, a fully sodded property & asphalt driveway** Note: Photos are artist's renderings (id:27476)

Property Highlights

MLS® Number
X12236037
Type
Single Family
Community Name
Cobourg
Maintenance Fee
45.00
Ownership Type
Freehold
Land Size
36 x 103.5 FT
Parking Space Total
4

Building

Building Type
House
Storeys
2.00
Square Footage
1500 - 2000 sqft
Bathrooms Total
3
Bedrooms Above Ground
3
Bedrooms Total
3
Amenities
Golf Nearby, Beach, Hospital, Park
Exterior Finish
Brick
Fireplace Present
No
Basement Type
Full (Unfinished)
Basement Features
Building Heating Type
Forced air
Heating Fuel
Natural gas
Building Cooling Type
Central air conditioning

Utilities

Water
Municipal water
Utility Sewer
Sanitary sewer

Room Layout

Loft
Second level
2.21 m x 3.43 m
Loft
Second level
5.03 m x 2.57 m
Bedroom 2
Second level
3.3 m x 3.71 m
Bedroom 3
Second level
3.3 m x 3.71 m
Great room
Main level
5.21 m x 3.33 m
Kitchen
Main level
3.68 m x 3.99 m
Dining room
Main level
3.68 m x 2.87 m
Primary Bedroom
Main level
3.68 m x 3.35 m
Mud room
Main level
2.92 m x 1.73 m

Location

Street Spotlight - For sale