Unit 10a - 609 William Street, Cobourg, Ontario K9A 3A5

Listed for:
$15
0 beds
0 baths
Listed 135 days ago
Multi-Tenant Industrial for rent: Unit 10a - 609 William Street, Cobourg, Ontario K9A 3A5

View all 3 photos

Learn more about this property
Listing provided by:
CENTURY 21 ALL-PRO REALTY (1993) LTD.
MLS® number:
X12260020
Agent:
Tony Dekeyser
*Indicates required field
Name is required
Email is required
Please enter a valid phone number (e.g., 416-111-1111).

About

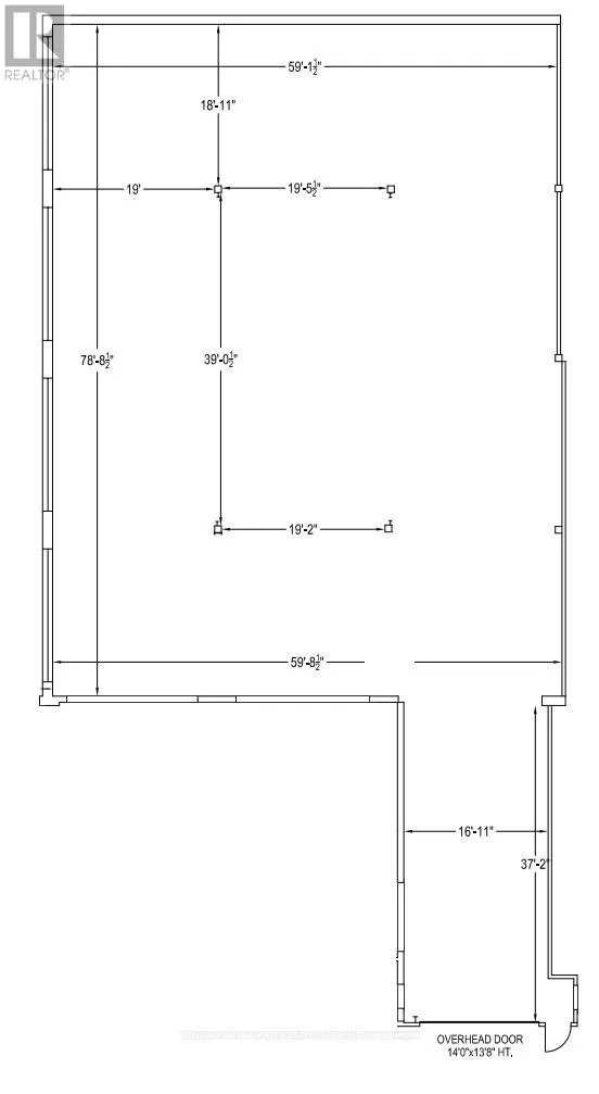
Cross Streets: HARDEN. ** Directions: OFF HARDEN STREET. This unit is $15 per square foot + $4 TMI. Available immediately. This 5,500 square foot open-concept industrial flex space includes a large 14-foot remote bay door access and is located at the south-end of the beautiful and well-maintained 609 William St. Plaza between downtown Cobourg and HWY 401. Zoned for commercial, light-industrial, and office, this space offers an exceptional opportunity to work with the landlord to design and develop a unit to your exact specifications with the potential for future expansion into additional warehouse space! Viewings available upon request. (id:27476)

Property Highlights

MLS® Number
X12260020
Type
Industrial
Community Name
Cobourg

Building

Building Type
Multi-Tenant Industrial
Square Footage
5497 sqft
Fireplace Present
No
Basement Type
Basement Features
Building Heating Type
Forced air
Heating Fuel
Natural gas
Building Cooling Type
None

Utilities

Water
Municipal water

Location