1004 Ontario Street, Cobourg, Ontario K9A 3C7

Listed for:
$399,000
0 beds
0 baths
Listed 125 days ago
1004 Ontario Street, Cobourg, Ontario K9A 3C7

View all 18 photos

Learn more about this property
Listing provided by:
CENTURY 21 ALL-PRO REALTY (1993) LTD.
MLS® number:
X12289142
Agent:
Denise Eileen Liboiron
*Indicates required field
Name is required
Email is required
Please enter a valid phone number (e.g., 416-111-1111).

About

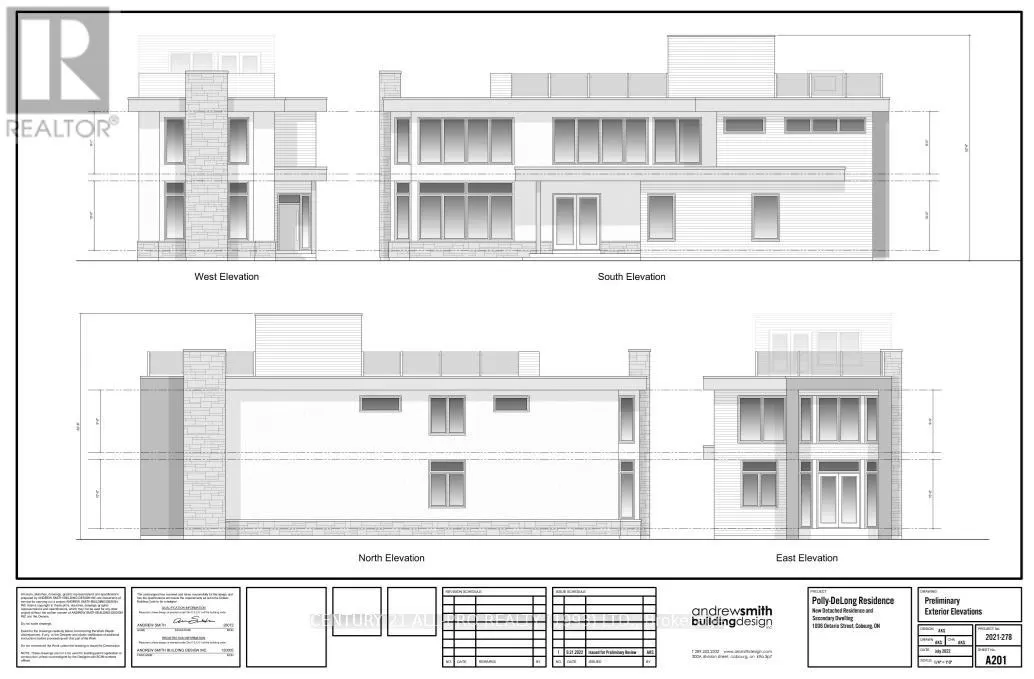
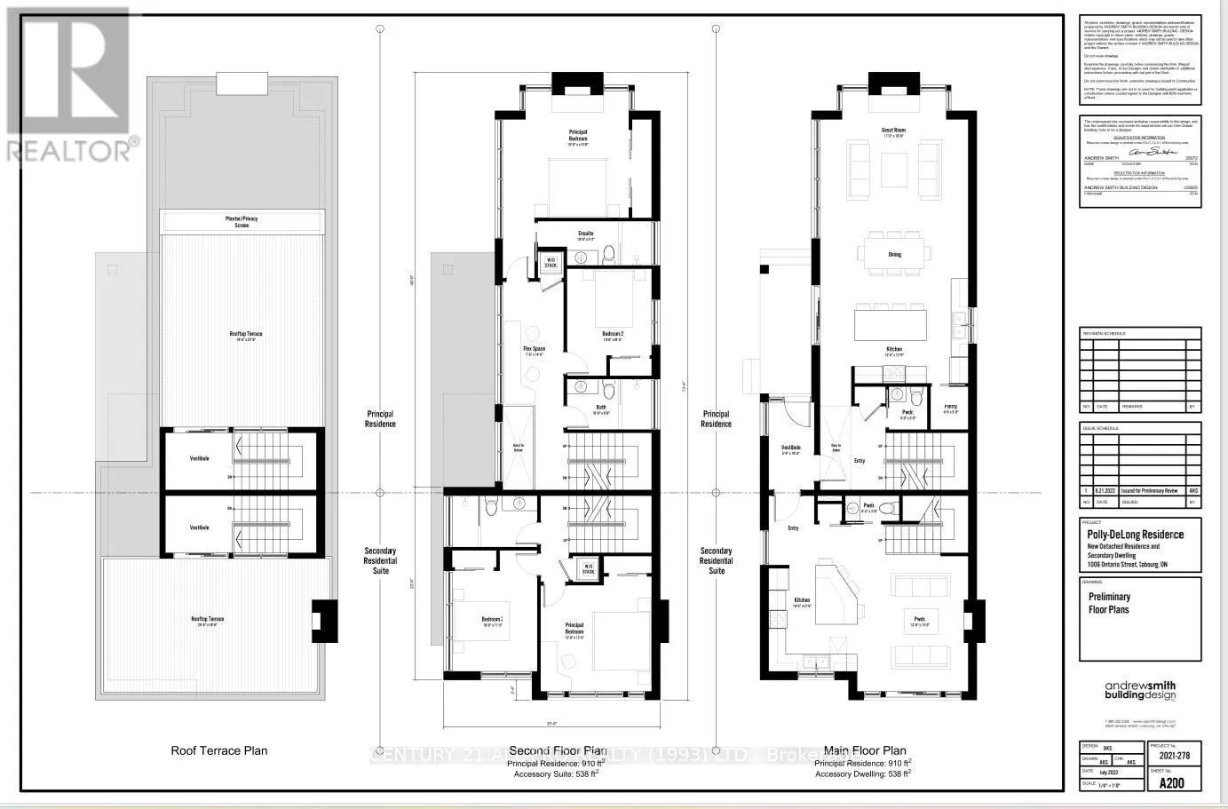
Cross Streets: Elgin & Division. ** Directions: Division St Cobourg Exit from 401 West on Elgin to Ontario St. Builders, Investors & Golfers! Vacant Land in a perfect Location zoned R2. Approvals & concept drawings available for a Duplex. Survey/Severance & Concept drawings paid by owners available for your use to build Duplex or Design your own build. Property backs onto The Mill Executive Golf Course, Historic Restaurant & Event Centre. Build your next investment property in this excellent neighbourhood of nicely landscaped & well-renovated custom homes surrounded by mature trees. Would suit also a Single Family home or townhomes. Build to suit for others, or live in one & rent out the other, or keep & Rent both units. A few trees to clear only. Now is a great time to provide needed housing in this growing Town 100 KM from Toronto 1km to 401/407 route, VIA Station, Beach, Yacht Club, Marina, Tourist Downtown Dining & Shopping district. Services on the street. Buyer to pay development costs/service hookup. Excellent Cobourg new-build lot freshly severed & ready to go for your next project. (id:27476)

Property Highlights

MLS® Number
X12289142
Type
Vacant Land
Community Name
Cobourg
Land Size
45.16 x 163.99 FT ; 163.99 ft x 45.16 ft x 167.08 ft x45.10

Building

Square Footage
7373 sqft
Amenities
Public Transit, Recreation
Fireplace Present
No
Basement Type
Basement Features
Building Heating Type
Heating Fuel
Building Cooling Type

Utilities

Water
Municipal water

Location