B2-a/b/c - 432 King Street E, Cobourg, Ontario K9A 1M6

Listed for:
$40
0 beds
0 baths
Listed 85 days ago
B2-a/b/c - 432 King Street E, Cobourg, Ontario K9A 1M6

View all 7 photos

About

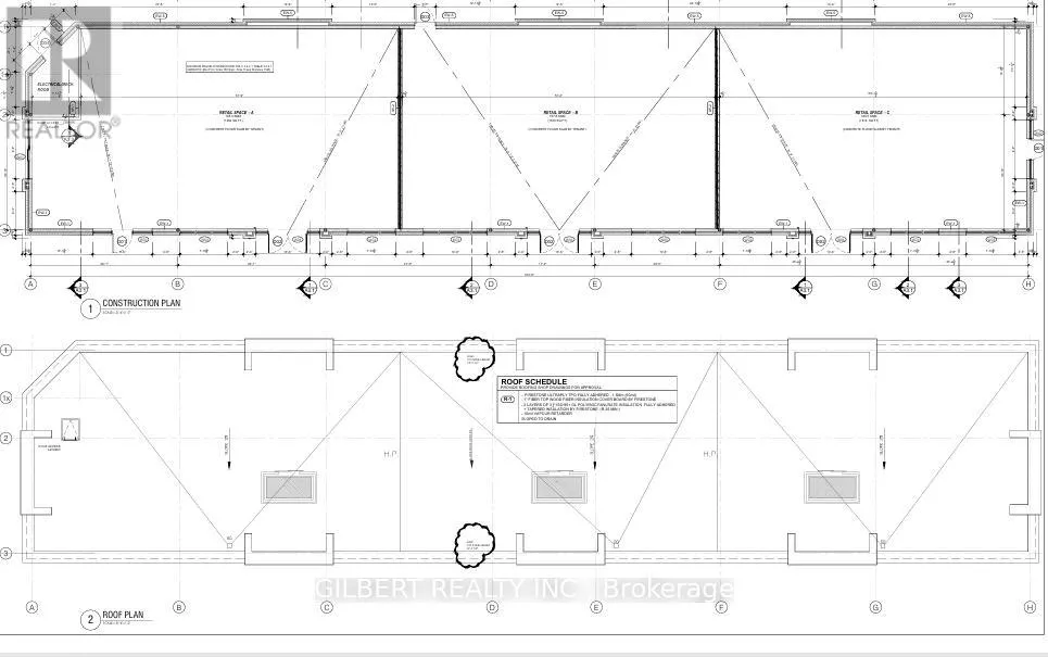
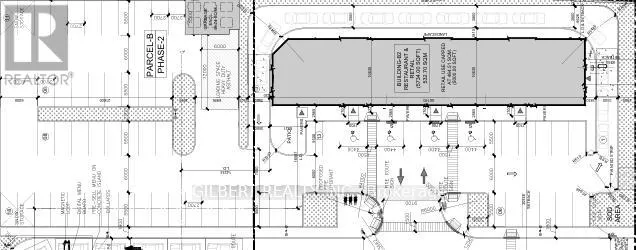
Cross Streets: King Street East/Brock Road North. ** Directions: Corner of King Street East/Brock Road North. NEWLY BUILT RETAIL OPPORTUNITY AVAILABLE FOR LEASE IN COBOURG. HIGH VISIBILITY CORNER (KING ST E/BROOK RD N) ANCHORED BY TIM HORTON'S NEXT TO RESIDENTIAL. THIS NEW 5,614 SF DEVELOPMENT CAN BE PARTITIONED INTO 2 or 3 SMALLER UNITS. DESIRABLE DC-30 ZONING PERMITTING A WIDE RANGE OF RETAIL USES. AMPLE PARKING WITH DRIVE THROUGH & PATIO SPACE AVAILABLE. BUILDING SHELL NOW COMPLETE ALLOWING FOR ANY TENANT LAYOUT OR CONFIGURATION TO BE ACCOMODATED. DRIVE THROUGH AVAILABLE. (id:27476)

Property Highlights

MLS® Number
X12441065
Type
Retail
Community Name
Cobourg

Building

Square Footage
5614 sqft
Fireplace Present
No
Basement Type
Basement Features
Building Heating Type
Forced air
Heating Fuel
Natural gas
Building Cooling Type
Fully air conditioned

Utilities

Water
Municipal water

Location

Learn more about this property
Listing provided by:
GILBERT REALTY INC.
MLS® number:
X12441065
Agent:
Justin Luca Cescolini
*Indicates required field
Name is required
Email is required
Please enter a valid phone number (e.g., 416-111-1111).

Street Spotlight - For lease