Lot 24 Mccarty Drive, Cobourg, Ontario K9A 4J9

Listed for:
$1,654,550
3 beds
3 baths
Listed 9 days ago
House for rent: Lot 24 Mccarty Drive, Cobourg, Ontario K9A 4J9

View all 13 photos

About

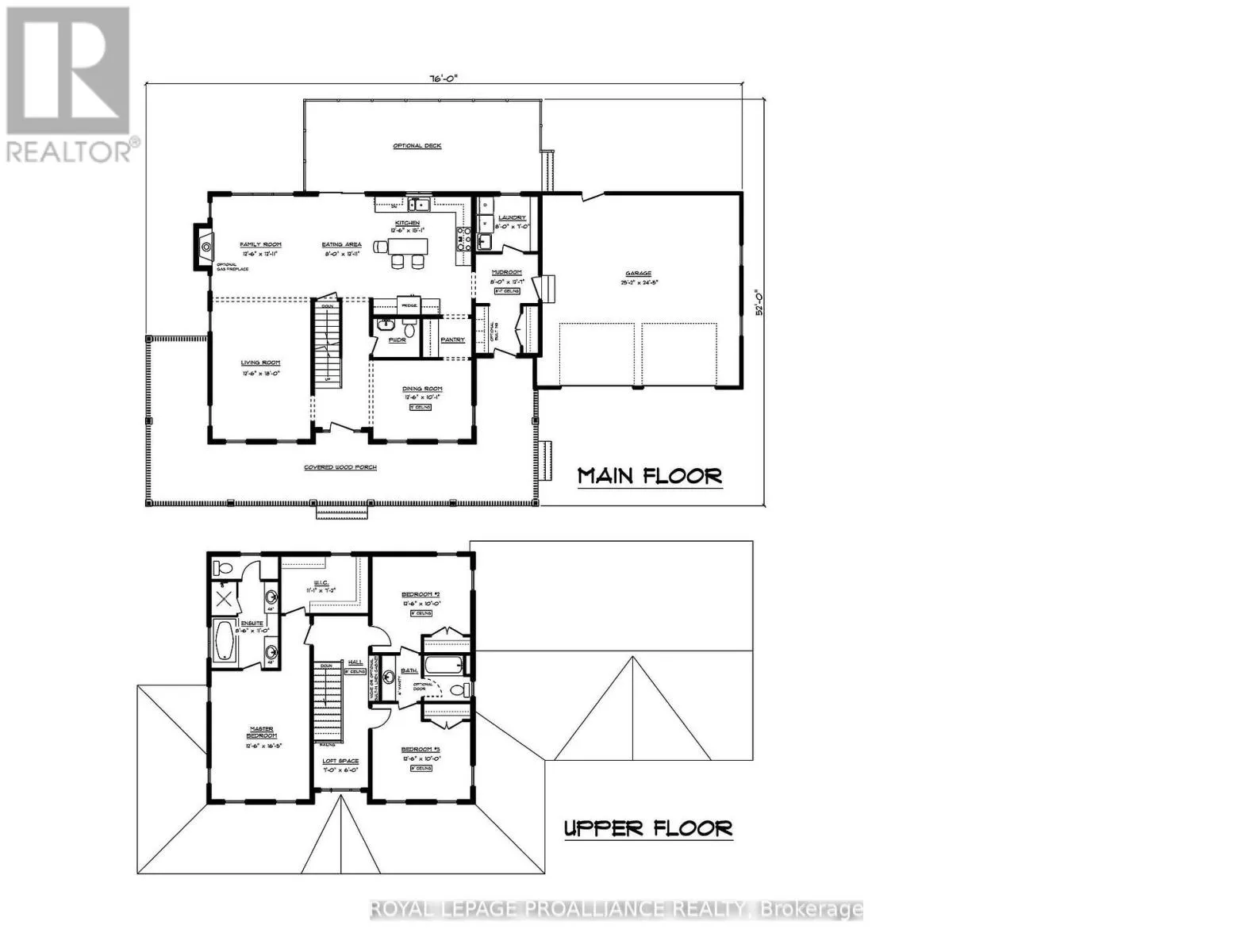
Fawn Hill Crt/McCarty Dr Stalwood Homes presents "The Cole Estate", an impressive 3 Bedroom, 2.5 Bath new construction home, nestled amongst executive homes in the community of Deerfield Estates. Enjoy panoramic views of the countryside from your 1.3 acre property, just minutes to Cobourg with all amenities plus so much more! This 2 storey home boasts numerous upgrades one would expect in a quality build such as this one, featuring soaring 9 ft ceilings on the main floor, gorgeous luxury flooring, oak staircase and modern fixtures & finishes throughout. The Gourmet Kitchen isa Chef's dream, offering custom decor cabinetry, quartz countertops, an Island with breakfast bar, and a Butler Pantry leading into the formal Dining Room. Relax in the Great Room, a perfect place to add a gas fireplace to cozy up to. Retreat to your Primary suite which offers a massive walk in closet and a Luxury 5 pc ensuite with Walk-In Glass & Tile shower, double vanity and a soaker tub. Two additional large bedrooms with a main 4 pc Bathroom complete the second floor. Lower level with a walk out, can be finished now or later to allow for additional living space, or leave unfinished for hobbies or plenty of storage. Added features include a double car garage with direct inside access, natural gas, municipal water and Fibre Internet to easily work from home. 3 lots available and several floor plans to choose from! Only a short drive to the GTA, and minutes to the beautiful lakeside city of Cobourg, with its amazing waterfront, beaches, restaurants and shopping. Welcome Home to Deerfield Estates! (id:27476)

Property Highlights

MLS® Number
X12767136
Type
Single Family
Community Name
Cobourg
Ownership Type
Freehold
Land Size
125.8 x 290.7 FT ; IRREGULAR
Parking Space Total
4

Building

Building Type
House
Storeys
2.00
Square Footage
2000 - 2500 sqft
Bathrooms Total
3
Bedrooms Above Ground
3
Bedrooms Total
3
Amenities
Hospital, Golf Nearby
Exterior Finish
Vinyl siding
Fireplace Present
No
Basement Type
Full (Unfinished)
Basement Features
Building Heating Type
Forced air
Heating Fuel
Natural gas
Building Cooling Type
Central air conditioning, Air exchanger

Utilities

Water
Municipal water
Utility Sewer
Septic System

Room Layout

Primary Bedroom
Second level
2.84 m x 5.02 m
Bedroom
Second level
3.84 m x 3.04 m
Bedroom
Second level
3.84 m x 3.04 m
Kitchen
Main level
3.84 m x 4.6 m
Eating area
Main level
2.43 m x 3.69 m
Dining room
Main level
3.84 m x 3.07 m
Family room
Main level
3.84 m x 3.68 m
Living room
Main level
3.84 m x 5.48 m
Mud room
Main level
2.43 m x 3.87 m
Laundry room
Main level
2.43 m x 2.13 m

Location

Learn more about this property
Listing provided by:
ROYAL LEPAGE PROALLIANCE REALTY
MLS® number:
X12767136
Agent:
Diana Scott
*Indicates required field
Name is required
Email is required
Please enter a valid phone number (e.g., 416-111-1111).

Community Spotlight: Homes For sale in Your Neighborhood