202 - 515 (blk 59) Joseph Gale Street, Cobourg, Ontario K9A 1K5

Listed for:
$379,000
0 beds
1 baths
Listed 26 days ago
Row / Townhouse for rent: 202 - 515 (blk 59) Joseph Gale Street, Cobourg, Ontario K9A 1K5

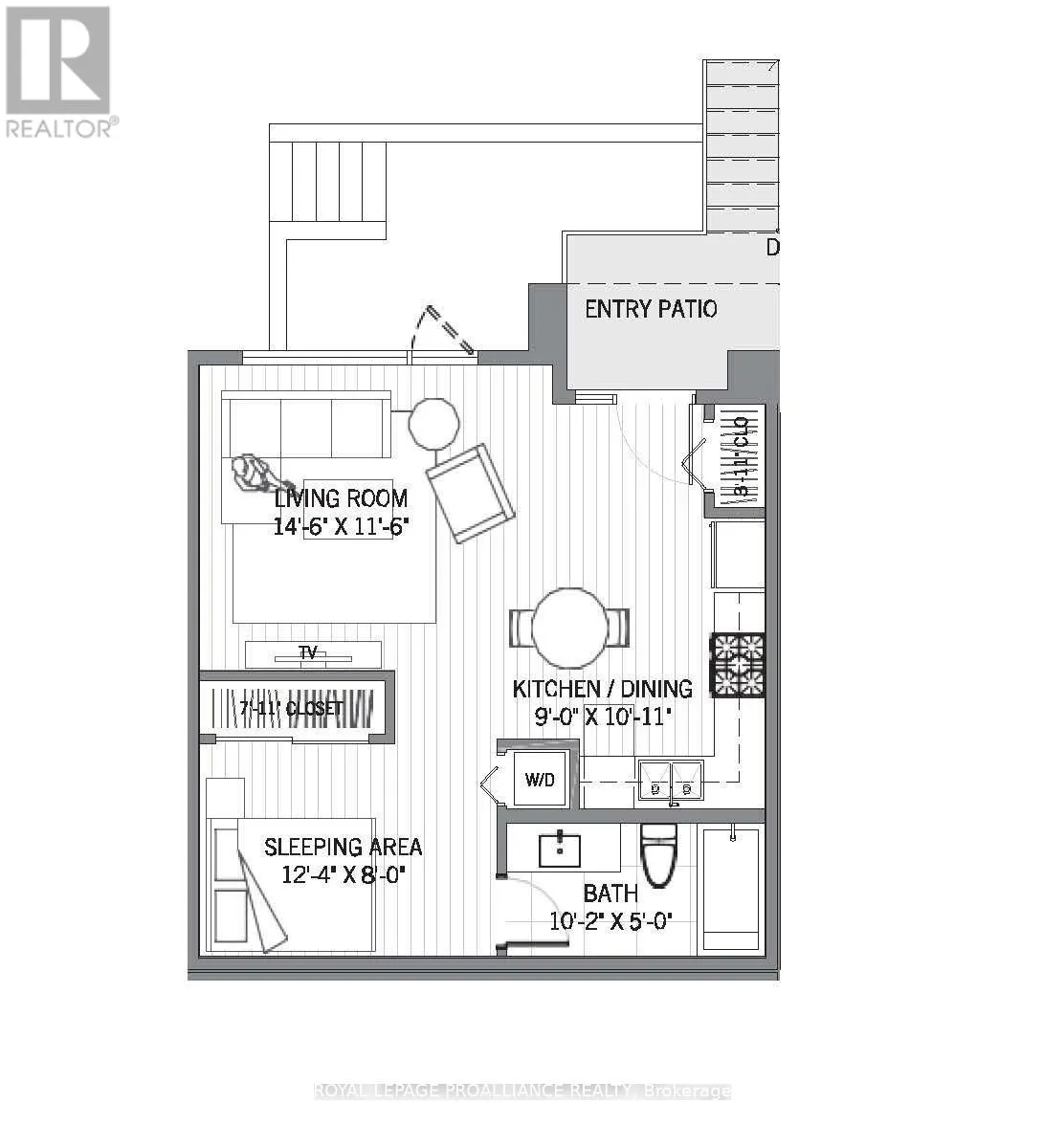
View all 14 photos

About

Maplewood Blvd/Joseph Gale STUDIO24 townhouse condo units in Cobourg's sought after EAST VILLAGE are almost complete! Located a walk or bike ride distance to Lake Ontario's vibrant waterfront, beaches, downtown, shopping, parks and restaurants, an amazing location. Built by Stalwood Homes, these affordable studios are perfect for the first time home buyer, professional or down-sizer. Beautiful modern finishes enhanced with 9 ft ceilings. Open concept living room and stylish kitchen with Stainless Steel appliances. Convenient in suite laundry with a stackable Washer & Dryer. Luxury Vinyl Plank throughout with tiled washroom. Purchaser customizes colours and finishes and also enjoys a $5000 upgrade allowance! Fibre Internet available, HRV for healthy living, heat pump provides primary heating/cooling, owned hot water tank. Lawn Care And Snow Removal included in condo fees, along with one designated parking space and visitor parking is on-site. Easy access to the 401 corridor, convenient Cobourg VIA stop, and just a 45-minute drive to the Oshawa GO. Exterior photo is a virtual rendition, interior photos are virtually staged. LISTING PRICE REFLECTS EXPANDED HST NEW RESIDENTIAL REBATE FOR ELIGIBLE PURCHASERS. (id:27476)

Property Highlights

MLS® Number
X12855630
Type
Single Family
Community Name
Cobourg
Maintenance Fee
250.00
Ownership Type
Condominium/Strata
Parking Space Total
1

Building

Building Type
Row / Townhouse
Square Footage
500 - 599 sqft
Bathrooms Total
1
Amenities
Visitor Parking Beach, Golf Nearby, Hospital
Exterior Finish
Brick
Fireplace Present
No
Basement Type
None
Basement Features
Building Heating Type
Heat Pump
Heating Fuel
Electric
Building Cooling Type
Ventilation system

Location

Learn more about this property
Listing provided by:
ROYAL LEPAGE PROALLIANCE REALTY
MLS® number:
X12855630
Agent:
Diana Scott
*Indicates required field
Name is required
Email is required
Please enter a valid phone number (e.g., 416-111-1111).

Street Spotlight - For sale