512 - 245 Elgin Street W, Cobourg, Ontario K9A 5M1

Listed for:
$2,700
3 beds
2 baths
Listed 16 days ago
Row / Townhouse for rent: 512 - 245 Elgin Street W, Cobourg, Ontario K9A 5M1

View all 25 photos

About

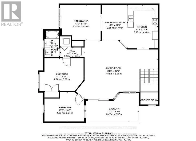
Cross Streets: Ontario St. & Elgin St. ** Directions: Ontario St. Welcome to this spacious newly renovated 3 bedroom 2 bathroom condo offering nearly 2,000 square feet of living space. The entire third floor is a dedicated primary suite with skylights and a 4 piece ensuite. Beaurtiful hardwood and tile flooring run throughout. The oversized eat in kitchen features new granite counters, ample cabinetry, and great workspace. A fomral dining room allows room to host family and friends, and the large living room opens to a generous west facing balcony; perfect for sunsets. The location is exceptional with the YMCA and Cobourg Creek Golf Course seconds away, plus shopping, restaurants downtown and the beach all withen minutes. Additional features include an attached garage and basement storage. Water garbage pickup snow removal and landscaping are included. Please note dogs are not permitted in this condo complex. (id:27476)

Property Highlights

MLS® Number
X12885808
Type
Single Family
Community Name
Cobourg
Ownership Type
Condominium/Strata
Parking Space Total
2

Building

Building Type
Row / Townhouse
Storeys
2.00
Square Footage
1800 - 1999 sqft
Bathrooms Total
2
Bedrooms Above Ground
3
Bedrooms Total
3
Exterior Finish
Brick, Stucco
Fireplace Present
No
Basement Type
Partial (Unfinished)
Basement Features
Building Heating Type
Forced air
Heating Fuel
Natural gas
Building Cooling Type
Central air conditioning

Location

Learn more about this property
Listing provided by:
COLDWELL BANKER - R.M.R. REAL ESTATE
MLS® number:
X12885808
Agent:
Paul Lang
*Indicates required field
Name is required
Email is required
Please enter a valid phone number (e.g., 416-111-1111).