4 - 774 Ontario Street, Cobourg, Ontario K9A 3C5

Listed for:
$469,900
2 beds
2 baths
Listed 9 days ago
Row / Townhouse for rent: 4 - 774 Ontario Street, Cobourg, Ontario K9A 3C5

View all 42 photos

About

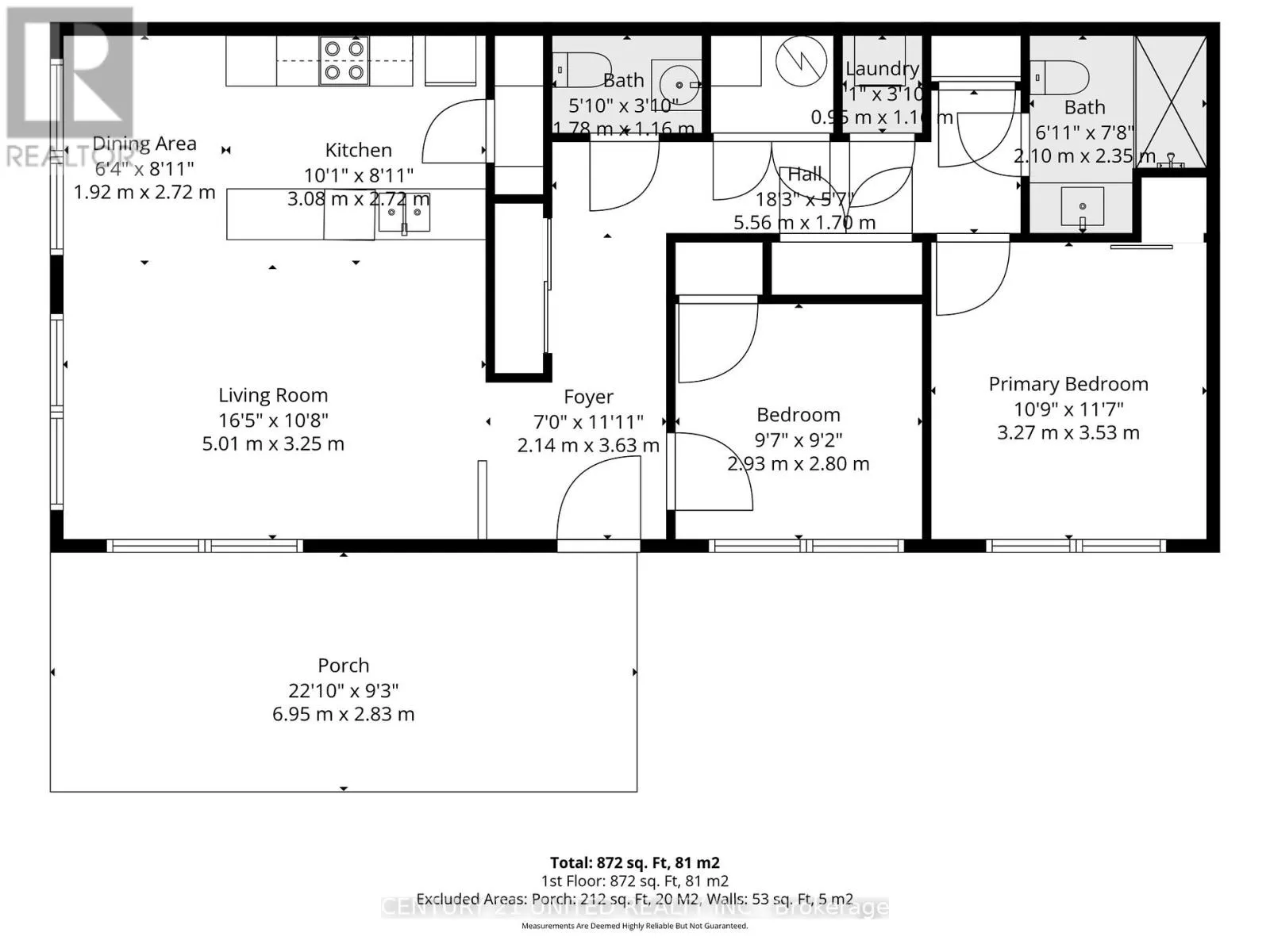
Cross Streets: SUTHERLAND CRESCENT. ** Directions: NORTH ON ONTARIO AND TURN RIGHT INTO THE CONDO LANEWAY. THIS CONDO IS AT THE BACK, UNIT IS ON LEFT. Are you ready to downsize or finally get into the Real Estate Market? This 2 bedroom condo makes it easy to decide. It is situated at the back of the building with a partially fenced backyard area and great side patio with pergola for unwinding the day away. The open concept living, dining and kitchen makes it comfortable to entertain. Lots of closet space for storage. Laundry area in the hallway with storage room as well. The master bedroom has a beautifully built bed with loads of storage and is staying(or can be removed if needed. The brick wall is attached). 2 baths. The second bedroom is currently being used as storage. Excellent location. The Grass cutting, snow removal and common elements are included in the monthly maintenance fees of $466.00. Owner pays heat, hydro, water, sewer and taxes. (id:27476)

Property Highlights

MLS® Number
X12898492
Type
Single Family
Community Name
Cobourg
Maintenance Fee
466.00
Ownership Type
Condominium/Strata
Parking Space Total
1

Building

Building Type
Row / Townhouse
Storeys
1.00
Square Footage
800 - 899 sqft
Bathrooms Total
2
Bedrooms Above Ground
2
Bedrooms Total
2
Amenities
Beach, Golf Nearby, Hospital, Marina, Public Transit
Exterior Finish
Vinyl siding
Fireplace Present
No
Basement Type
None
Basement Features
Building Heating Type
Heat Pump
Heating Fuel
Electric
Building Cooling Type
Central air conditioning

Location

Learn more about this property
Listing provided by:
CENTURY 21 UNITED REALTY INC.
MLS® number:
X12898492
Agent:
Tony Dekeyser
*Indicates required field
Name is required
Email is required
Please enter a valid phone number (e.g., 416-111-1111).

Street Spotlight - For sale