393 Second Street, Collingwood, Ontario L9Y 1G9

Listed for:
$999,000
6 beds
0 baths
Listed 70 days ago
Multi-Family for rent: 393 Second Street, Collingwood, Ontario L9Y 1G9

View all 38 photos

Learn more about this property
Listing provided by:
RE/MAX Four Seasons Realty Limited
MLS® number:
S12392066
Agent:
Loretta Mcinnis
*Indicates required field
Name is required
Email is required
Please enter a valid phone number (e.g., 416-111-1111).

About

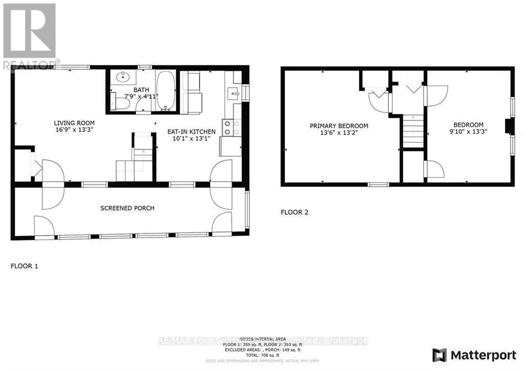
Cross Streets: SECOND STREET~ BETWEEN WALNUT ST. AND HICKORY ST. ON THE NORTH SIDE OF SECOND STREET. ** Directions: First Street / South on Walnut/ West on Second Street. TRIPLEX~ Great Opportunity for Investors~ ANNUAL RENTAL INCOME~$61 800/ yr, $5150 per month AND Tenants pay all utilities as well as snow removal! This well maintained triplex with 3 self contained units each having 2 Bedrooms and a 4 pc bath (separately metered) is in a fabulous location and situated on an extremely large lot~ 97 X 133 Ft. Endless Possibilities with Potential for Development~ Town of Collingwood permitting fourth units providing parameters met~ Potential to Build Garage/ Coach House~ Sever and Build 2 Homes on Newly Created Lots, Live in One Unit and Rent the Other Two, Continue to Use Strictly as an Investment Property, Convert to Single Family Residence or a Beautiful Lot to Build your Dream Home! This Property has had Many Upgrades Including~ Metal Roof, Asphalt Roof ( Apartment 3), Some Newer Windows, Some Newer Vinyl Siding Replaced and Windows Capped, Upgraded Electrical~ Breakers for 2 Units, Flooring, Newer Appliances/ 3 Hot Water Heaters (Includes all Appliances and Hot Water Heaters Owned) and Designer Paint throughout. A++ tenants! Looking to get into the investment market? The rental market continues to be very strong in desirable Collingwood. Look no further~ this is the one! Walking Distance to Historic Downtown, Restaurants, Theatres, Shopping, Sparkling Waters of Georgian Bay and all that Collingwood has to Offer. Short Drive to Blue Mountain Village, Thornbury and The Longest Freshwater Beach in the World! (id:27476)

Property Highlights

MLS® Number
S12392066
Type
Multi-family
Community Name
Collingwood
Land Size
Bldg=96.95 x 133.41 FT
Parking Space Total
6

Building

Building Type
Multi-Family
Square Footage
2252 sqft
Bedrooms Total
6
Amenities
Public Transit, Ski hill
Fireplace Present
No
Basement Type
Basement Features
Building Heating Type
Baseboard heaters
Heating Fuel
Building Cooling Type
None

Utilities

Water
Municipal water
Utility Sewer
Sanitary sewer

Location

Community Spotlight: Homes For sale in Your Neighborhood