393 Second Street, Collingwood, Ontario L9Y 1G9

Listed for:
$999,000
6 beds
3 baths
Listed 58 days ago
House for rent: 393 Second Street, Collingwood, Ontario L9Y 1G9

View all 38 photos

About

Cross Streets: SECOND STREET~ BETWEEN WALNUT ST. AND HICKORY ST. ON THE NORTH SIDE OF SECOND STREET. ** Directions: First Street to Walnut to Second Street. TRIPLEX~ Great Opportunity for Investors~ ANNUAL RENTAL INCOME~$61 800/ yr, $5150 per month AND Tenants pay all utilities as well as snow removal! This well maintained triplex with 3 self contained units each having 2 Bedrooms and a 4 pc bath (separately metered) is in a fabulous location and situated on an extremely large lot~ 97 X 133 Ft. Endless Possibilities with Potential for Development~ Town of Collingwood permitting up to four units providing parameters met (sever lot and create 4 units per lot)~ Potential to Build Garage/ Coach House~ Sever and Build 2 Homes on Newly Created Lots, Live in One Unit and Rent the Other Two, Continue to Use Strictly as an Investment Property, Convert to Single Family Residence or a Beautiful Lot to Build your Dream Home! This Property has had Many Upgrades Including~ Metal Roof, Asphalt Roof ( Apartment 3), Some Newer Windows, Some Newer Vinyl Siding Replaced and Windows Capped, Upgraded Electrical~ Breakers for 2 Units, Flooring, Newer Appliances/ 3 Hot Water Heaters (Includes all Appliances and Hot Water Heaters Owned) and Designer Paint throughout. A++ tenants! Looking to get into the investment market? The rental market continues to be very strong in desirable Collingwood. Look no further~ this is the one! Walking Distance to Historic Downtown, Restaurants, Theatres, Shopping, Sparkling Waters of Georgian Bay and all that Collingwood has to Offer. Short Drive to Blue Mountain Village, Thornbury and The Longest Freshwater Beach in the World! (id:27476)

Property Highlights

MLS® Number
S12642816
Type
Single Family
Community Name
Collingwood
Ownership Type
Freehold
Land Size
97 x 133.4 FT|under 1/2 acre
Parking Space Total
9

Building

Building Type
House
Storeys
2.00
Square Footage
2000 - 2500 sqft
Bathrooms Total
3
Bedrooms Above Ground
6
Bedrooms Total
6
Amenities
Golf Nearby, Place of Worship, Public Transit, Schools
Exterior Finish
Vinyl siding
Fireplace Present
No
Basement Type
Crawl space (Unfinished)
Basement Features
Building Heating Type
Baseboard heaters
Heating Fuel
Electric
Building Cooling Type
None

Utilities

Water
Municipal water
Utility Sewer
Sanitary sewer

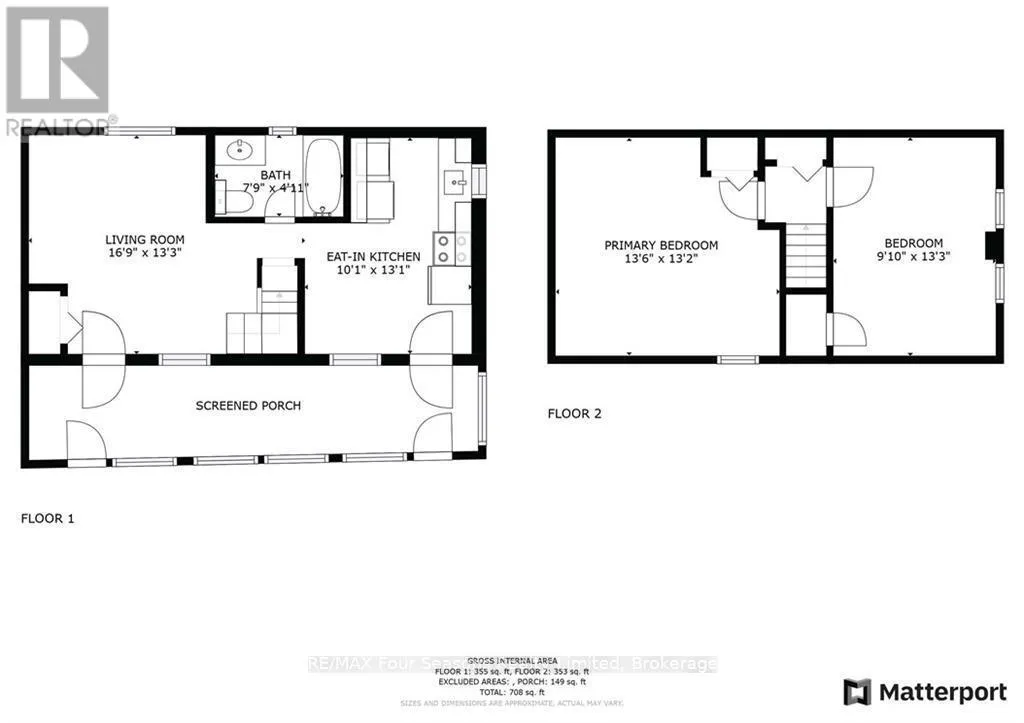
Room Layout

Primary Bedroom
Second level
3.73 m x 3.12 m
Bedroom
Second level
2.74 m x 2.49 m
Primary Bedroom
Second level
4.11 m x 4.01 m
Bedroom
Second level
4.04 m x 3 m
Primary Bedroom
Second level
4.09 m x 3.1 m
Bedroom
Second level
3.12 m x 2.49 m
Kitchen
Main level
3.07 m x 3.99 m
Living room
Main level
4.22 m x 3.25 m
Kitchen
Main level
3.51 m x 2.34 m
Kitchen
Main level
3.38 m x 2.36 m
Living room
Main level
5.11 m x 4.04 m
Living room
Main level
4.22 m x 3.35 m

Location

Learn more about this property
Listing provided by:
RE/MAX Four Seasons Realty Limited
MLS® number:
S12642816
Agent:
Loretta Mcinnis
*Indicates required field
Name is required
Email is required
Please enter a valid phone number (e.g., 416-111-1111).

Community Spotlight: Homes For sale in Your Neighborhood