1404 Caroline Court, Cornwall, Ontario K6J 0C5

Listed for:
$620,000
3 beds
3 baths
Listed 75 days ago
House for rent: 1404 Caroline Court, Cornwall, Ontario K6J 0C5

View all 24 photos

Learn more about this property
Listing provided by:
EXIT REALTY MATRIX
MLS® number:
X11891524
Agent:
Michelle Masse
*Indicates required field
Name is required
Email is required
Please enter a valid phone number (e.g., 416-111-1111).

About

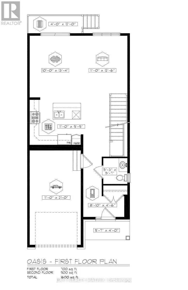
Power Dam ***This house is under construction*** This stunning two-storey home features an open concept layout, perfect for modern living and entertaining. The main floor boasts gleaming hardwood flooring throughout, creating a seamless flow between spaces. The kitchen includes a center island with eating bar, complete with elegant quartz countertops that complement the clean, contemporary design. Upstairs, you'll find three great size bedrooms, including a primary bedroom with a private ensuite. The ensuite features a glass shower with sleek tilework. The upper floor also includes convenient laundry facilities, offering ease and functionality for busy households. With 2.5 bathrooms in total, this home is designed for both comfort and style, combining practicality with modern elegance. Landscaping includes paved driveway, sodded front yard and seeded rear yard. Contact your realtor today for more information. (id:27476)

Property Highlights

MLS® Number
X11891524
Type
Single Family
Community Name
717 - Cornwall
Ownership Type
Freehold
Land Size
26.8 x 49.9 FT ; Lot size irregular
Parking Space Total
3

Building

Building Type
House
Storeys
2.00
Square Footage
1500 - 2000 sqft
Bathrooms Total
3
Bedrooms Above Ground
3
Bedrooms Total
3
Exterior Finish
Stone, Vinyl siding
Fireplace Present
No
Basement Type
Full (Unfinished)
Basement Features
Building Heating Type
Forced air
Heating Fuel
Natural gas
Building Cooling Type
Central air conditioning, Air exchanger

Utilities

Water
Municipal water
Utility Sewer
Sanitary sewer

Location