312-314 Amelia Street, Cornwall, Ontario K6H 3P5

Listed for:
$499,900
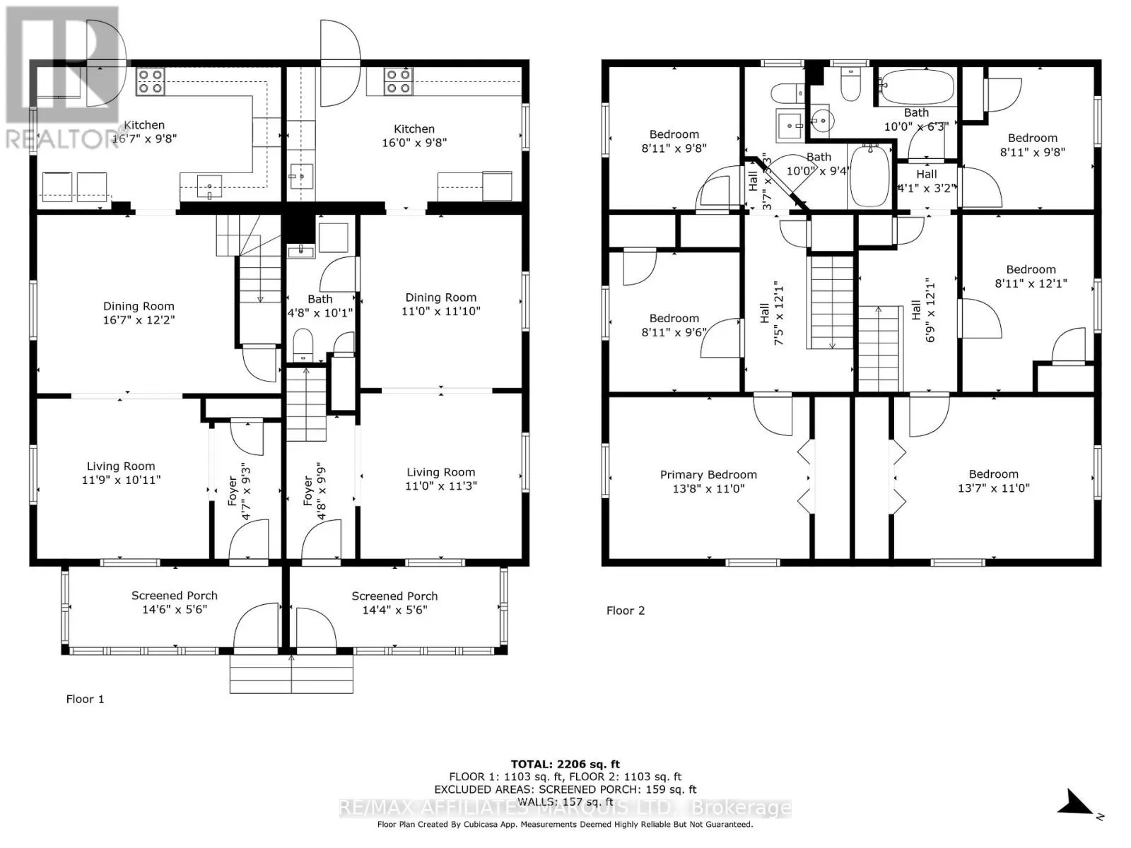
6 beds
2 baths
Listed 98 days ago
Duplex for rent: 312-314 Amelia Street, Cornwall, Ontario K6H 3P5

View all 43 photos

Learn more about this property
Listing provided by:
RE/MAX AFFILIATES MARQUIS LTD.
MLS® number:
X12337519
Agent:
Alan Mclaughlin-wheeler
*Indicates required field
Name is required
Email is required
Please enter a valid phone number (e.g., 416-111-1111).

About

Cross Streets: Amelia Street and Third Street. ** Directions: From Sydney street, turn right onto Fourth Street, turn right onto Amelia Street and watch for the sign. If you've been searching for the perfect investment property or a smart way to offset your living expenses, this side-by-side duplex could be just what you need. Ideally located just steps from Cornwalls vibrant downtown core, it features two updated 3-bedroom units. One side is currently tenanted at $1,950/month plus utilities, while the other side is vacant ready for you to move in or to lease out on your own terms. Don't miss this opportunity to secure a prime property in a sought-after location. Great location, solid income potential, and flexibility to suit your needs its the perfect formula for smart real estate investing. Contact us today for more details or to arrange your private showing. All offers must include a 48-hour irrevocable clause. (id:27476)

Property Highlights

MLS® Number
X12337519
Type
Multi-family
Community Name
717 - Cornwall
Land Size
62 x 68.5 FT
Parking Space Total
6

Building

Building Type
Duplex
Storeys
2.00
Square Footage
2000 - 2500 sqft
Bathrooms Total
2
Bedrooms Above Ground
6
Bedrooms Total
6
Amenities
Separate Heating Controls
Exterior Finish
Hardboard
Fireplace Present
No
Basement Type
N/A (Unfinished)
Basement Features
Building Heating Type
Forced air
Heating Fuel
Natural gas
Building Cooling Type
Wall unit

Utilities

Water
Municipal water
Utility Sewer
Sanitary sewer

Location