338 Water Street E, Cornwall, Ontario K6H 1A4

Listed for:
$245,000
2 beds
2 baths
Listed 35 days ago
House for rent: 338 Water Street E, Cornwall, Ontario K6H 1A4

View all 36 photos

Learn more about this property
Listing provided by:
ROYAL LEPAGE PERFORMANCE REALTY
MLS® number:
X12384548
Agent:
Jen Blair Manley
*Indicates required field
Name is required
Email is required
Please enter a valid phone number (e.g., 416-111-1111).

About

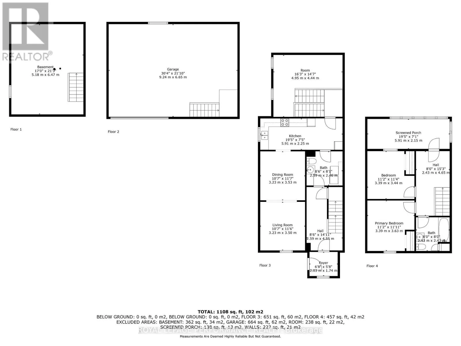
Cross Streets: Water St E. and Gloucester St. ** Directions: From Brookdale turn East onto Water Street. House will be on the right side of the road. Step into a piece of Cornwall's history with this delightful century home that seamlessly blends old-world charm with modern convenience. Ideally situated downtown, you're only a few blocks from the scenic waterfront, parks, and recreational amenities. Boasting plenty of character throughout. Be greeted by 9'8" ceilings and an inviting staircase that leads to the second level. The main floor features a natural flow from the cozy living room into a separate dining room, which connects to the updated kitchen for easy entertaining. A practical bathroom and laundry room combo. Outside, a detached garage provides ample space for parking or a workshop, while the versatile bonus room above offers a blank slate to create an office, studio, or extra living space to suit your needs.Upstairs, discover two restful bedrooms and a bright 4-piece bathroom. The sunlit, enclosed back porch is the perfect spot for relaxing. Recent updates: Natural gas furnace (Nov 2022) and gas hot water tank (Sept 2019). As per Seller direction allow 48 hour irrevocable on offers. (id:27476)

Property Highlights

MLS® Number
X12384548
Type
Single Family
Community Name
717 - Cornwall
Ownership Type
Freehold
Land Size
33.2 x 72 FT
Parking Space Total
2

Building

Building Type
House
Storeys
2.00
Square Footage
1100 - 1500 sqft
Bathrooms Total
2
Bedrooms Above Ground
2
Bedrooms Total
2
Exterior Finish
Vinyl siding, Brick
Fireplace Present
No
Basement Type
Full (Partially finished)
Basement Features
Building Heating Type
Forced air
Heating Fuel
Natural gas
Building Cooling Type
None

Utilities

Water
Municipal water
Utility Sewer
Sanitary sewer

Room Layout

Primary Bedroom
Second level
3.39 m x 3.63 m
Bedroom
Second level
3.39 m x 3.44 m
Foyer
Main level
2.03 m x 1.74 m
Living room
Main level
3.23 m x 3.53 m
Kitchen
Main level
5.91 m x 2.25 m
Dining room
Main level
3.23 m x 3.53 m
Other
Main level
4.95 m x 4.44 m

Location

Street Spotlight - For sale