1130 Sydney Street, Cornwall, Ontario K6H 6A1

Listed for:
$389,900
5 beds
2 baths
Listed 35 days ago
House for rent: 1130 Sydney Street, Cornwall, Ontario K6H 6A1

View all 40 photos

Learn more about this property
Listing provided by:
CENTURY 21 SHIELD REALTY LTD.
MLS® number:
X12464203
Agent:
Sophie Goudreau
*Indicates required field
Name is required
Email is required
Please enter a valid phone number (e.g., 416-111-1111).

About

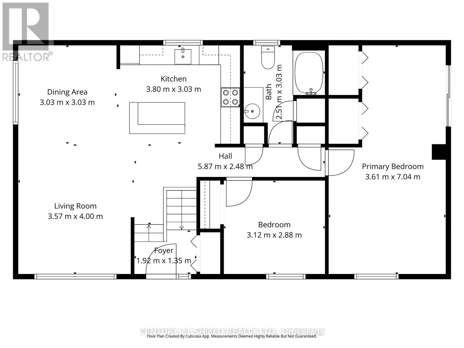
Cross Streets: Sydney St & Vimy Ave. ** Directions: See GPS. Introducing 1130 Sydney St! Looking for a roomy home for your growing family? This spacious high-ranch bungalow might just be the perfect fit! Sitting proudly on a large corner lot in a convenient location close to all your go-to amenities, this property offers plenty of parking with a wide 2-car driveway, plus a side deck that leads to a generous yard with a handy storage shed ideal for backyard projects or weekend fun. Step inside and you'll be greeted by a bright, open-concept main floor, featuring a welcoming kitchen, dining, and living room combo convenient for everyday life. The main level also offers a full bathroom and three bedrooms, including a spacious primary suite with double walk-in closets and walkout access to the side deck. Head downstairs and you'll find even more space to enjoy! The finished lower level includes a cozy rec. room, two extra bedrooms, and plenty of potential for hobbies, guests, or a home office setup. According to previous information, the furnace and hot water tank were recently updated. You'll also find a mix of hardwood, ceramic, and laminate flooring throughout the home. With a touch of creativity, a great layout, family-friendly design, and solid bones, 1130 Sydney Street could be your happy place! Property sold as is, where is. Please allow 3 business days irrevocable with all offers. (id:27476)

Property Highlights

MLS® Number
X12464203
Type
Single Family
Community Name
717 - Cornwall
Ownership Type
Freehold
Land Size
65.6 x 97 FT
Parking Space Total
4

Building

Building Type
House
Storeys
1.00
Square Footage
700 - 1100 sqft
Bathrooms Total
2
Bedrooms Above Ground
2
Bedrooms Total
5
Amenities
Public Transit
Exterior Finish
Brick, Vinyl siding
Fireplace Present
No
Basement Type
Full (Finished)
Basement Features
Building Heating Type
Forced air
Heating Fuel
Natural gas
Building Cooling Type
Central air conditioning, Air exchanger

Utilities

Water
Municipal water
Utility Sewer
Sanitary sewer

Room Layout

Bathroom
Basement
2.07 m x 1.91 m
Bedroom
Basement
3.28 m x 3.3 m
Bedroom 2
Basement
3.19 m x 4.3 m
Bedroom 3
Basement
3.11 m x 3.25 m
Bedroom 4
Basement
3.16 m x 3.22 m
Laundry room
Basement
3.58 m x 2.06 m
Living room
Main level
3.48 m x 7.18 m
Kitchen
Main level
3.8 m x 3.08 m
Bedroom
Main level
2.94 m x 3.19 m
Bedroom 2
Main level
3.54 m x 7.11 m
Bathroom
Main level
2.27 m x 3.08 m

Location