116 Pitt Street, Cornwall, Ontario K6J 3P4

Listed for:
$595,000
0 beds
0 baths
Listed 73 days ago
Residential Commercial Mix for rent: 116 Pitt Street, Cornwall, Ontario K6J 3P4

View all 41 photos

About

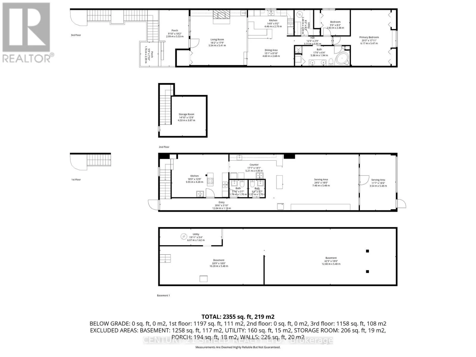
Cross Streets: First Street, Second Street. ** Directions: From Second St, turn onto Pitt St (heading South). property is on the right (West) side of the street. Welcome to 116 Pitt Street, a standout mixed-use opportunity in the heart of downtown Cornwall. This prime property features two spacious units and offers immediate income potential along with flexible future use for investors or entrepreneurs. The ground-floor commercial space is currently configured as a restaurant and showcases a unique enclosed patio with a garage-door-style window system. Open it up for breezy summer service or close it for a cozy atmosphere during cooler months. The space benefits from excellent street visibility and strong pedestrian traffic in Cornwall's vibrant downtown core. Upstairs, the character-filled second-floor apartment offers 2 bedrooms and 1 bathroom, blending charm with urban convenience. The inviting living room features vaulted ceilings, a wood-burning fireplace and a wet bar, creating a warm and welcoming atmosphere. The bright kitchen offers space for both a dining table and counter seating, while the oversized 5-piece bathroom conveniently includes in-suite laundry. The layout is completed by a private second bedroom and a generous primary bedroom with a large window overlooking bustling Pitt Street. A private second-level deck provides a rare outdoor retreat right in the heart of the city. The current owner would like to remain in the property as a tenant, offering attractive built-in income for the new owner under the following proposed terms: Ground Floor Commercial Lease: $4,000/month + HST + utilities + property taxes; Second Floor Apartment: $2,000/month + utilities. With excellent visibility, strong downtown foot traffic, three private parking spaces plus ample street parking, and the potential for immediate rental income, this property presents a compelling opportunity for investors seeking a turnkey asset in Cornwall's downtown core. Don't miss your chance to own this prime slice of Cornwall real estate, make the right move and see it for yourself. (id:27476)

Property Highlights

MLS® Number
X12856122
Type
Retail
Community Name
717 - Cornwall
Land Size
2561 ac

Building

Building Type
Residential Commercial Mix
Square Footage
2561 sqft
Fireplace Present
No
Basement Type
Basement Features
Building Heating Type
Forced air
Heating Fuel
Electric, Natural gas
Building Cooling Type
Fully air conditioned

Utilities

Water
Municipal water

Location

Learn more about this property
Listing provided by:
CENTURY 21 SHIELD REALTY LTD.
MLS® number:
X12856122
Agent:
Jennifer Perkins
*Indicates required field
Name is required
Email is required
Please enter a valid phone number (e.g., 416-111-1111).