440 Victoria Beach Road, Cramahe, Ontario K0K 1S0

Listed for:
$1,219,000
4 beds
3 baths
Listed 135 days ago
House for rent: 440 Victoria Beach Road, Cramahe, Ontario K0K 1S0

View all 11 photos

About

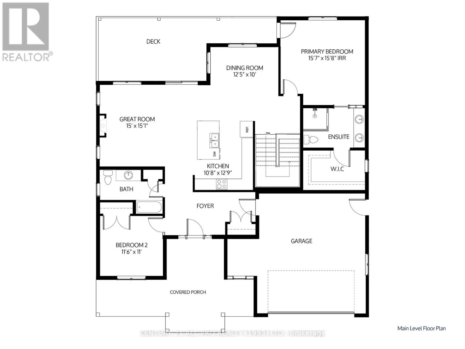
Cross Streets: colton. ** Directions: East of Colborne on County Rd 2, south on Colton St and follow to almost the end and turn right on Victoria Beach Rd. Imagine waking up and sitting on your covered front porch, sipping coffee and relaxing with a breathtaking view of Lake Ontario. This 1580 ft. bungalow, built by award-winning Fidelity Homes, makes that dream a reality. With a beautifully designed main floor with primary bedroom, attached en-suite, and walk-in closet, plus another bedroom and full bath, this home has it all. The open-concept living area features a fireplace and walkout to the back deck. Entrance into house from the attached 2 car garage. The finished basement includes a rec room, two bedrooms, laundry room, and a full bathroom(approximately 1125 sqft). Situated on a 2.7 acre corner lot, you'll enjoy walking distance to the lake and easy access to town or the 401. This pre-construction home comes with a 7-year Tarion warranty and top-quality craftsmanship, allowing you to customize every detail to fit your wish list or enjoy the beautiful preselected custom cabinets, upgraded flooring, finishes and quartz countertops! (HOME IS NOT BUILT YET) (id:27476)

Property Highlights

MLS® Number
X12381431
Type
Single Family
Community Name
Rural Cramahe
Ownership Type
Freehold
Land Size
244.7 x 386.4 FT|2 - 4.99 acres
Parking Space Total
4

Building

Building Type
House
Storeys
1.00
Square Footage
1500 - 2000 sqft
Bathrooms Total
3
Bedrooms Above Ground
2
Bedrooms Total
4
Amenities
Fireplace(s)
Exterior Finish
Vinyl siding, Stone
Fireplace Present
Yes
Basement Type
Full
Basement Features
Building Heating Type
Forced air
Heating Fuel
Propane
Building Cooling Type
Central air conditioning

Utilities

Utility Sewer
Septic System

Room Layout

Bedroom
Basement
3.07 m x 4.69 m
Bathroom
Basement
Measurements not available
Utility room
Basement
Measurements not available
Laundry room
Basement
Measurements not available
Recreational, Games room
Basement
8.26 m x 5.82 m
Bedroom
Basement
4.48 m x 3.41 m
Great room
Main level
4.57 m x 4.6 m
Dining room
Main level
3.81 m x 3.04 m
Kitchen
Main level
3.56 m x 4.11 m
Bedroom
Main level
3.53 m x 3.35 m
Foyer
Main level
Measurements not available
Primary Bedroom
Main level
4.78 m x 4.81 m
Bathroom
Main level
Measurements not available

Location

Learn more about this property
Listing provided by:
CENTURY 21 UNITED REALTY INC.
MLS® number:
X12381431
Agent:
Ami Herrington
*Indicates required field
Name is required
Email is required
Please enter a valid phone number (e.g., 416-111-1111).

Street Spotlight - For sale