7 Hollingsworth Street, Cramahe, Ontario K0K 1S0

Listed for:
$659,000
3 beds
3 baths
Listed 57 days ago
House for rent: 7 Hollingsworth Street, Cramahe, Ontario K0K 1S0

View all 43 photos

Learn more about this property
Listing provided by:
ROYAL LEPAGE PROALLIANCE REALTY
MLS® number:
X12536236
Agent:
Brenda Kloostra
*Indicates required field
Name is required
Email is required
Please enter a valid phone number (e.g., 416-111-1111).

About

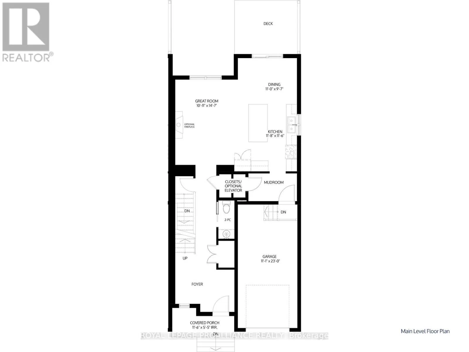
Cross Streets: Durham St N & Scott Street. ** Directions: County Rd 2 to Durham St. North. Welcome to the Flynn model, a stunning modern farmhouse-style semi-detached located in the picturesque community of Eastfields. This home features 3 bedrooms, 2.5 bathrooms, offering a perfect blend of contemporary elegance and rustic charm. The main level boasts a spacious open concept living, kitchen, and dining area, ideal for entertaining and everyday living. Step outside to a private back deck, perfect for relaxing and enjoying the outdoors with privacy from your neighbours. The upper level is home to a large primary bedroom with a walk-in closet and a luxurious 4-piece ensuite bathroom. Two additional bedrooms provide ample space, with a shared bathroom conveniently located nearby. The upper level also includes a laundry area for added convenience. Nestled in the serene and welcoming community of Colborne and built by prestigious local builder Fidelity Homes. This home comes packed with quality finishes including: Maintenance-free, Energy Star-rated Northstar vinyl windows with Low-E-Argon glass; 9-foot smooth ceilings on the main floor; Designer Logan interior doors with sleek black Weiser hardware; Craftsman-style trim package with 5 1/2 baseboards and elegant casings around windows and doors; Premium cabinetry; Quality vinyl plank flooring; Moen matte blackwater-efficient faucets in all bathrooms; Stylish, designer light fixtures throughout. Offering 7 Year TARION New Home Warranty. MOVE-IN READY! (id:27476)

Property Highlights

MLS® Number
X12536236
Type
Single Family
Community Name
Colborne
Ownership Type
Freehold
Land Size
32.8 x 149.3 FT|under 1/2 acre
Parking Space Total
2

Building

Building Type
House
Storeys
2.00
Square Footage
2000 - 2500 sqft
Bathrooms Total
3
Bedrooms Above Ground
3
Bedrooms Total
3
Amenities
Golf Nearby, Park, Schools
Exterior Finish
Vinyl siding
Fireplace Present
No
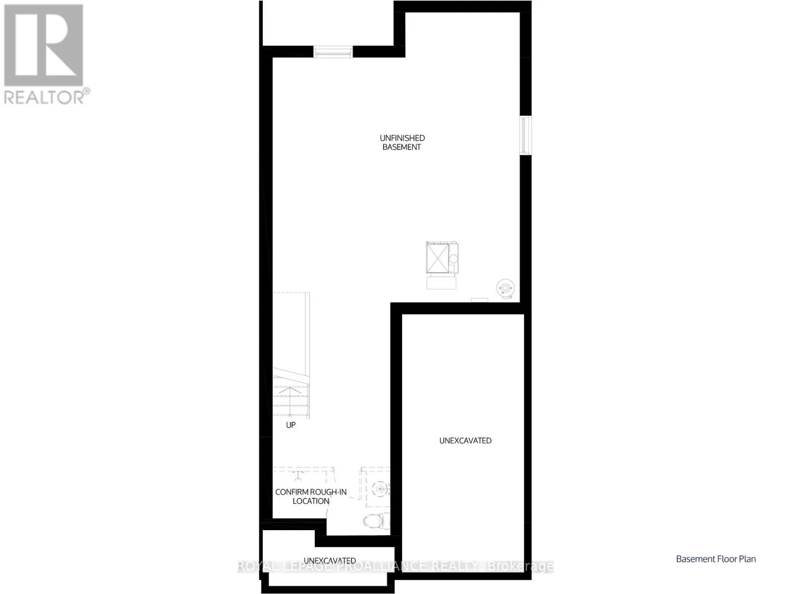
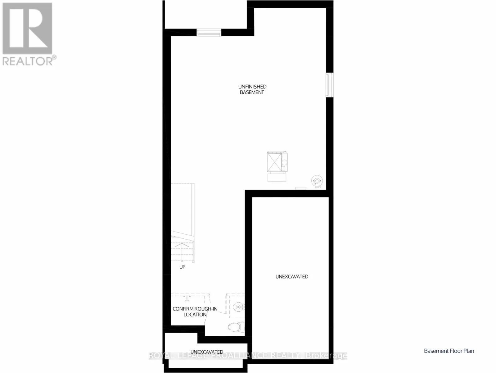
Basement Type
Full (Unfinished)
Basement Features
Building Heating Type
Forced air
Heating Fuel
Natural gas
Building Cooling Type
Central air conditioning

Utilities

Water
Municipal water
Utility Sewer
Sanitary sewer

Room Layout

Bedroom 2
Second level
2.74 m x 1.37 m
Bedroom 3
Second level
3.38 m x 3.2 m
Primary Bedroom
Second level
4.47 m x 3.96 m
Bathroom
Second level
1.68 m x 3.05 m
Great room
Main level
3.35 m x 5.41 m
Kitchen
Main level
3.65 m x 3.84 m
Dining room
Main level
3.38 m x 2.49 m
Mud room
Main level
2.74 m x 1.37 m

Location

Street Spotlight - For sale