5 Percy Street, Cramahe, Ontario K0K 1S0

Listed for:
$499,000
3 beds
2 baths
Listed 90 days ago
House for rent: 5 Percy Street, Cramahe, Ontario K0K 1S0

View all 35 photos

About

King St. & Percy St. From the moment you arrive, this newly renovated home welcomes you with warmth & comfort. Thoughtfully updated throughout, it offers the ease & charm of small-town living & is truly move-in ready. Recent upgrades include new windows & front door (2023), upgraded insulation and drywall (2024), 200-amp service (2024), a new back addition with a steel roof that blends seamlessly with the home's existing maintenance-free steel roofing, pot lights (2024), fully updated bathrooms & kitchen (2025), & new flooring (2025), to name a few. The bright, open-concept living & dining area is perfect for everyday living, perfect for slow weekend mornings, cozy evenings, or gatherings with friends. Large windows fill the space with natural sunlight, while sliding doors lead to the backyard, providing extra space to enjoy. The kitchen features quartz countertops, ample cabinetry, under-cabinet lighting, & new appliances. It is the perfect space to cook your favourite meals, bake with the kids, or host casual get-togethers. The main floor's new addition adds more convenience, including a full bath, laundry area, & spacious utility room, ideal for keeping life organized & running smoothly. Underneath, the heated crawl space provides additional storage. Upstairs are three inviting bedrooms & a full bath, ideal for family, guests, or a home office. Enjoy walking to local shops, restaurants, & the library, with Lake Ontario and Highway 401 just minutes away. Whether you are starting with your first home, simplifying to a more relaxed lifestyle, or searching for an investment opportunity, this updated home offers many opportunities. (id:27476)

Property Highlights

MLS® Number
X12594576
Type
Single Family
Community Name
Colborne
Ownership Type
Freehold
Land Size
51.9 x 76 FT
Parking Space Total
2

Building

Building Type
House
Storeys
1.50
Square Footage
1100 - 1500 sqft
Bathrooms Total
2
Bedrooms Above Ground
3
Bedrooms Total
3
Amenities
Park, Schools
Exterior Finish
Aluminum siding, Vinyl siding
Fireplace Present
No
Basement Type
Crawl space
Basement Features
Building Heating Type
Forced air
Heating Fuel
Natural gas
Building Cooling Type

Utilities

Water
Municipal water
Utility Sewer
Sanitary sewer

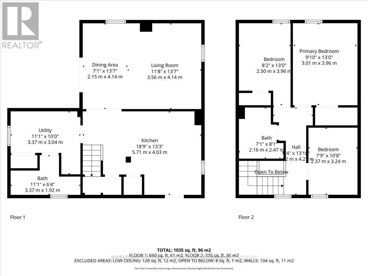
Room Layout

Kitchen
Main level
5.71 m x 403 m
Dining room
Main level
2.15 m x 4.14 m
Living room
Main level
3.56 m x 4.14 m
Bathroom
Main level
3.37 m x 1.92 m
Utility room
Main level
3.37 m x 3.04 m
Primary Bedroom
Upper Level
3.01 m x 3.96 m
Bedroom 2
Upper Level
2.5 m x 3.96 m
Bedroom 3
Upper Level
2.37 m x 3.24 m
Bathroom
Upper Level
2.16 m x 2.47 m

Location

Learn more about this property
Listing provided by:
COLDWELL BANKER - R.M.R. REAL ESTATE
MLS® number:
X12594576
Agent:
Lana Millson
*Indicates required field
Name is required
Email is required
Please enter a valid phone number (e.g., 416-111-1111).