15 Park Street W, Cramahe, Ontario K0K 1S0

Listed for:
$1,500,000
0 beds
0 baths
Listed 27 days ago
15 Park Street W, Cramahe, Ontario K0K 1S0

View all 1 photos

About

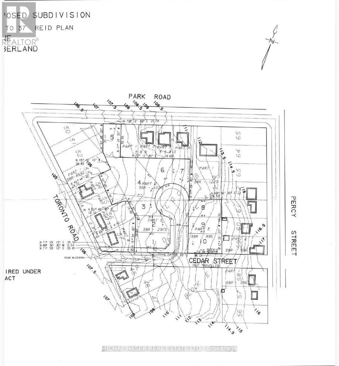
Percy St and Park St W Prime Residential Development Land in the Heart of Colborne. Previously Zoned as 10 Executive Residential Lots. (id:27476)

Property Highlights

MLS® Number
X12906816
Type
Vacant Land
Community Name
Colborne
Land Size
298 x 450 FT

Building

Square Footage
110804 sqft
Fireplace Present
No
Basement Type
Basement Features
Building Heating Type
Heating Fuel
Building Cooling Type

Utilities

Water
Municipal water

Location

Learn more about this property
Listing provided by:
MICHAL HASEK REAL ESTATE LTD.
MLS® number:
X12906816
Agent:
Michal Hasek
*Indicates required field
Name is required
Email is required
Please enter a valid phone number (e.g., 416-111-1111).