405 Adams Avenue, Delhi, Ontario N4B 2Y8

Listed for:
$549,000
3 beds
2 baths
Listed 14 days ago
House for rent: 405 Adams Avenue, Delhi, Ontario N4B 2Y8

View all 50 photos

About

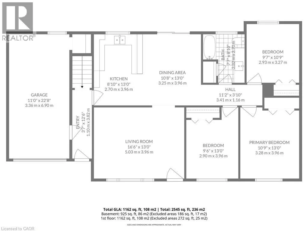
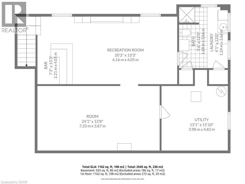
Step into this charming 3-bedroom, 2-bathroom family home, situated in one of the area’s most desirable family neighborhoods. Offering excellent curb appeal with a paved driveway, this home features a bright, layout filled with natural light, ideal for living and entertaining. The main floor includes an open kitchen and dining area with walkout access to the deck, a large inviting living room, three comfortable bedrooms, a 4-piece bathroom, and a welcoming foyer with access to the attached garage, as well as both the main level and basement. Downstairs, you’ll find two generously sized rooms with great potential, waiting for your personal touch to transform them into a fantastic rec room or additional living space. The basement also includes a 3-piece bathroom, laundry area, and utility room. Additional highlights include a durable steel roof, a large backyard with deck, perfect for outdoor enjoyment, and two storage sheds for added convenience. (id:27476)

Property Highlights

MLS® Number
40814259
Type
Single Family
Ownership Type
Freehold
Land Size
0.18 ac|under 1/2 acre
Parking Space Total
3

Building

Building Type
House
Storeys
1.00
Square Footage
2100 sqft
Bathrooms Total
2
Bedrooms Above Ground
3
Bedrooms Total
3
Amenities
Playground, Schools
Exterior Finish
Brick Veneer
Fireplace Present
No
Basement Type
Full (Partially finished)
Basement Features
Building Heating Type
Forced air
Heating Fuel
Natural gas
Building Cooling Type
Central air conditioning

Utilities

Water
Municipal water
Utility Sewer
Municipal sewage system

Room Layout

3pc Bathroom
Basement
5'6'' x 12'0''
Laundry room
Basement
4'1'' x 12'0''
Recreation room
Basement
24'1'' x 12'8''
Recreation room
Basement
20'2'' x 13'3''
Primary Bedroom
Main level
10'9'' x 13'0''
Bedroom
Main level
9'6'' x 13'0''
Bedroom
Main level
9'7'' x 10'9''
4pc Bathroom
Main level
7'7'' x 8'10''
Living room
Main level
16'6'' x 13'0''
Dining room
Main level
10'8'' x 13'0''
Kitchen
Main level
8'10'' x 13'0''
Foyer
Main level
3'7'' x 12'6''

Location

Learn more about this property
Listing provided by:
Van Londersele Real Estate Brokerage Ltd.
MLS® number:
40814259
Agent:
Paul Van Londersele
*Indicates required field
Name is required
Email is required
Please enter a valid phone number (e.g., 416-111-1111).