84 Connaught Avenue, Delhi, Ontario N4B 1K6

Listed for:
$529,900
2 beds
2 baths
Listed Today
House for rent: 84 Connaught Avenue, Delhi, Ontario N4B 1K6

View all 34 photos

About

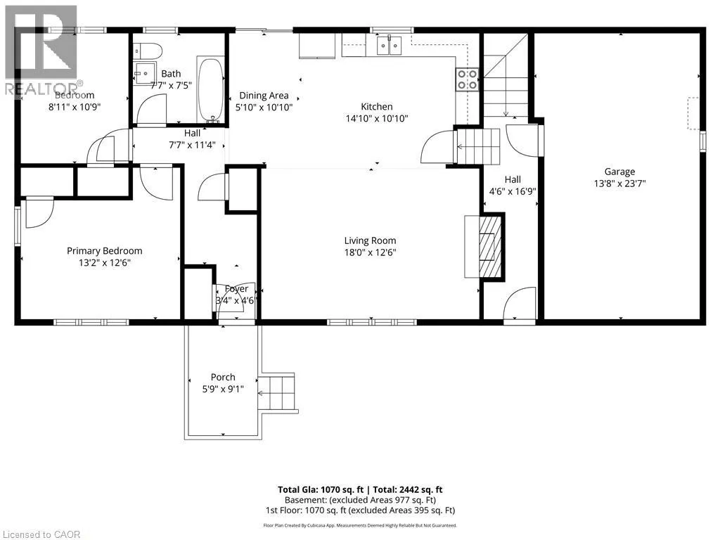
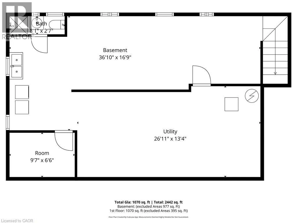
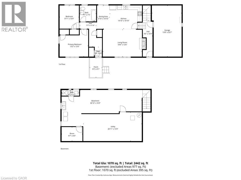
From Highway 3, Turn East on Connaught Ave. The property is on the south west corner of Connaught Ave and Northern Ave. Welcome to 84 Connaught Ave in Delhi! This beautifully updated 2-bedroom, 2-bathroom bungalow offers the perfect blend of comfort, convenience, and modern updates in a desirable family-friendly neighborhood. Just a short walk to schools, parks, and scenic walking trails, this home is ideally located for those seeking both community and accessibility. Offering 1,070 sq. ft. of bright, above-grade living space, the home has seen extensive renovations designed for low-maintenance living and peace of mind. A major exterior upgrade completed in 2022 included new windows, roof, vinyl siding with upgraded exterior insulation, soffit, fascia, eavestroughs, central air conditioner, garage door, and fully fenced yard. The back deck features a gazebo and natural gas hookup for your BBQ, perfect for entertaining. Inside, the main floor has been thoughtfully refreshed with updated kitchen cabinets, quartz countertops, a recently renovated bathroom, pot lights, fresh paint, and durable laminate flooring throughout. The spacious living room is filled with natural light, creating a warm and inviting atmosphere. The eat-in kitchen provides convenient access to the backyard deck—perfect for outdoor dining and entertaining. The main floor features a comfortable primary bedroom, while a cozy second bedroom and a modern 4-piece bathroom are located just across the hall. The closet in the hallway is also roughed in for potential main floor laundry. The basement remains unfinished and ready for your personal touch, but already includes a laundry room and a 3-piece bathroom. (id:27476)

Property Highlights

MLS® Number
40820340
Type
Single Family
Ownership Type
Freehold
Land Size
0.2 ac|under 1/2 acre
Parking Space Total
5

Building

Building Type
House
Storeys
1.00
Square Footage
1070 sqft
Bathrooms Total
2
Bedrooms Above Ground
2
Bedrooms Total
2
Amenities
Park, Place of Worship, Playground, Schools
Exterior Finish
Vinyl siding
Fireplace Present
Yes
Basement Type
Full (Unfinished)
Basement Features
Building Heating Type
Forced air
Heating Fuel
Natural gas
Building Cooling Type
Central air conditioning

Utilities

Water
Municipal water
Utility Sewer
Municipal sewage system

Room Layout

3pc Bathroom
Basement
8'0'' x 2'6''
Mud room
Main level
16'6'' x 3'1''
4pc Bathroom
Main level
7'6'' x 6'8''
Bedroom
Main level
10'2'' x 8'11''
Primary Bedroom
Main level
13'2'' x 10'3''
Living room
Main level
17'11'' x 12'6''
Eat in kitchen
Main level
18'0'' x 10'3''
Foyer
Main level
8'2'' x 3'6''

Location

Learn more about this property
Listing provided by:
Progressive Realty Group Inc.
MLS® number:
40820340
Agent:
Cameron Bazilli
*Indicates required field
Name is required
Email is required
Please enter a valid phone number (e.g., 416-111-1111).