123 Maple Street, Drayton, Ontario N0G 1P0

Listed for:
$899,900
4 beds
4 baths
Listed 91 days ago
House for rent: 123 Maple Street, Drayton, Ontario N0G 1P0

View all 15 photos

Learn more about this property
Listing provided by:
MLS® number:
40777746
Agent:
Robert Wollziefer
*Indicates required field
Name is required
Email is required
Please enter a valid phone number (e.g., 416-111-1111).

About

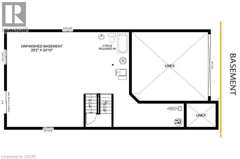
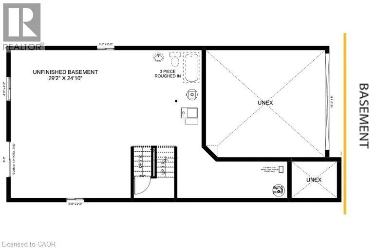
Green READY FOR IMMEDIATE OCCUPANCY ***SEPARATE SIDE ENTRANCE TO THE BASEMENT*** Step into the Fraser Model, an epitome of modern living nestled in Drayton Phase 2 community. Boasting 2,332 sq ft of living space, this residence offers four spacious bedrooms and three and a half luxurious bathrooms. The 2 car garage provides ample space for your vehicles and storage needs. Noteworthy is the unfinished basement, ripe for your creative touch, and separate entrance, seamlessly merging indoor and outdoor living. Experience the epitome of craftsmanship and innovation with the Fraser Model and make your mark in the vibrant Drayton community 9’ Main Floor Ceilings, 6’ Patio Slider Door, Laminate floors on main level excluding mudrooms and washrooms. (id:27476)

Property Highlights

MLS® Number
40777746
Type
Single Family
Ownership Type
Freehold
Land Size
under 1/2 acre
Parking Space Total
6

Building

Building Type
House
Storeys
2.00
Square Footage
2332 sqft
Bathrooms Total
4
Bedrooms Above Ground
4
Bedrooms Total
4
Amenities
Place of Worship, Schools, Shopping
Exterior Finish
Brick, Vinyl siding
Fireplace Present
No
Basement Type
Full (Unfinished)
Basement Features
Building Heating Type
Forced air
Heating Fuel
Natural gas
Building Cooling Type
Central air conditioning

Utilities

Water
Municipal water
Utility Sewer
Municipal sewage system

Room Layout

Laundry room
Second level
8'0'' x 6'0''
3pc Bathroom
Second level
5'0'' x 9'2''
Bedroom
Second level
12'10'' x 12'6''
Bedroom
Second level
12'0'' x 12'8''
Primary Bedroom
Second level
14'0'' x 12'0''
Full bathroom
Second level
12'6'' x 8'10''
Primary Bedroom
Second level
14'8'' x 12'2''
2pc Bathroom
Main level
5'4'' x 5'4''
Full bathroom
Main level
7'0'' x 9'0''
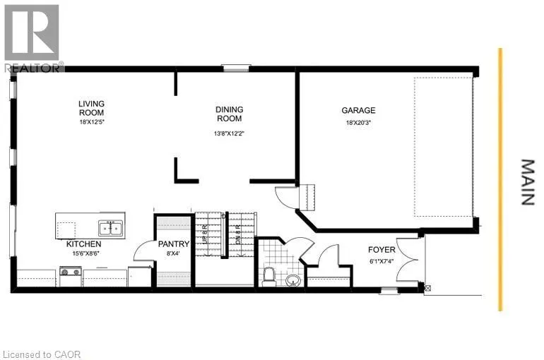
Dinette
Main level
9'2'' x 12'0''
Pantry
Main level
8'0'' x 4'0''
Kitchen
Main level
10'10'' x 12'0''
Dining room
Main level
13'8'' x 12'2''
Living room
Main level
18'0'' x 12'5''

Location

Street Spotlight - For sale