43 Demall Drive, Dresden, Ontario N0P 1M0

Listed for:
$494,900
2 beds
2 baths
Listed 17 days ago
House for rent: 43 Demall Drive, Dresden, Ontario N0P 1M0

View all 25 photos

Learn more about this property
Listing provided by:
ROYAL LEPAGE PEIFER REALTY (DRESDEN)
MLS® number:
25001753
Agent:
Krista Mall
*Indicates required field
Name is required
Email is required
Please enter a valid phone number (e.g., 416-111-1111).

About

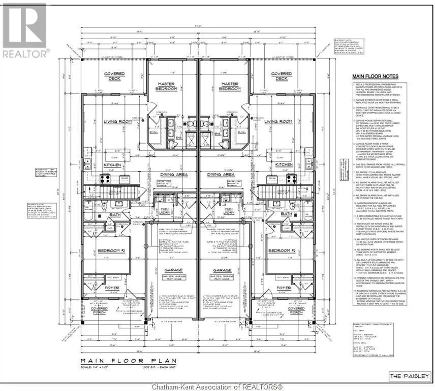
FROM ST. GEORGE STREET, TURN WEST ON CAMDEN ST UNTIL YOU COME TO D.D. STREET. TURN NORTH ON D.D. STREET, THEN WEST ON DEMALL DRIVE. Welcome to Dresden's newest development known as Rolling Acres Subdivision. This to be built 1302 square foot 2 bedroom, 2 bathroom semi-detached bungalow is in a country-like setting in a brand new neighbourhood. Built by reputable local home builder, Depencier Builders, this home comes with premium quality 'James Hardie' siding exterior finishes. Buyer to choose their interior finishes from an endless variety of selections. With everything conveniently located on one floor, you will have a list of upgrades to choose from to personalize the home to your liking. Open concept kitchen and great room features 9 foot ceilings throughout the main floor. Primary bedroom with 4pc ensuite and a walk in closet. Front and rear covered patios. This home also features main floor laundry, E.R.V. & full unfinished basement with the option to finish at the time of construction. Option to rent or own the hot water tank. H.S.T. included in the purchase price. (id:27476)

Property Highlights

MLS® Number
25001753
Type
Single Family
Ownership Type
Freehold
Land Size
33.79 X 128.28

Building

Building Type
House
Storeys
1.00
Square Footage
1302 sqft
Bathrooms Total
2
Bedrooms Above Ground
2
Bedrooms Total
2
Exterior Finish
Other
Fireplace Present
No
Basement Type
Basement Features
Building Heating Type
Forced air, Furnace, Heat Recovery Ventilation (HRV)
Heating Fuel
Natural gas
Building Cooling Type
Central air conditioning

Location