000 Cornelia Street West Street, Drummond/North Elmsley, Ontario K7A 4S4

Listed for:
$950,000
0 beds
0 baths
Listed 174 days ago
Warehouse for rent: 000 Cornelia Street West Street, Drummond/North Elmsley, Ontario K7A 4S4

View all 11 photos

About

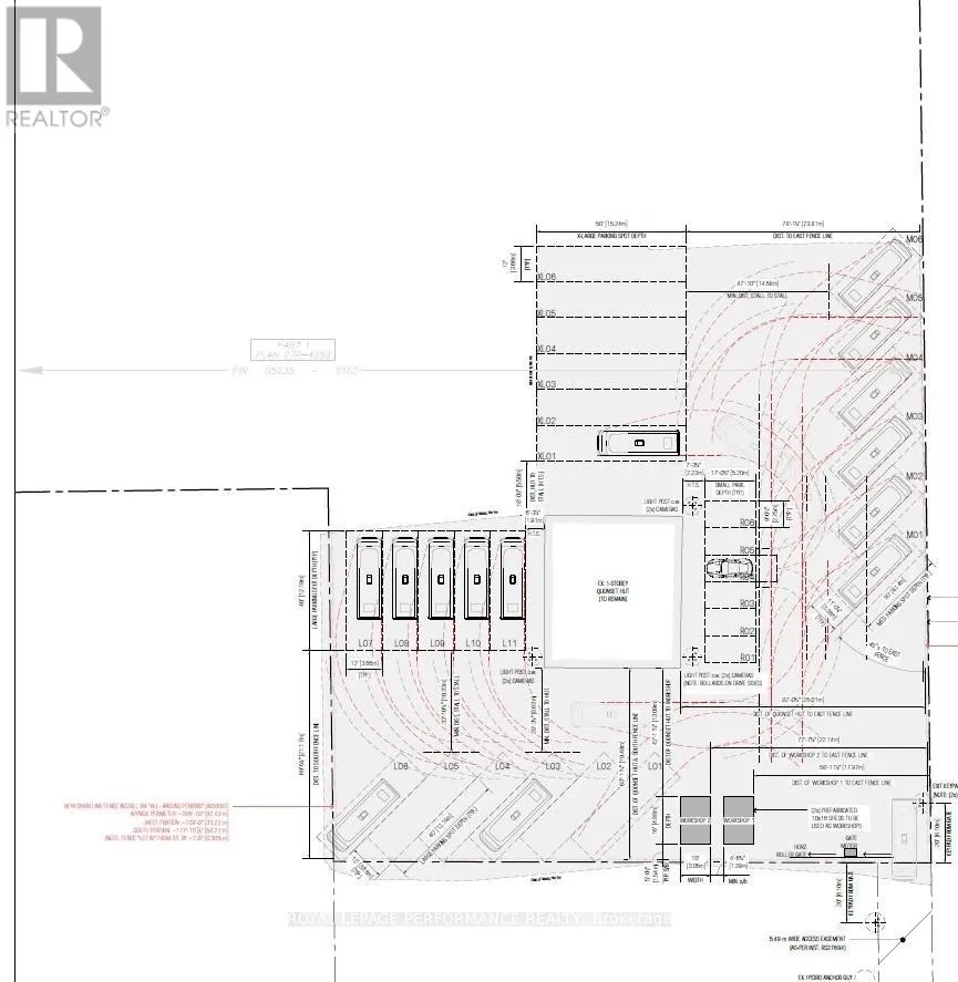
Cross Streets: Spinelli Lane and Cornelia Street West. ** Directions: 4-minutes west of downtown Smiths Falls. Secure Storage, Parking, Workshops & Warehousing For Sale: Affordable Space for Work, Storage, and Growth. Land + Operating Business available. Ideal for owner-operators or investors: Fully secured site with fencing, keypad gate (multi-code access), video surveillance, plus high-speed Starlink internet. IOS (industrial outdoor storage) yards, warehousing, workshops, parking for RVs, boats, construction equipment, trucks, buses with expansion land and Highway Commercial (CH) zoning. Perfect for an expanding business that also benefits from accessory rental income. Mini storage business plus workshops/warehousing, parking for RVs, boats, cars, trucks, trailers, contractor equipment and yards (IOS, industrial outdoor storage), Seacans, inventory etc, Vendor marketplace/flea market, Industrial warehouses/workshops for rent, Restaurants/retail plazas/food trucks, Auto/RV sales and service, Industrial/commercial/retail condos, Storage containers, Truck stop, Accessory residential (one dwelling unit allowed). Six-town funnel: Smiths Falls (4 minutes), Perth (15), Merrickville (20), Carleton Place (25), Kemptville (35); Brockville (47). Population base: ~59,000 residents across the six towns (2021) plus Ottawa-Gatineau (~40 min with a population of 1.54 million) = dependable demand for secure outdoor storage, warehousing, workshops, parking and more. Growth hotspots include Carleton Place +17.6%, Perth +9.1%, Smiths Falls +5.4% (2016 to 2021) = steady pipeline of new renters and contractor activity. Comes with keypad activated automatic gate and online self-serve registration/leasing. CH - Highway Commercial; uses include commercial storage, warehouse, auto-related, retail, office, restaurant, hotel; accessory dwelling. Site: 7.02 acres. 1-acre outdoor storage/parking, 4,200 sq ft Quonset-style warehouse; 160 sq ft climate-controlled studio/workshop, ready to lease. Online booking & payments, keypad gate, LED lighting, HD cameras, Starlink internet. (id:27476)

Property Highlights

MLS® Number
X12570862
Type
Industrial
Community Name
903 - Drummond/North Elmsley (North Elmsley) Twp
Land Size
7 ac
Parking Space Total
10

Building

Building Type
Warehouse
Square Footage
4360 sqft
Amenities
Highway
Fireplace Present
No
Basement Type
Basement Features
Building Heating Type
Coil Fan
Heating Fuel
Building Cooling Type
Partially air conditioned

Location

Learn more about this property
Listing provided by:
ROYAL LEPAGE PERFORMANCE REALTY
MLS® number:
X12570862
Agent:
Bruce Firestone
*Indicates required field
Name is required
Email is required
Please enter a valid phone number (e.g., 416-111-1111).