491 Hwy 5 W, Dundas, Ontario L9H 5E2

Listed for:
$1,299,000
3 beds
3 baths
Listed 99 days ago
House for rent: 491 Hwy 5 W, Dundas, Ontario L9H 5E2

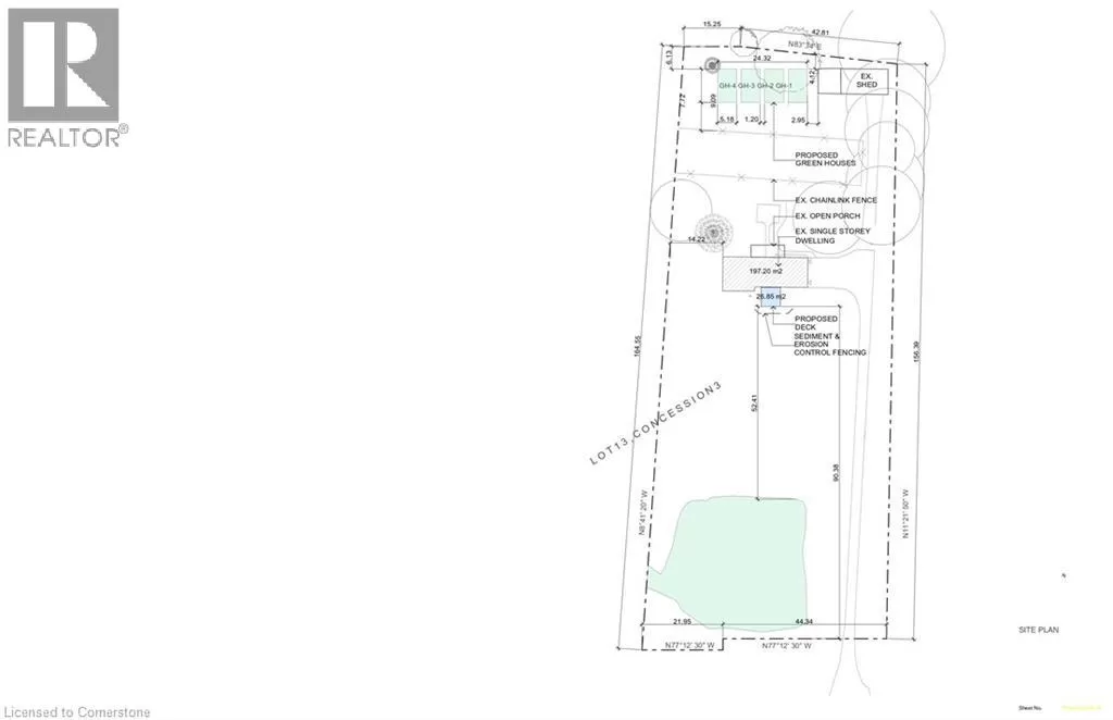
View all 50 photos

Learn more about this property
Listing provided by:
RE/MAX Escarpment Realty Inc.
MLS® number:
40758647
Agent:
Drew Woolcott
*Indicates required field
Name is required
Email is required
Please enter a valid phone number (e.g., 416-111-1111).

About

Brock Rd to Hwy 5 & Ofiled Rd N Welcome to your dream country retreat! This fully renovated ranch bungalow set well back from the entrance, sits on 2.47 scenic acres, offering the perfect blend of privacy and functionality. Enjoy modern finishes throughout the open-concept main floor featuring a stylish kitchen, a spacious living area, and bright dining space with serene views. With a few minor adjustments this home would give you 2+2 bedrooms, 2.5 updated bathrooms, and a finished lower level with separate entrance – ideal for in-law suite potential. Outdoors, you'll find a tranquil pond, a detached workshop with heat and hydro for hobbies or storage, and a 2-car garage. Bonuses include natural gas to the home, garden irrigation and complete water filtration system. Whether you're entertaining, relaxing, or working from home, this property has it all. Peaceful rural living just minutes from town amenities! Don’t be TOO LATE*! *REG TM. RSA. (id:27476)

Property Highlights

MLS® Number
40758647
Type
Single Family
Ownership Type
Freehold
Land Size
2.47 ac|2 - 4.99 acres
Parking Space Total
20

Building

Building Type
House
Storeys
1.00
Square Footage
2842 sqft
Bathrooms Total
3
Bedrooms Above Ground
1
Bedrooms Total
3
Amenities
Golf Nearby
Exterior Finish
Brick
Fireplace Present
No
Basement Type
Full (Finished)
Basement Features
Building Heating Type
Forced air
Heating Fuel
Natural gas
Building Cooling Type
Central air conditioning

Utilities

Water
Well
Utility Sewer
Septic System

Room Layout

Kitchen
Basement
12'0'' x 10'7''
3pc Bathroom
Basement
Measurements not available
Recreation room
Basement
24'8'' x 14'1''
Bedroom
Basement
13'11'' x 13'1''
Bedroom
Basement
13'9'' x 16'11''
2pc Bathroom
Main level
Measurements not available
Laundry room
Main level
Measurements not available
3pc Bathroom
Main level
Measurements not available
Primary Bedroom
Main level
37'1'' x 13'9''
Living room/Dining room
Main level
28'9'' x 14'4''
Kitchen
Main level
13'10'' x 9'3''

Location