8 Sydenham Street, Dundas, Ontario L9H 2T4

Listed for:
$1,000,950
0 beds
0 baths
Listed 61 days ago
8 Sydenham Street, Dundas, Ontario L9H 2T4

View all 46 photos

About

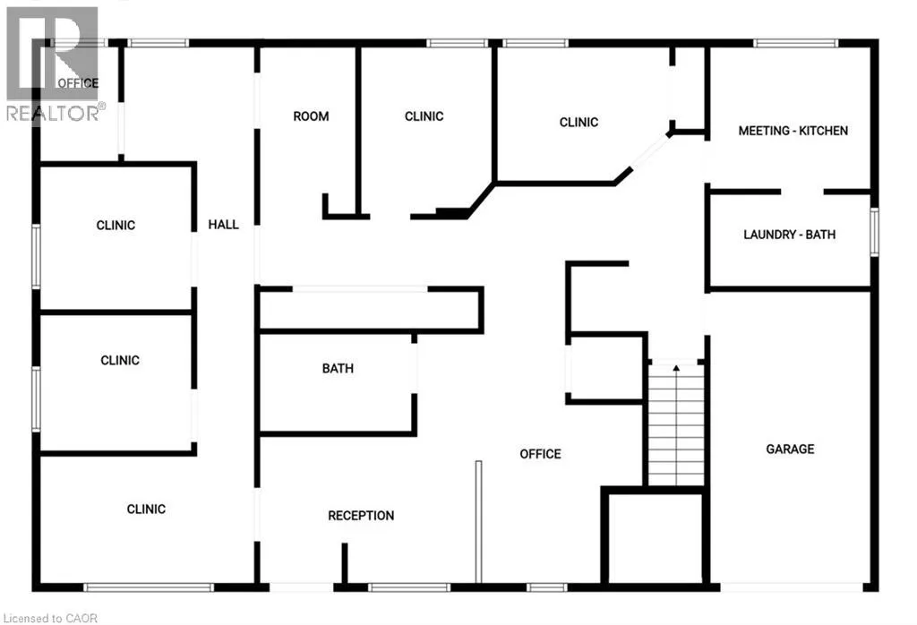
DOWNTOWN DUNDAS, BETWEEN KING ST. AND PARK ST. Prime opportunity in the heart of Downtown Dundas! Ideally located just steps from vibrant King Street West, this well-situated commercial building offers exceptional visibility in a high-traffic area surrounded by shops, restaurants, and local amenities. Offering approximately 2,680 sq. ft. of main floor space plus a full basement, the property provides excellent flexibility for a variety of business needs. Zoned C5, it allows for many potential uses, making it an ideal location for professional offices, service businesses, boutique retail, or other permitted commercial ventures. With Leases in place this is an investment opportunity in Downtown Dundas. (id:27476)

Property Highlights

MLS® Number
40807097
Type
Office
Ownership Type
Freehold
Land Size
0.04 ac|under 1/2 acre

Building

Storeys
2.00
Square Footage
2680 sqft
Amenities
Public Transit
Exterior Finish
Stucco
Fireplace Present
No
Basement Type
Full
Basement Features
Building Heating Type
Heating Fuel
Building Cooling Type

Utilities

Water
Municipal water
Utility Sewer
Municipal sewage system

Location

Learn more about this property
Listing provided by:
Com/Choice Realty
MLS® number:
40807097
Agent:
Don Robertson
*Indicates required field
Name is required
Email is required
Please enter a valid phone number (e.g., 416-111-1111).