16 Ramsay Street, East Gwillimbury, Ontario L0G 1H0

Listed for:
$1,019,000
5 beds
3 baths
Listed 6 days ago
House for rent: 16 Ramsay Street, East Gwillimbury, Ontario L0G 1H0

View all 24 photos

About

Cross Streets: Parkside/Ramsay. ** Directions: younge st to parkside. Welcome to 16 Ramsay St, a spacious and beautifully updated family home nestled on a massive 102 x 165 ft lot in the heart of Holland Landing. This impressive 4-bedroom, 3-bathroom residence offers the perfect blend of comfort, style, and privacy. Step inside to discover a bright main floor featuring a welcoming family room, a separate living area, and a stunning new kitchen with modern updates including stainless steel appliances. Enjoy the ambiance created by updated light fixtures and new laminate flooring throughout the main level, providing a fresh and contemporary feel.Upstairs, find four generously sized bedrooms and two full bathrooms. The primary suite boasts a large closet and a private ensuite, offering a peaceful retreat at the end of the day.The partially finished basement provides flexible space for extended family, a play area for kids, or a home office-tailor it to suit your needs.Step outside to a truly expansive and private backyard, perfect for entertaining, gardening, or simply relaxing in your own outdoor oasis.Located on a quiet street, this home is just minutes from local shops, schools, and scenic trails, offering both tranquility and convenience. Don't miss the opportunity to make this exceptional property your new home (id:27476)

Property Highlights

MLS® Number
N12771748
Type
Single Family
Community Name
Holland Landing
Ownership Type
Freehold
Land Size
102.7 x 162.5 FT|under 1/2 acre
Parking Space Total
11

Building

Building Type
House
Storeys
2.00
Square Footage
2000 - 2500 sqft
Bathrooms Total
3
Bedrooms Above Ground
4
Bedrooms Total
5
Exterior Finish
Brick, Aluminum siding
Fireplace Present
Yes
Basement Type
N/A (Partially finished)
Basement Features
Building Heating Type
Forced air
Heating Fuel
Natural gas
Building Cooling Type
Central air conditioning

Utilities

Utility Sewer
Septic System

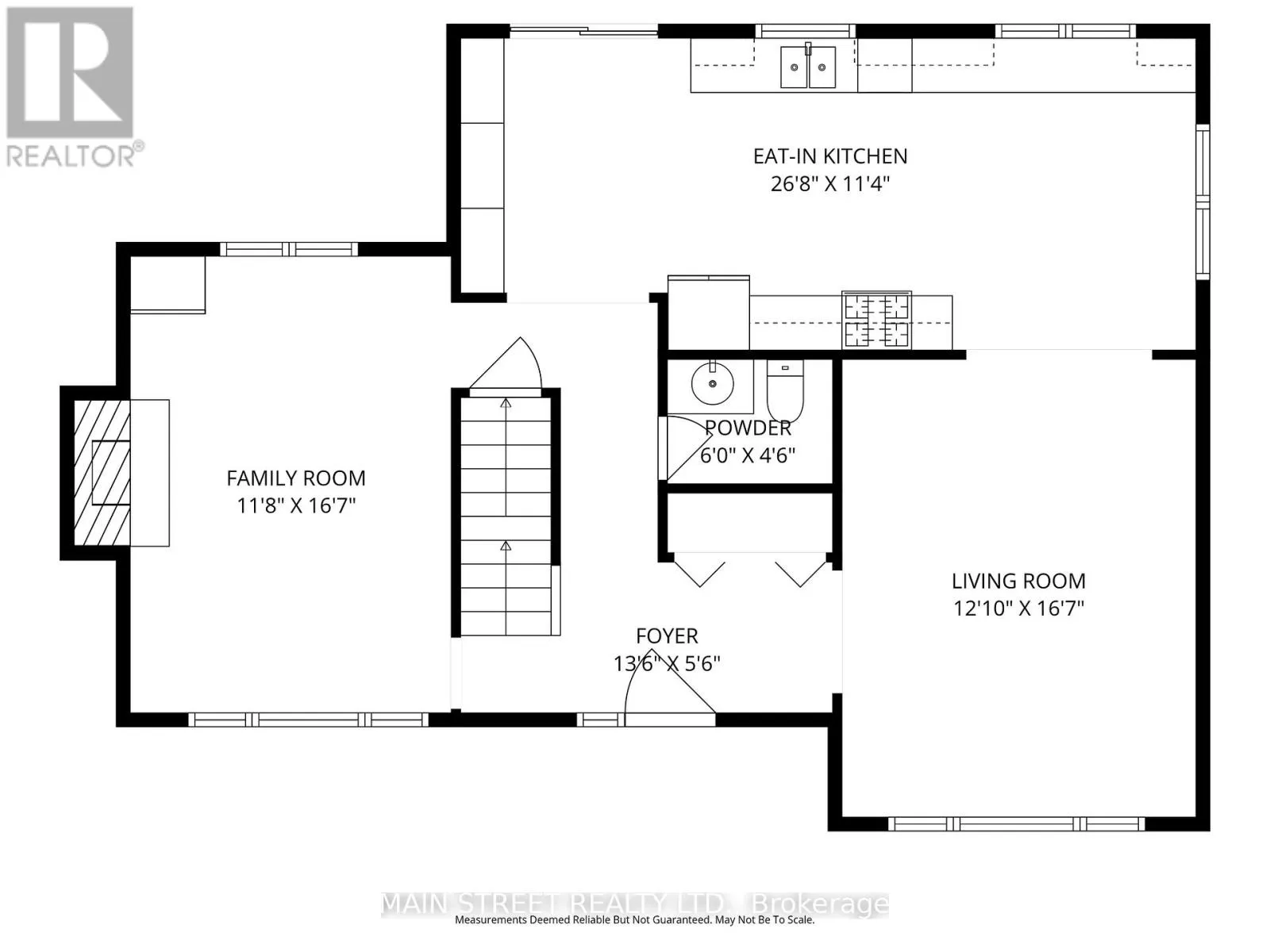
Room Layout

Primary Bedroom
Second level
4.32 m x 3.62 m
Bedroom 2
Second level
3.41 m x 2.81 m
Bedroom 3
Second level
2.94 m x 2.81 m
Bedroom 4
Second level
3.88 m x 2.68 m
Recreational, Games room
Basement
8.11 m x 3.54 m
Bedroom 5
Basement
5.06 m x 3.83 m
Kitchen
Ground level
4.87 m x 3.3 m
Family room
Ground level
5.1 m x 3.77 m
Living room
Ground level
5.13 m x 3.89 m
Dining room
Ground level
3.35 m x 3.01 m

Location

Learn more about this property
Listing provided by:
MAIN STREET REALTY LTD.
MLS® number:
N12771748
Agent:
Chris Cartwright
*Indicates required field
Name is required
Email is required
Please enter a valid phone number (e.g., 416-111-1111).

Community Spotlight: Homes For sale in Your Neighborhood