2685 Concession 7 Road, East Hawkesbury, Ontario K0B 1P0

Listed for:
$759,000
3 beds
2 baths
Listed 1 day ago
House for rent: 2685 Concession 7 Road, East Hawkesbury, Ontario K0B 1P0

View all 36 photos

About

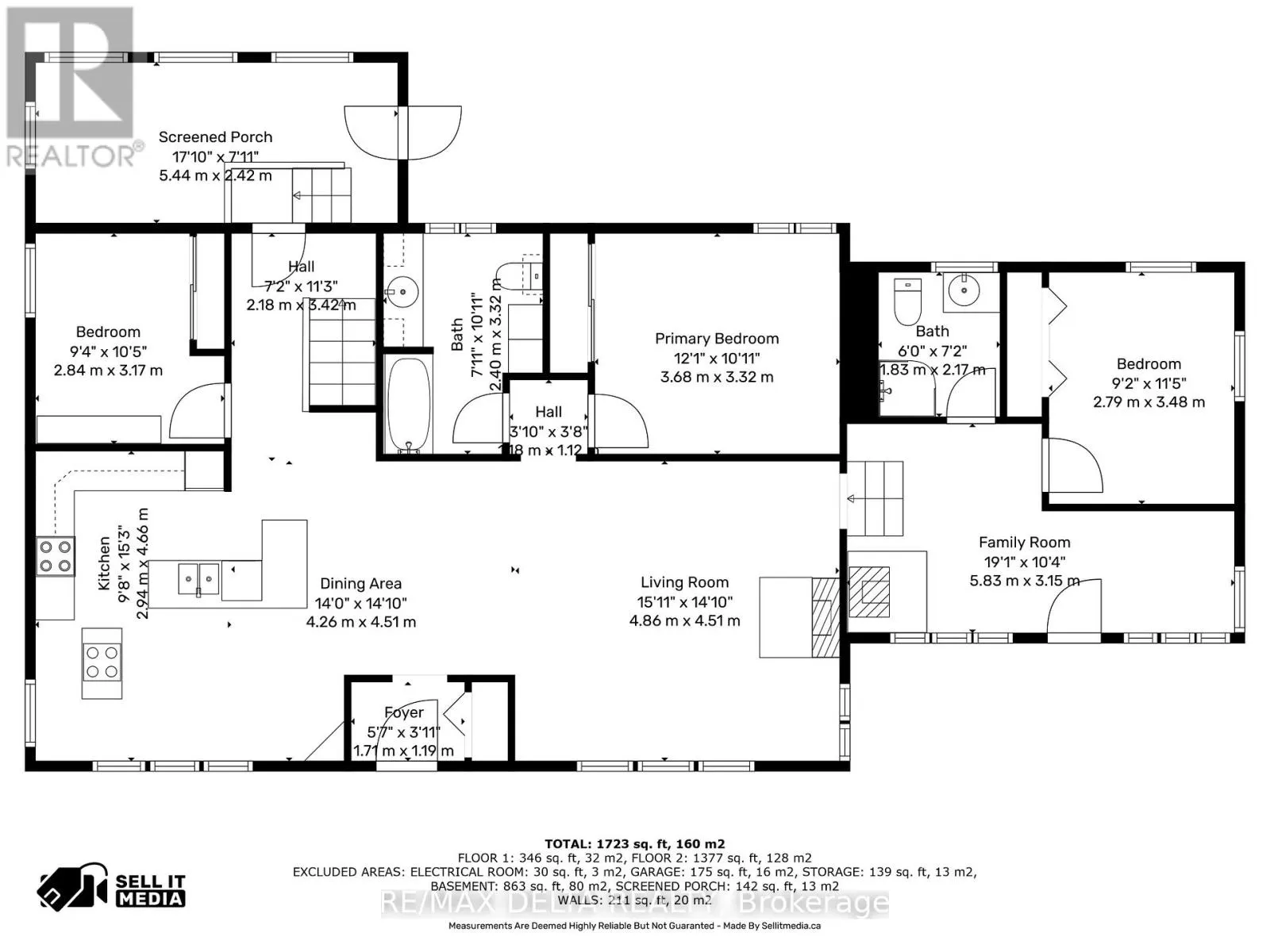
Cross Streets: County Road 23 & Breadalbane Road. ** Directions: Follow County Road 10 east from Vankleek Hill to County Road 23; take County Road 23 to Breadalbane Road. Turn left onto Breadalbane Road, follow to end, turn right. Property will be on your left. This is an exceptional, one-of-a-kind opportunity. Looking to grow your own food and live in a peaceful rural environment? This six-acre property is waiting for you, with gardens, berry bushes, asparagus, apple and pear trees and more! Discover six acres of extraordinary beauty and sustainability, perfect for avid gardeners, horticulturists, or family ventures! This unique property, featuring many varieties of plants and trees, has been professionally nurtured for more than 30 years, making it a gardener's paradise. At the heart of the property lies a charming three-bedroom bungalow, showcasing 10-inch thick stone exterior walls crafted by the owner. The open-concept living, dining, and kitchen area creates a welcoming living space. Enhancements to the home include a convenient mudroom and a one-bedroom, one-bathroom suite with a separate entrance, ideal for guests.The unfinished basement boasts nine-foot ceilings, offering ample space for potential projects, along with a cold room and drive-in garage, perfect for the harvest and storing or processing what you grow. This impressive acreage features over 30 varieties of apple, pear, and plum trees in its orchards, alongside mature trees, perennials, shrubs, and plenty of vegetable garden plots, all supported by a reliable well-fed irrigation system.You'll be fully equipped to start your agricultural journey as the sale includes a tractor, all farm tools, wine-making equipment, a cider press, gardening supplies, and various accessories. Additionally, there is a large machine and storage shed measuring 7.5 x 16 meters, built on a low concrete wall with a concrete slab. Offers irrevocable for 24 hours. (id:27476)

Property Highlights

MLS® Number
X13002190
Type
Single Family
Ownership Type
Freehold
Land Size
362.3 x 571 FT|5 - 9.99 acres
Parking Space Total
10

Building

Building Type
House
Storeys
1.00
Square Footage
1500 - 2000 sqft
Bathrooms Total
2
Bedrooms Above Ground
3
Bedrooms Total
3
Amenities
Fireplace(s)
Exterior Finish
Stone, Stucco
Fireplace Present
Yes
Basement Type
N/A (Unfinished)
Basement Features
Building Heating Type
Baseboard heaters
Heating Fuel
Electric
Building Cooling Type
None

Utilities

Utility Sewer
Septic System

Location

Learn more about this property
Listing provided by:
RE/MAX DELTA REALTY
MLS® number:
X13002190
Agent:
Louise Sproule
*Indicates required field
Name is required
Email is required
Please enter a valid phone number (e.g., 416-111-1111).