402 - 50 Emma Street, East Luther Grand Valley, Ontario L9W 5P9

Listed for:
$669,000
2 beds
2 baths
Listed 47 days ago
Apartment for rent: 402 - 50 Emma Street, East Luther Grand Valley, Ontario L9W 5P9

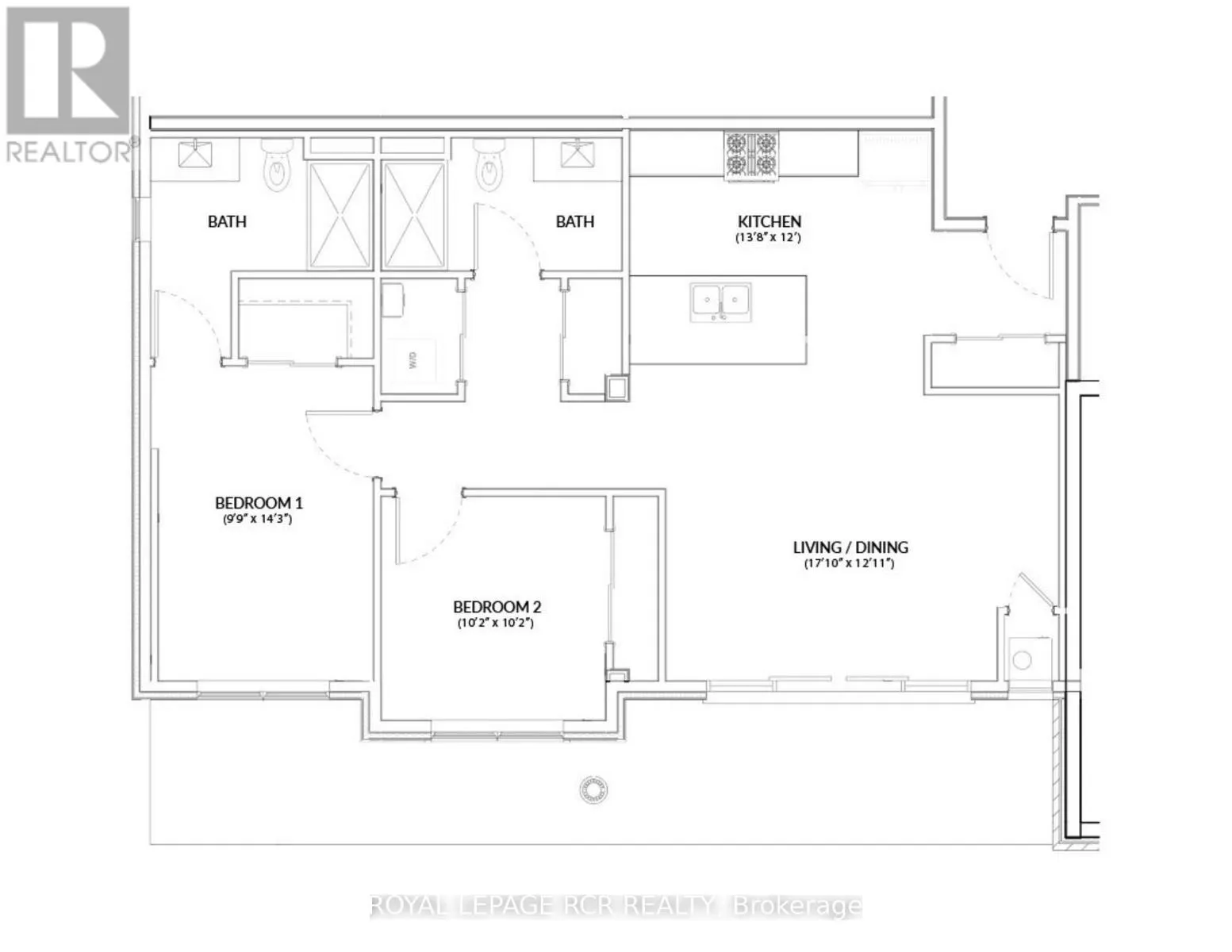
View all 5 photos

About

Cross Streets: Emma St & William St. ** Directions: Take highway 25 to Emma St. **NEW PRICE! Save the HST!** Welcome to The Arbours Grand, a boutique luxury condominium by Sheldon Creek Homes, now released to MLS with anticipated occupancy in Fall 2027. Designed with comfort and sophistication in mind, The Grand Suite is the largest residence in the building, offering a generous 1,091 sq. ft. of thoughtfully planned living space. The open-concept kitchen and living area is ideal for both everyday living and entertaining, with a walkout to a spacious private deck. Two well-proportioned bedrooms are positioned to capture east-facing views of the Grand River - a fitting inspiration for the suite's name. The layout includes two full bathrooms, including a private ensuite and a main bath. Owners will enjoy the opportunity to select from a curated collection of quality standard finishes, including quartz countertops in both the kitchen and bathrooms, luxury vinyl plank flooring, and pot lights throughout. This boutique condo community is limited to just 18 suites, with only three Grand Suites available. Set in the charming riverside town of Grand Valley, residents will enjoy small town warmth with big conveniences. From picturesque trails and local shops to a vibrant community spirit, Grand Valley offers the perfect balance of peaceful living and modern accessibility. A rare offering in Grand Valley, this is the area's first luxury condominium featuring indoor parking and elevator access. (id:27476)

Property Highlights

MLS® Number
X12959800
Type
Single Family
Community Name
Grand Valley
Maintenance Fee
711.57
Ownership Type
Condominium/Strata
Parking Space Total
1

Building

Building Type
Apartment
Square Footage
1000 - 1199 sqft
Bathrooms Total
2
Bedrooms Above Ground
2
Bedrooms Total
2
Amenities
Visitor Parking, Storage - Locker Park, Place of Worship, Schools
Exterior Finish
Brick, Vinyl siding
Fireplace Present
No
Basement Type
None
Basement Features
Building Heating Type
Other
Heating Fuel
Building Cooling Type

Location

Learn more about this property
Listing provided by:
ROYAL LEPAGE RCR REALTY
MLS® number:
X12959800
Agent:
Kati Atkinson
*Indicates required field
Name is required
Email is required
Please enter a valid phone number (e.g., 416-111-1111).