10827 Jellyby Road, Elizabethtown-Kitley, Ontario K0G 1R0

Listed for:
$534,900
1 beds
1 baths
Listed 67 days ago
House for rent: 10827 Jellyby Road, Elizabethtown-Kitley, Ontario K0G 1R0

View all 42 photos

About

Cross Streets: Cty Road 15 / Jellyby. ** Directions: Exit 705 off 401 and Head North on Cty Road 15. go through Algonquin and North Augusta; first road to the left is Jellyby. head west till you come to #10827, located on the left-hand side of the road. 98.9 Acres of Private Woodland with Stream-Eastern Ontario Located just 20 minutes from Brockville and approximately one hour from Ottawa, this 98.9-acre property offers a rare opportunity to own a large, private tract of natural land in Eastern Ontario. The acreage consists of mature forest, cedar bush, and natural wetlands that support abundant wildlife and a tranquil environment. A tributary stream known as Fly Creek divides the property, feeding into a marshland area that forms a rich part of the property's diverse landscape. This area is currently designated as protected wetlands by the Ontario government. Approximately 20+ acres were previously cultivated and could potentially be returned to use for hay, gardens, or small-scale farming. The land has never been treated with pesticides, making it well-suited for organic growing or hobby farm pursuits. Infrastructure for rural living is already in place. The property includes an established driveway, a 122 ft. drilled well, a septic system, and Bell Fibre high-speed internet installed, an uncommon feature for rural properties and a significant advantage for digital homesteaders. There is an existing log cabin of approximately 1,560 sq. ft. on the property along with an 864 sq. ft. Quonset hut workshop/studio built in 2004. These structures offer functional space for storage, projects, or renovation. Properties of this size and privacy are increasingly sought by buyers looking to step away from city density while remaining within reach of services. The location and connectivity make the property particularly appealing for remote professionals, Ottawa-area retirees, lifestyle buyers seeking space and privacy, or those searching for recreational land and a long-term countryside retreat. (id:27476)

Property Highlights

MLS® Number
X12870122
Type
Single Family
Community Name
811 - Elizabethtown Kitley (Old Kitley) Twp
Ownership Type
Freehold
Land Size
512.7 FT|50 - 100 acres
Parking Space Total
10

Building

Building Type
House
Storeys
2.00
Square Footage
1500 - 2000 sqft
Bathrooms Total
1
Bedrooms Above Ground
1
Bedrooms Total
1
Amenities
Fireplace(s)
Exterior Finish
Log, Wood
Fireplace Present
Yes
Basement Type
N/A (Unfinished)
Basement Features
Building Heating Type
Forced air
Heating Fuel
Propane
Building Cooling Type
None

Utilities

Utility Sewer
Septic System

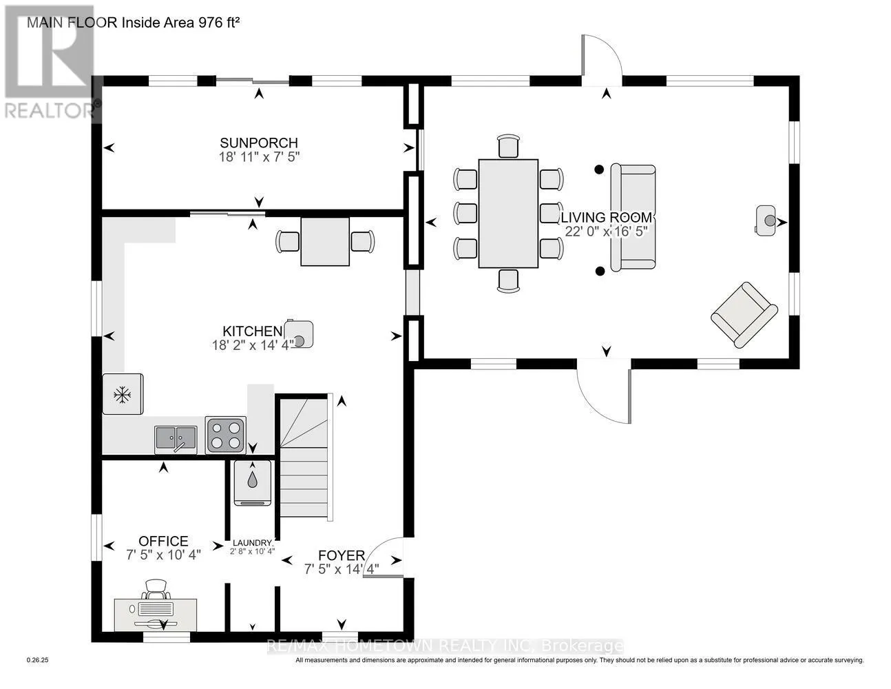
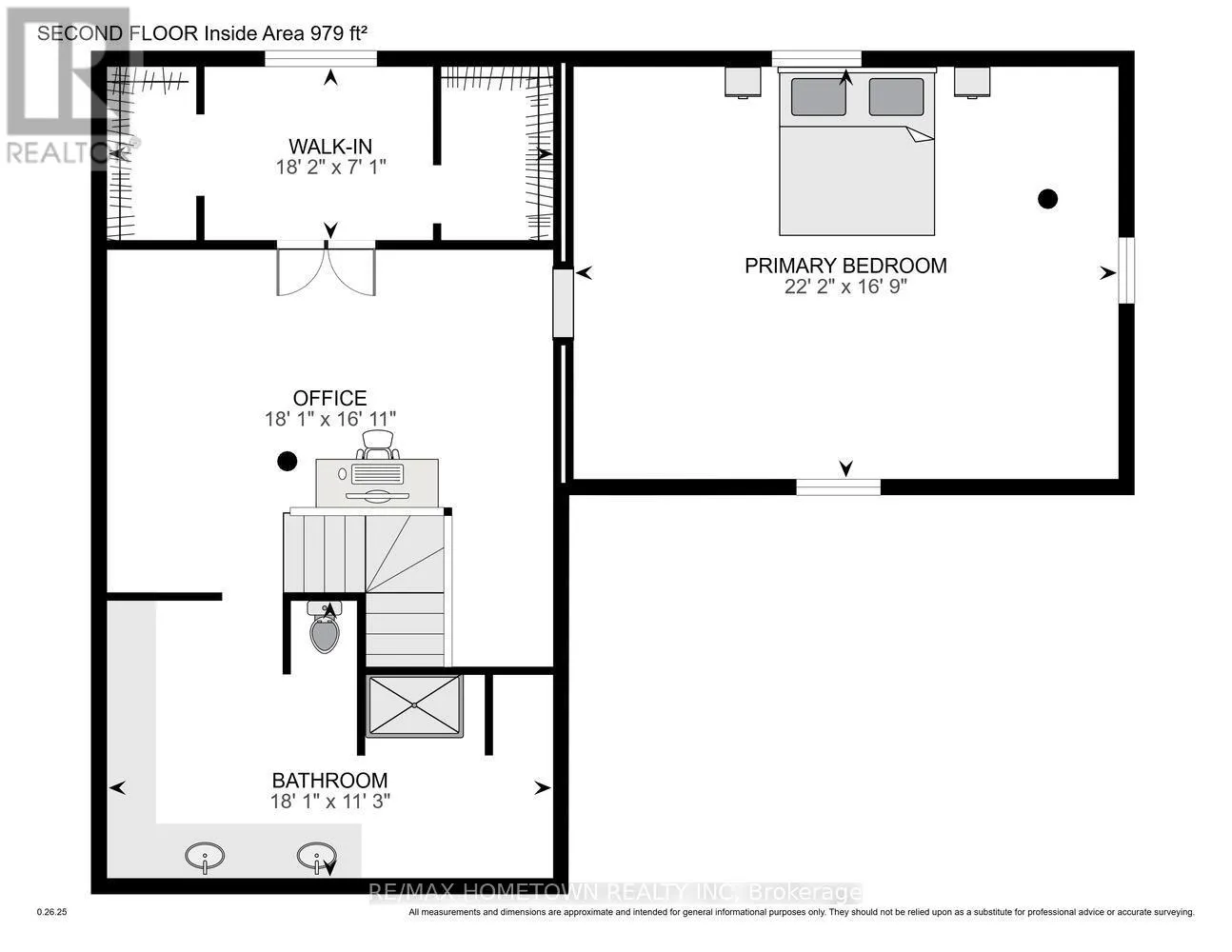
Room Layout

Bathroom
Second level
3.44 m x 5.52 m
Family room
Second level
5.16 m x 5.52 m
Other
Second level
2.15 m x 5.54 m
Primary Bedroom
Second level
5.1 m x 6.75 m
Foyer
Main level
2.27 m x 4.36 m
Laundry room
Main level
0.82 m x 3.15 m
Office
Main level
2.26 m x 3.15 m
Kitchen
Main level
4.37 m x 5.54 m
Sunroom
Main level
2.26 m x 5.77 m
Living room
Main level
5 m x 6.71 m

Location

Learn more about this property
Listing provided by:
RE/MAX HOMETOWN REALTY INC
MLS® number:
X12870122
Agent:
Bambi Marshall
*Indicates required field
Name is required
Email is required
Please enter a valid phone number (e.g., 416-111-1111).