100 Trafalgar Road, Erin, Ontario N0B 1Z0

Listed for:
$899,900
0 beds
0 baths
Listed 36 days ago
100 Trafalgar Road, Erin, Ontario N0B 1Z0

View all 28 photos

Learn more about this property
Listing provided by:
ROYAL LEPAGE FLOWER CITY REALTY
MLS® number:
X12459965
Agent:
Parm Grewal
*Indicates required field
Name is required
Email is required
Please enter a valid phone number (e.g., 416-111-1111).

About

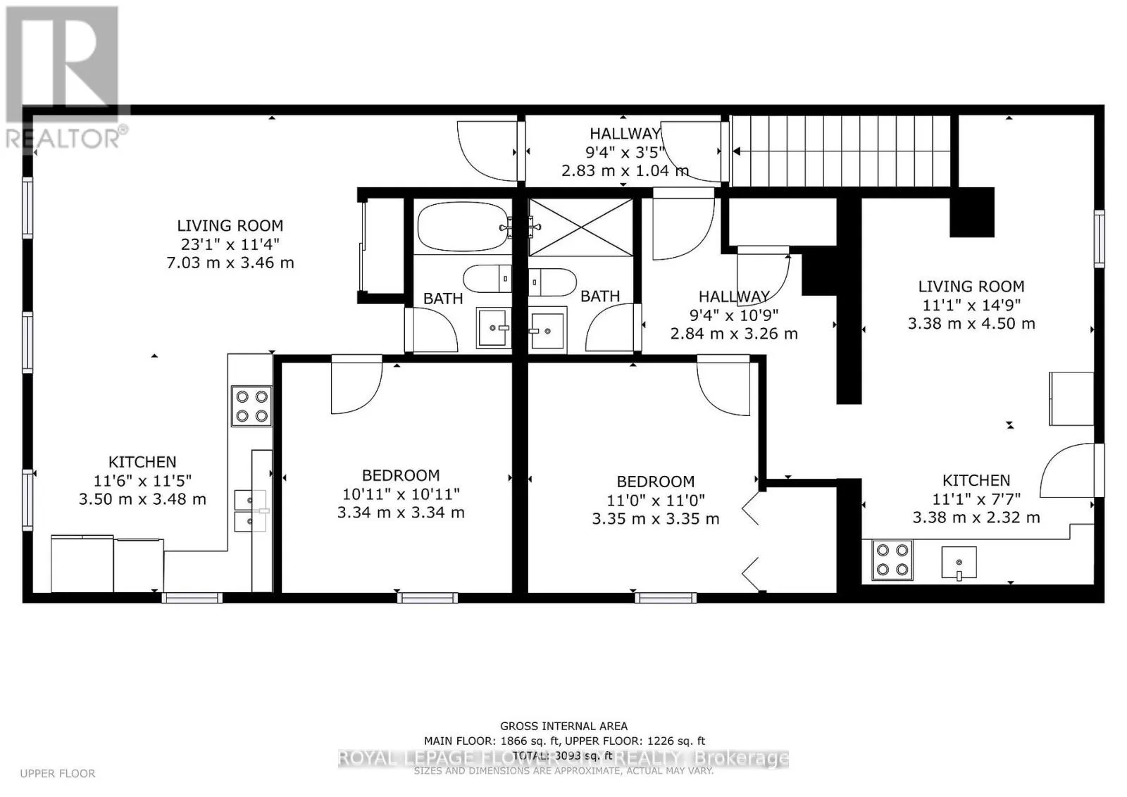
Trafalgar Rd & Geroge St Situated On PRIME LOCATION !! This commercial property presents an exceptional investment opportunity. It is strategically situated on the busy main street of Hillsburgh, guaranteeing ahigh volume of traffic and excellent visibility. Currently, the property generates a monthly income of $6,200, boasting a cap rate of 6.4%. It is fully leased with Main Floor Is Leased with Pharmacy on renewal options and upstairs 2 updated residential units are with long term Tenants. This property is not just attractive from a financial standpoint; it has also received recent structural and mechanical upgrades, with more than $150,000 spent on renovations. Thec-1 zoning allows for a variety of commercial uses, adding to its appeal for potential tenants. Conveniently located in close proximity to a range of amenities, including a grocery store, arena, and veterinary clinic, the property also offers ample parking for both tenants and customers, further enhancing its appeal. Overall, this commercial property represents an exceptional investment opportunity due to its prime location, consistent rental income, recent updates, and potential for additional revenue streams A portion of the lot is leased on a grandfathered 99 year lease (20.03ft X 52.29ft )PIN (711390220)from the Township of Erin. (id:27476)

Property Highlights

MLS® Number
X12459965
Type
Retail
Community Name
Rural Erin
Land Size
45.46 x 115.47 FT

Building

Square Footage
3650 sqft
Fireplace Present
No
Basement Type
Basement Features
Building Heating Type
Forced air
Heating Fuel
Natural gas
Building Cooling Type
Fully air conditioned

Location