40 Shamrock Crescent, Essa, Ontario L3W 0A5

Listed for:
$419,900
2 beds
1 baths
Listed 98 days ago
Mobile Home for rent: 40 Shamrock Crescent, Essa, Ontario L3W 0A5

View all 29 photos

Learn more about this property
Listing provided by:
KELLER WILLIAMS EXPERIENCE REALTY
MLS® number:
N12439712
Agent:
Linda Knight
*Indicates required field
Name is required
Email is required
Please enter a valid phone number (e.g., 416-111-1111).

About

Cross Streets: COUNTY ROAD 10/25TH SIDEROAD. ** Directions: Cty Rd 10 to 25th Side Road to Shamrock Cres. This brand-new mobile home is situated in a quiet, well-maintained Angus park, offering a peaceful and convenient lifestyle. Built on a solid concrete pad with hurricane straps, this home is designed for durability and comfort. Step inside to discover a spacious, open-concept layout featuring a modern eat-in kitchen with sleek stainless steel appliances and stylish laminate flooring throughout - completely carpet-free! The home offers two generously sized bedrooms, a full bathroom with ample storage, and a walkout to 2 brand-new decks - front and back, overlooking a fully fenced yard on a generous lot. A new garden shed provides additional storage space, while the double driveway adds extra convenience. All appliances are brand new, including a gas dryer. Located just minutes from all amenities, with quick access to Angus, Base Borden, and Alliston, this home is perfect for those seeking comfort, style, and easy living. Fees $511.52/Month include taxes, water, and road maintenence. Don't miss this fantastic opportunity - schedule your viewing today! (id:27476)

Property Highlights

MLS® Number
N12439712
Type
Single Family
Community Name
Rural Essa
Land Size
under 1/2 acre
Parking Space Total
2

Building

Building Type
Mobile Home
Storeys
1.00
Square Footage
700 - 1100 sqft
Bathrooms Total
1
Bedrooms Above Ground
2
Bedrooms Total
2
Amenities
Golf Nearby, Park, Schools
Exterior Finish
Vinyl siding
Fireplace Present
No
Basement Type
None
Basement Features
Building Heating Type
Forced air
Heating Fuel
Natural gas
Building Cooling Type
Central air conditioning

Utilities

Utility Sewer
Septic System

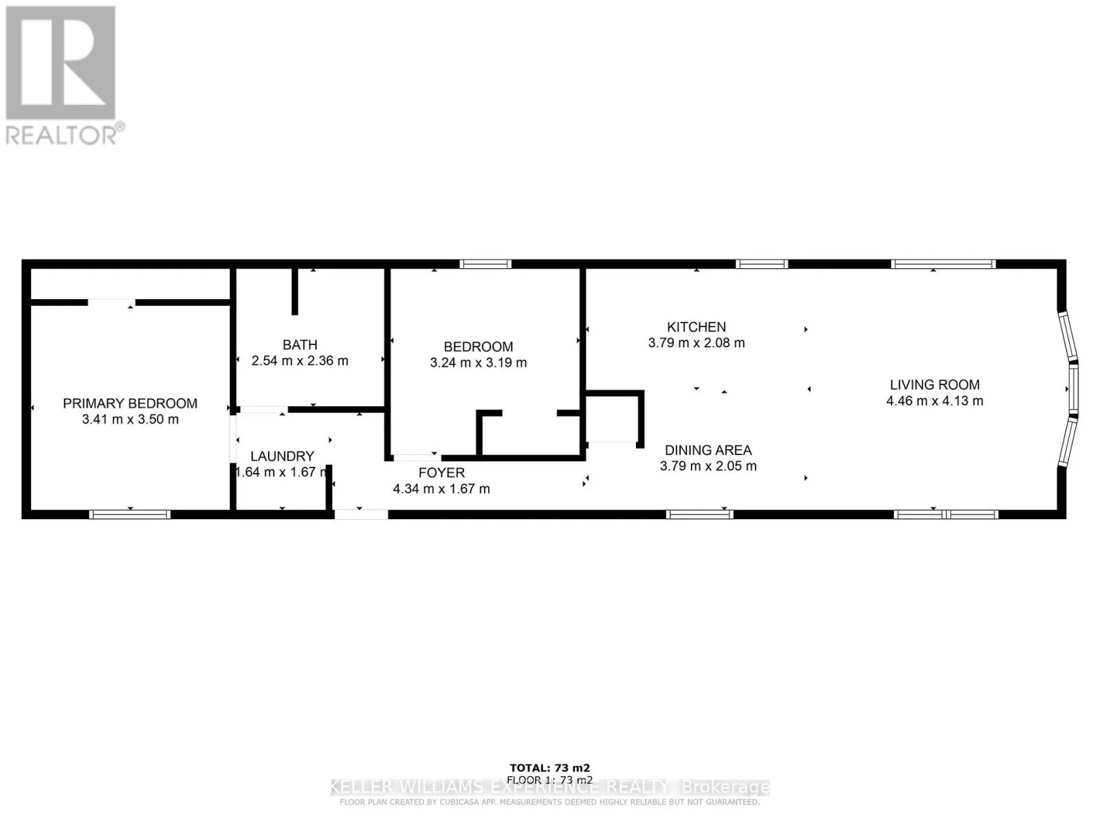
Room Layout

Kitchen
Main level
4.34 m x 3.76 m
Living room
Main level
4.34 m x 4.52 m
Primary Bedroom
Main level
3.48 m x 3.63 m
Bedroom
Main level
3.33 m x 3.28 m

Location