12 Greenwood Drive, Essa, Ontario L3W 0N5

Listed for:
$624,900
3 beds
3 baths
Listed 3 days ago
Row / Townhouse for rent: 12 Greenwood Drive, Essa, Ontario L3W 0N5

View all 36 photos

About

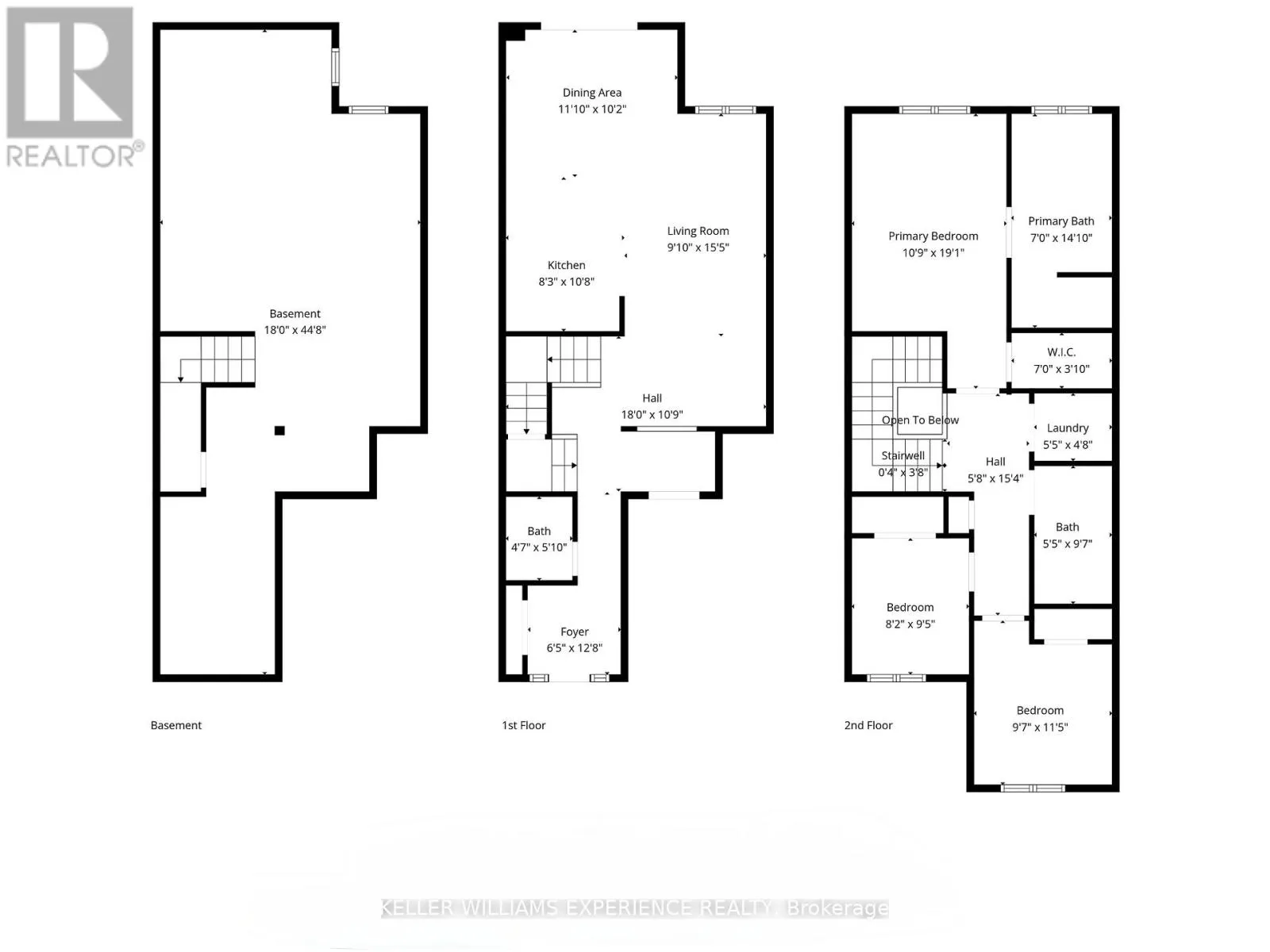
Cross Streets: Centre St To Greenwood Dr. ** Directions: Centre/Greenwood. WELCOME TO 12 GREENWOOD DR, ANGUS. This stunning, move-in ready townhome offers over 1,500 sq ft of bright, functional living space. Perfectly situated for an easy commute to Base Borden, Alliston, and Barrie. MAIN LEVEL. The open-concept floor plan features soaring 9 ft ceilings and is flooded with natural light. This level boasts beautiful flooring, updated light fixtures (2026), and a seamless inside entry from the garage. The modern eat-in kitchen is designed for everyday living, offering ample cabinetry, generous counter space, and a walkout to the private deck and yard. The property is complete with inground sprinklers for effortless maintenance. UPPER LEVEL. The second floor features the highly sought-after convenience of 2nd-floor laundry. The spacious primary suite serves as a private retreat with a large walk-in closet and a full ensuite bathroom featuring a soaker tub and separate shower. Two additional well-sized bedrooms offer great flexibility for family, guests, or a dedicated home office. LOWER LEVEL AND EXTRAS. The full, unspoiled basement includes a 100-amp electrical panel and offers endless potential for a home gym or extra living space. The HRV, furnace and A/C system was professionally cleaned and serviced at the start of April 2026. Ideally located within walking distance to local parks and schools. This is turn-key living in a prime Simcoe County location. (id:27476)

Property Highlights

MLS® Number
N12990182
Type
Single Family
Community Name
Angus
Ownership Type
Freehold
Land Size
21 x 165.7 FT|under 1/2 acre
Parking Space Total
4

Building

Building Type
Row / Townhouse
Storeys
2.00
Square Footage
1500 - 2000 sqft
Bathrooms Total
3
Bedrooms Above Ground
3
Bedrooms Total
3
Amenities
Golf Nearby, Park, Public Transit, Schools
Exterior Finish
Stone, Vinyl siding
Fireplace Present
No
Basement Type
Full (Unfinished)
Basement Features
Building Heating Type
Forced air
Heating Fuel
Natural gas
Building Cooling Type
None

Utilities

Water
Municipal water
Utility Sewer
Sanitary sewer

Room Layout

Primary Bedroom
Second level
4.67 m x 3.35 m
Bedroom
Second level
3.05 m x 2.79 m
Bedroom
Second level
3.05 m x 2.74 m
Living room
Main level
6.6 m x 3.05 m
Kitchen
Main level
3.35 m x 2.46 m
Eating area
Main level
3.35 m x 3.05 m

Location

Learn more about this property
Listing provided by:
KELLER WILLIAMS EXPERIENCE REALTY
MLS® number:
N12990182
Agent:
Linda Knight
*Indicates required field
Name is required
Email is required
Please enter a valid phone number (e.g., 416-111-1111).

Street Spotlight - For sale