Lot 10 Ducharme, Essex, Ontario N0R 1J0

Listed for:
$734,999
3 beds
2 baths
Listed 51 days ago
House for rent: Lot 10 Ducharme, Essex, Ontario N0R 1J0

View all 2 photos

About

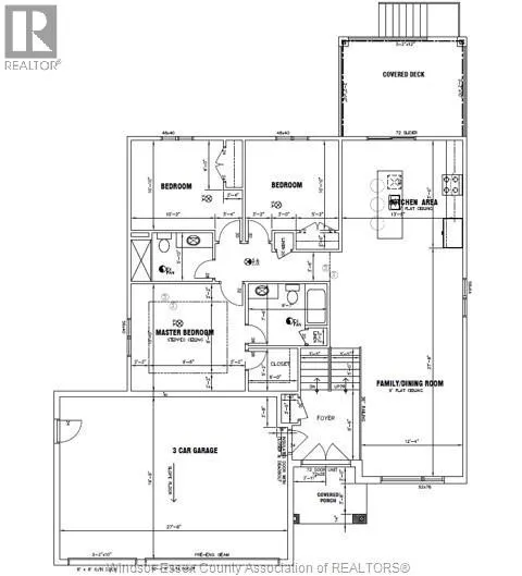
Built with exceptional attention to detail, this brand-new raised ranch by Gosselin Homes showcases a level of finish quality that stands out from typical new construction. This builder is quickly gaining recognition for thoughtful design, superior workmanship, and elevated finishes throughout. This impressive 3-bedroom, 2-bath home offers a bright, open-concept layout highlighted by engineered hardwood flooring and a spacious main living area ideal for both everyday living and entertaining. The kitchen is designed as the heart of the home, seamlessly connecting to the living and dining spaces. The primary suite delivers a true retreat experience with a spa-inspired ensuite featuring heated floors and a striking custom tile shower. A rare triple-car garage and wide driveway provide exceptional parking, storage, and workspace flexibility. The convenient grade entrance and full unfinished basement offer outstanding potential for future additional living space or customization to suit your needs. Gosselin Homes is quickly establishing a reputation for building residences that exceed expectations, making this property an excellent opportunity to own a brand-new home where quality and craftsmanship are clearly evident from the moment you walk in. (id:27476)

Property Highlights

MLS® Number
26002983
Type
Single Family
Ownership Type
Freehold
Land Size
63.98 X IRREG

Building

Building Type
House
Bathrooms Total
2
Bedrooms Above Ground
3
Bedrooms Total
3
Exterior Finish
Aluminum/Vinyl, Stone
Fireplace Present
No
Basement Type
Basement Features
Building Heating Type
Forced air
Heating Fuel
Natural gas
Building Cooling Type
Central air conditioning

Location

Learn more about this property
Listing provided by:
PINNACLE PLUS REALTY LTD.
MLS® number:
26002983
Agent:
John Bouffard
*Indicates required field
Name is required
Email is required
Please enter a valid phone number (e.g., 416-111-1111).