1811 Nepewassi Lake Road, Estaire, Ontario P3E 4N1

Listed for:
$849,900
2 beds
2 baths
Listed 8 days ago
House for rent: 1811 Nepewassi Lake Road, Estaire, Ontario P3E 4N1

View all 55 photos

About

Welcome to Nepewassi Road in Estaire! This 2016-built bungalow is set on a private 25-acre property, offering the perfect blend of comfort and outdoor lifestyle. The bright, open-concept main floor features two bedrooms, a full bathroom with laundry, an additional 2-piece washroom, and convenient access to the attached garage. Enjoy the sunroom overlooking peaceful surroundings, complete with a cozy wood-burning fireplace - an inviting space to relax year-round. The kitchen offers excellent flow with ample prep space and a pantry, making it ideal for both everyday living and entertaining. The unfinished basement with 6-foot ceilings provides excellent storage and future potential. Outside, the property continues to impress with a partially fenced yard, barn-style garage, and additional outbuildings. A trail leads to the back of the property where you’ll find a private hunt camp with a wood stove, pond, and expansive land to explore. Whether you enjoy snowshoeing, hunting, or simply taking in nature, this property offers something to enjoy in every season. A chicken coop is already in place for those seeking a homestead lifestyle. A rare opportunity to own a versatile property with endless potential. (id:27476)

Property Highlights

MLS® Number
2126869
Type
Single Family
Ownership Type
Freehold
Land Size
10 - 50 acres

Building

Building Type
House
Storeys
1.00
Bathrooms Total
2
Bedrooms Total
2
Exterior Finish
Vinyl
Fireplace Present
Yes
Basement Type
Crawl space
Basement Features
Building Heating Type
Forced air
Heating Fuel
Building Cooling Type
Air exchanger, Central air conditioning

Utilities

Water
Drilled Well
Utility Sewer
Septic System

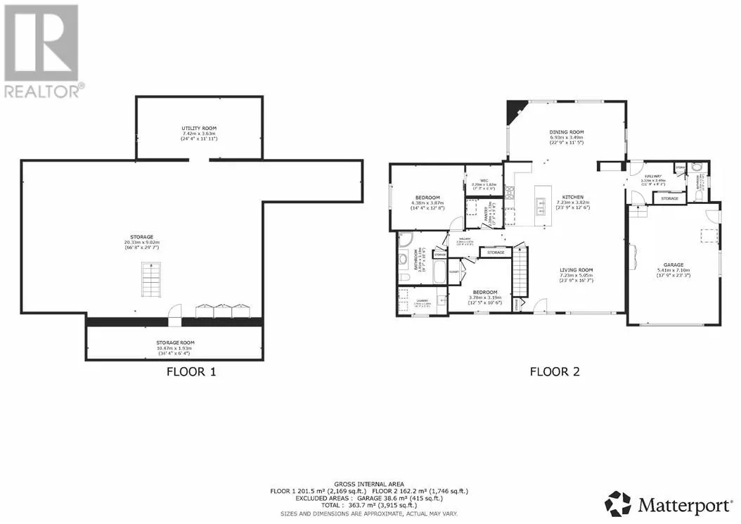
Room Layout

Other
Lower level
24'4"" x 11'11""
Storage
Lower level
34'4"" x 6'4""
Other
Lower level
66'8"" x 29'7""
Living room
Main level
23'9"" x 16'7""
Bathroom
Main level
4'0"" x 7'10""
Laundry room
Main level
9'7"" x 5'5""
Bedroom
Main level
12'5"" x 10'6""
Bathroom
Main level
9'7"" x 10'6'
Primary Bedroom
Main level
14'4"" x 12'8""
Pantry
Main level
7'3"" x 5'8""
Dining room
Main level
22'9"" x 11'5""
Kitchen
Main level
23'9"" x 12'6""

Location

Learn more about this property
Listing provided by:
RE/MAX CROWN REALTY (1989) INC., BROKERAGE (SUDBURY)
MLS® number:
2126869
Agent:
Jennifer Ames
*Indicates required field
Name is required
Email is required
Please enter a valid phone number (e.g., 416-111-1111).