Lot 2 Burleigh Road, Fort Erie, Ontario L0S 1N0

Listed for:
$1,490,000
3 beds
2 baths
Listed 139 days ago
House for rent: Lot 2 Burleigh Road, Fort Erie, Ontario L0S 1N0

View all 6 photos

Learn more about this property
Listing provided by:
KELLER WILLIAMS COMPLETE REALTY
MLS® number:
X12154323
Agent:
Joshua Mackenzie
*Indicates required field
Name is required
Email is required
Please enter a valid phone number (e.g., 416-111-1111).

About

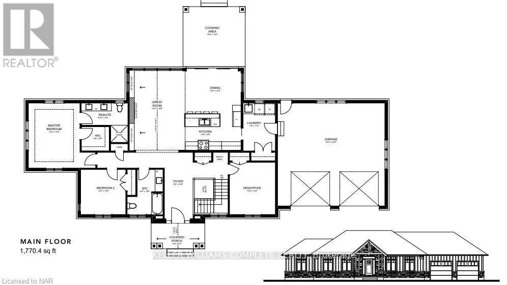
Cross Streets: Nigh. ** Directions: Located on the corner of Nigh Rd and Burleigh Rd. Where timeless craftsmanship meets refined living Homes by Hendriks is proud to present a custom-built masterpiece that redefines the meaning of home. With a longstanding reputation for excellence in the Real Estate and construction industries, Hendriks is synonymous with quality, integrity, and personalized service. Set on a breathtaking 2.46-acre lot, this stunning to-be-built bungalow offers a rare opportunity to create the home of your dreams. Featuring a thoughtfully designed 2-bedroom + office, 2-bathroom layout, every detail can be tailored to reflect your unique vision and lifestyle. The exterior is as impressive as the interior, showcasing a striking blend of stone and premium vinyl siding that complements the natural surroundings. Wake up to the peaceful sounds of nature, just minutes from the charming village of Ridgeway and the crystal-clear shores of Lake Erie. Whether you're seeking outdoor adventure or quiet moments in a serene setting, this location offers the best of both worlds. This is more than a house its a canvas for your future. A perfect fusion of luxury, comfort, and nature, waiting for your personal touch. (The lot for sale is the middle lot) (id:27476)

Property Highlights

MLS® Number
X12154323
Type
Single Family
Community Name
335 - Ridgeway
Ownership Type
Freehold
Land Size
208 x 465 FT|2 - 4.99 acres
Parking Space Total
6

Building

Building Type
House
Storeys
1.00
Square Footage
1500 - 2000 sqft
Bathrooms Total
2
Bedrooms Above Ground
3
Bedrooms Total
3
Amenities
Fireplace(s) Schools
Exterior Finish
Stone, Vinyl siding
Fireplace Present
Yes
Basement Type
Full (Unfinished)
Basement Features
Building Heating Type
Forced air
Heating Fuel
Natural gas
Building Cooling Type
Central air conditioning

Utilities

Water
Municipal water
Utility Sewer
Septic System

Room Layout

Living room
Main level
5.64 m x 3.96 m
Kitchen
Main level
4.11 m x 2.59 m
Dining room
Main level
4.11 m x 3.05 m
Foyer
Main level
4.72 m x 2.03 m
Primary Bedroom
Main level
4.62 m x 3.66 m
Bathroom
Main level
Measurements not available
Bathroom
Main level
Measurements not available
Bedroom
Main level
3.71 m x 3.25 m
Office
Main level
3.2 m x 3.2 m
Laundry room
Main level
3.4 m x 2.29 m

Location