396 Fairview Road, Fort Erie, Ontario L2A 4S2

Listed for:
$499,000
4 beds
2 baths
Listed 19 days ago
Duplex for rent: 396 Fairview Road, Fort Erie, Ontario L2A 4S2

View all 47 photos

Learn more about this property
Listing provided by:
RE/MAX NIAGARA REALTY LTD, BROKERAGE
MLS® number:
X12630590
Agent:
Shirzad Hamadamin
*Indicates required field
Name is required
Email is required
Please enter a valid phone number (e.g., 416-111-1111).

About

Cross Streets: Dominion Rd and Fairview Rd. ** Directions: Crescent Road & Dominion. Off Dominion. Discover an incredible investment or multi-generational living opportunity in one of Fort Erie's most desirable neighbourhoods. This newly renovated legal duplex offers two separate, self-contained units, each with its own private entrance-perfect for generating rental income or living in one unit while renting the other. The front is a 1 bedroom, ground floor unit and the back unit is a two level, with the 3 bedrooms on the second floor. Both units have been thoughtfully updated with a modern, tasteful aesthetic, featuring open-concept layouts, stainless steel appliances, stone countertops, and beautiful contemporary fixtures throughout. Bright, stylish, and move-in ready, each space provides comfortable living with low-maintenance appeal. Located in the heart of Crescent Park, you're just minutes from schools, shopping, the beach, and quick access to the Peace Bridge and QEW-making this a prime location for tenants and end-users alike. Whether you're an investor searching for a stress-free addition to your portfolio or a buyer seeking flexible living arrangements, this turnkey property checks every box. All windows in the back unit upper level are new, the foundation, including floor joist on the main level of the back unit is new. Both units have separate and brand new hydro meters, new electrical panels and most of the electrical is new and upgraded. Both units have their own laundry hook ups. Wide lot with lots of possibility! Possible lot severance. Buyer to do their own due diligence in respect. (id:27476)

Property Highlights

MLS® Number
X12630590
Type
Multi-family
Community Name
334 - Crescent Park
Land Size
70 x 110 FT
Parking Space Total
3

Building

Building Type
Duplex
Storeys
2.00
Square Footage
2000 - 2500 sqft
Bathrooms Total
2
Bedrooms Above Ground
4
Bedrooms Total
4
Exterior Finish
Vinyl siding
Fireplace Present
No
Basement Type
N/A (Unfinished)
Basement Features
Building Heating Type
Forced air
Heating Fuel
Natural gas
Building Cooling Type
Central air conditioning

Utilities

Water
Municipal water
Utility Sewer
Sanitary sewer

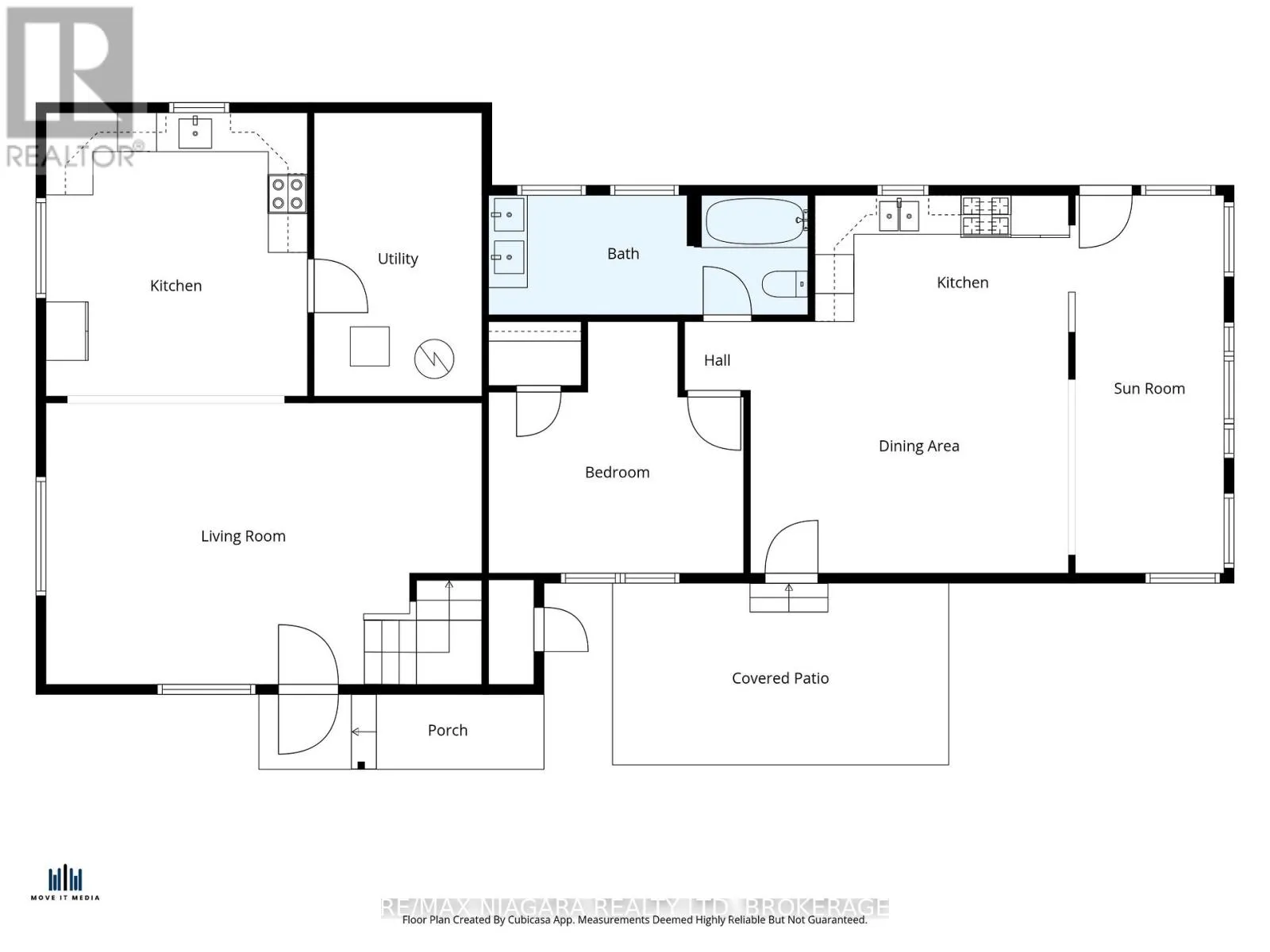
Room Layout

Sunroom
Main level
5.8 m x 2.28 m
Kitchen
Main level
1.94 m x 4.01 m
Dining room
Main level
3.87 m x 4.89 m
Bedroom
Main level
3.86 m x 3.92 m
Living room
Main level
4.33 m x 6.7 m
Kitchen
Main level
4.36 m x 4.02 m
Bathroom
Main level
1.84 m x 4.91 m
Bathroom
Upper Level
2.58 m x 2.79 m
Primary Bedroom
Upper Level
3.86 m x 3.8 m
Bedroom
Upper Level
3.66 m x 3.08 m
Bedroom
Upper Level
3.66 m x 3.76 m

Location