799 Burwell Street, Fort Erie, Ontario L2A 0H5

Listed for:
$499,900
3 beds
2 baths
Listed 30 days ago
Row / Townhouse for rent: 799 Burwell Street, Fort Erie, Ontario L2A 0H5

View all 3 photos

About

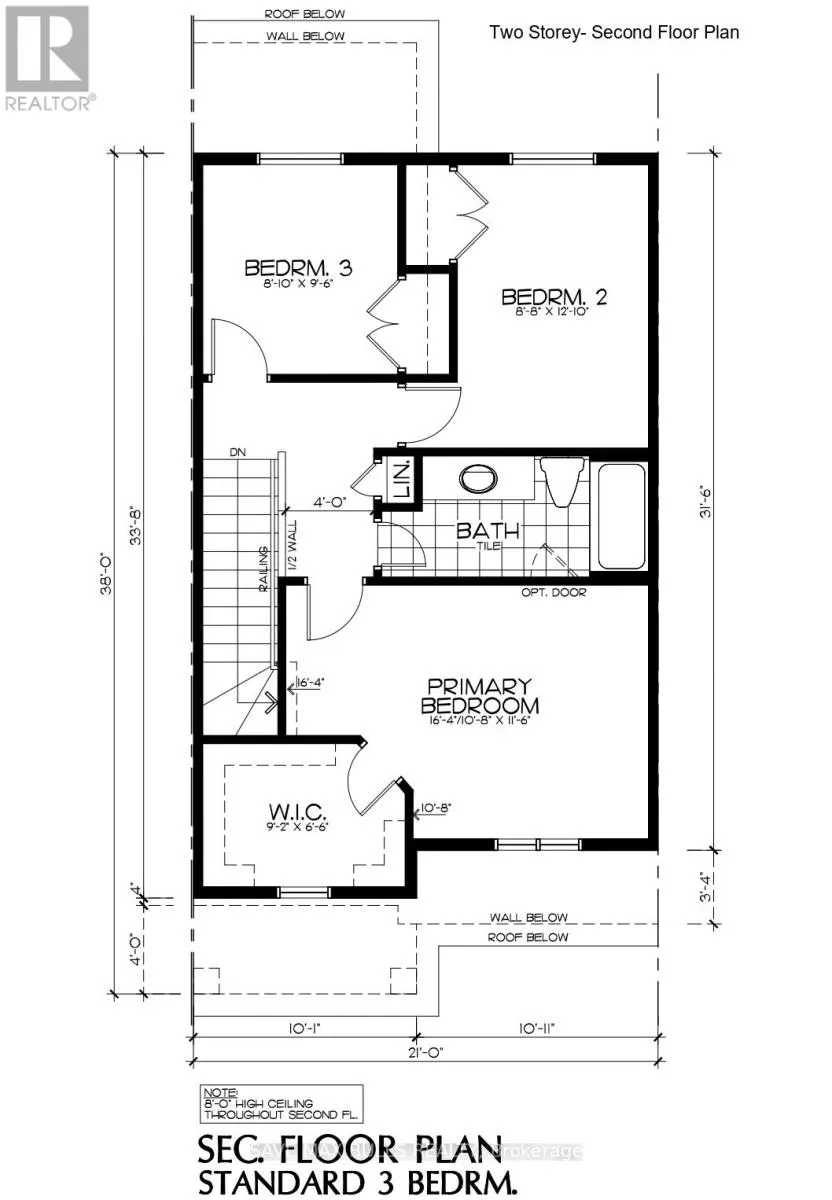
Burwell St and Louisa St Beautiful 2-storey freehold townhome built by a reputable builder, offering a thoughtfully designed open-concept layout. The main floor features a modern kitchen overlooking a spacious great room and breakfast area, enhanced by elegant 9-foot ceilings and a convenient 2-piecepowder room. The second level includes three well-appointed bedrooms and a 3-piece bathroom, providing comfortable living space for families. Additional highlights include an asphalt-paved driveway, one garage parking space plus one driveway parking, and close proximity to everyday amenities, all within a 5-10 minute drive. A perfect blend of quality craftsmanship, comfort,and location. It is very close to the Peace Bridge US Border. (id:27476)

Property Highlights

MLS® Number
X12704700
Type
Single Family
Community Name
333 - Lakeshore
Ownership Type
Freehold
Land Size
21 x 90 FT
Parking Space Total
2

Building

Building Type
Row / Townhouse
Storeys
2.00
Square Footage
1100 - 1500 sqft
Bathrooms Total
2
Bedrooms Above Ground
3
Bedrooms Total
3
Exterior Finish
Brick Facing, Vinyl siding
Fireplace Present
No
Basement Type
N/A (Unfinished)
Basement Features
Building Heating Type
Forced air
Heating Fuel
Natural gas
Building Cooling Type
None

Utilities

Water
Municipal water
Utility Sewer
Sanitary sewer

Room Layout

Primary Bedroom
Second level
4.97 m x 3.5 m
Bedroom 2
Second level
2.64 m x 3.91 m
Bedroom 3
Second level
2.6 m x 2.89 m
Eating area
Main level
2.74 m x 2.43 m
Great room
Main level
3.3 m x 3.96 m
Kitchen
Main level
2.79 m x 3.04 m

Location

Learn more about this property
Listing provided by:
SAVE MAX BULLS REALTY
MLS® number:
X12704700
Agent:
Sid Sarkar
*Indicates required field
Name is required
Email is required
Please enter a valid phone number (e.g., 416-111-1111).

Street Spotlight - For sale