203 Niagara Boulevard, Fort Erie, Ontario L2A 3G7

Listed for:
$1,290,000
0 beds
0 baths
Listed 101 days ago
Multi-Family for rent: 203 Niagara Boulevard, Fort Erie, Ontario L2A 3G7

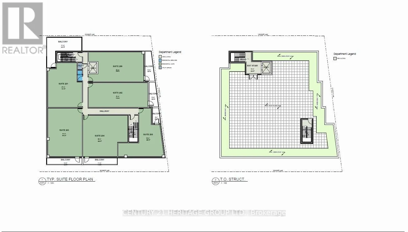
View all 15 photos

About

Niagara Street and Murry Street Rare offer - Builders and investors! Site plan approved (A truly exceptional ready-to-go development site) for a boutique low-rise 4 storeys condo with breathtaking waterfront views facing New York State in Niagara for sale! Originally appraised at $3.5M, NOW it's $1.29M under Power of Sale! * Steps to Niagara River Public Boat Launch; 5 Minutes drive to The Peace Bridge (which overlooks the Niagara River and connecting Canada and US Border Services Agency); 5 minutes to Great golf clubs and Horse race track; 18 minutes from Crystal Beach; 20 Minutes To Niagara Falls; 30 Minutes To Buffalo International Airport. * Blending luxury living with rare commercial flexibility. The approved concept features modern architecture with expansive glass and private balconies. Ground floor designed for vibrant retail or live/work possibilities, enhanced by a dramatic riverfront backdrop. * Surrounded by convenient amenities: restaurants, supermarkets, cafés, and shops and minutes to schools, libraries, museums, local parks, and sports centre. Beautiful natural scenery-perfect for walking, fishing, birdwatching, and enjoying stunning sunsets over the water. * Diversified economy, strengthened by its strategic trade location and direct access to the U.S. border infrastructure via the Peace Bridge. A major recent development by Siltech Corporation's $100 million investment in a new manufacturing facility. The town also benefits from a strong tourism sector, attracting approximately 600,000 visitors each year. * Don't miss out on this shovel-ready project! A rare chance to deliver a landmark development in a growing, high-demand area! Thank you for your interest and I look forward to talking to you soon! The sale shall be made on an "as-is, where-is" basis. (id:27476)

Property Highlights

MLS® Number
X12765984
Type
Multi-family
Community Name
332 - Central
Land Size
98.83 x 123 FT

Building

Building Type
Multi-Family
Square Footage
13207 sqft
Fireplace Present
No
Basement Type
Basement Features
Building Heating Type
Forced air
Heating Fuel
Natural gas
Building Cooling Type
None

Utilities

Water
Municipal water

Location

Learn more about this property
Listing provided by:
CENTURY 21 HERITAGE GROUP LTD.
MLS® number:
X12765984
Agent:
Anzi Xu
*Indicates required field
Name is required
Email is required
Please enter a valid phone number (e.g., 416-111-1111).