1 - 4155 Road #38, Frontenac, Ontario K0H 1V0

Listed for:
$18
0 beds
1 baths
Listed 335 days ago
1 - 4155 Road #38, Frontenac, Ontario K0H 1V0

View all 5 photos

About

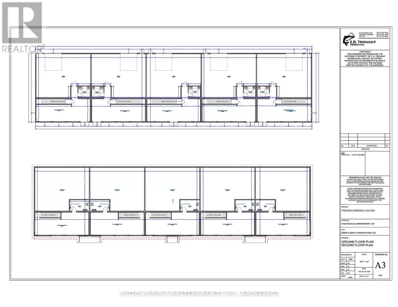
Cross Streets: 38. ** Directions: Road #38 between Yarker Road and Quinn Road on West Side. Exciting opportunity to increase your business presence in South Frontenac! To be built by Wemp & Smith Construction Ltd. one of Eastern Ontario's finest builders, this purpose built 5-unit commercial plaza will be ready for occupancy Spring/Summer of 2026. Each unit is perfectly outfitted to accommodate your growing business. Unit #1 will be on the South East corner of the building and will side onto Road #38 offering excellent exposure. The front of each unit will offer floor to ceiling glass, double front glass doors 72" x 96", 2 levels of office/retail space totaling 1161 sq-ft, spacious accessible 2 pc bath, large mechanical room and another 1152 sqft of garage/shop space at the rear with 12 x 12 door perfectly setup for your service related business. Each unit will be serviced by a propane or electric forced air furnace, cistern, separately metered for hydro and a communal septic system. Available at $18.00 per sqft gross rent with only your utilities extra. Road #38/Highway #38 is one of the areas busiest roads with annual average daily traffic of 8,100 vehicles (2023 study) with projections increasing this to just under 8,300 by 2033. This is a rare opportunity to invest in your business in South Frontenac! (id:27476)

Property Highlights

MLS® Number
X12022391
Type
Retail
Community Name
47 - Frontenac South
Land Size
3.96 ac

Building

Square Footage
2303 sqft
Bathrooms Total
1
Fireplace Present
No
Basement Type
Basement Features
Building Heating Type
Heating Fuel
Building Cooling Type
None

Utilities

Water
Cistern

Location

Learn more about this property
Listing provided by:
SUTTON GROUP-MASTERS REALTY INC., BROKERAGE
MLS® number:
X12022391
Agent:
Adam Rayner
*Indicates required field
Name is required
Email is required
Please enter a valid phone number (e.g., 416-111-1111).

Street Spotlight - For lease