5314-5316 Highway 38, Frontenac, Ontario K0H 1V0

Listed for:
$469,900
3 beds
1 baths
Listed 26 days ago
House for rent: 5314-5316 Highway 38, Frontenac, Ontario K0H 1V0

View all 21 photos

Learn more about this property
Listing provided by:
HOMETOWN REALTY KINGSTON CORP., BROKERAGE
MLS® number:
X12480383
Agent:
Hilary Mckenna
*Indicates required field
Name is required
Email is required
Please enter a valid phone number (e.g., 416-111-1111).

About

Cross Streets: Highway 38 & Jamieson Rd. ** Directions: Off Highway 38. Attention first time buyers or retirees! This 3 bedroom bungalow has been lovingly updated & maintained by the current owners & it's time for a new family to make memories here. Featuring open concept layout, newer flooring & paint throughout, updated kitchen & bath, finished basement (2024/25) with rough in for another bathroom, propane furnace (2019) & hot water tank (2024), gas BBQ hookup, newer front & back decking (2020), newer windows & doors on the main level, metal roof, good water, oversized double car garage plus outbuildings, garden boxes (2022/23). Situated on a double lot in Hartington, with severance potential - this is a great opportunity! (id:27476)

Property Highlights

MLS® Number
X12480383
Type
Single Family
Community Name
47 - Frontenac South
Ownership Type
Freehold
Land Size
152.9 x 152.9 FT
Parking Space Total
6

Building

Building Type
House
Storeys
1.00
Square Footage
700 - 1100 sqft
Bathrooms Total
1
Bedrooms Above Ground
3
Bedrooms Total
3
Exterior Finish
Vinyl siding
Fireplace Present
No
Basement Type
Full
Basement Features
Building Heating Type
Forced air
Heating Fuel
Propane
Building Cooling Type
Central air conditioning

Utilities

Utility Sewer
Septic System

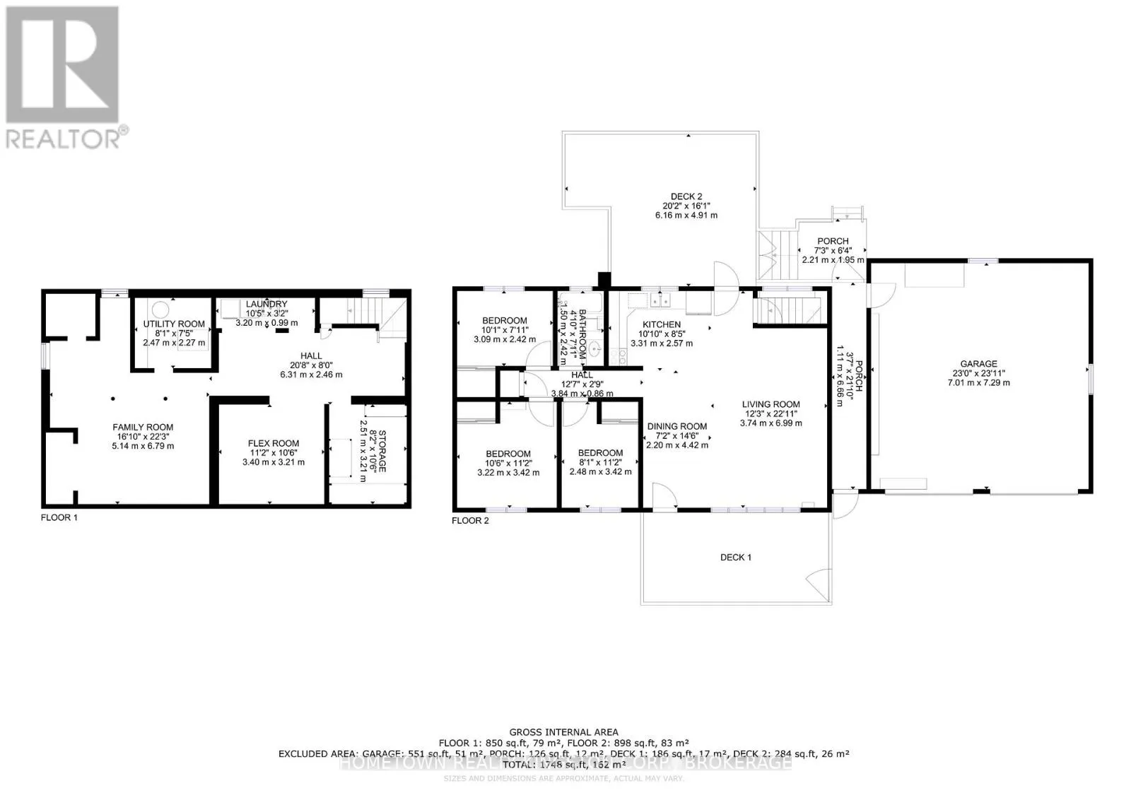
Room Layout

Den
Basement
3.4 m x 3.21 m
Family room
Basement
5.14 m x 6.79 m
Laundry room
Basement
3.2 m x 0.99 m
Other
Basement
2.51 m x 3.21 m
Utility room
Basement
2.47 m x 2.27 m
Living room
Main level
3.74 m x 6.99 m
Kitchen
Main level
3.31 m x 2.57 m
Dining room
Main level
2.2 m x 4.42 m
Bathroom
Main level
1.5 m x 2.42 m
Bedroom
Main level
2.48 m x 3.42 m
Bedroom
Main level
3.09 m x 2.42 m
Primary Bedroom
Main level
3.22 m x 3.42 m

Location