22 Hawkins Point, Georgian Bay, Ontario P0C 1H0

Listed for:
$535,000
0 beds
0 baths
Listed 37 days ago
22 Hawkins Point, Georgian Bay, Ontario P0C 1H0

View all 38 photos

Learn more about this property
Listing provided by:
RIGHT AT HOME REALTY
MLS® number:
X12020636
Agent:
Jason Xerri
*Indicates required field
Name is required
Email is required
Please enter a valid phone number (e.g., 416-111-1111).

About

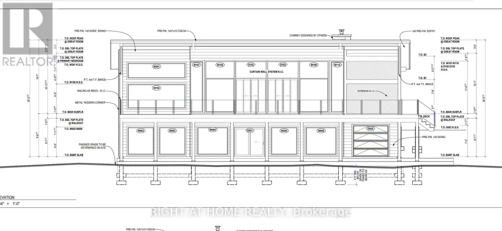
High St and Lake Joseph Rd Looking For The Right Property To Build Your Dream Waterfront Cottage? Build Your Dream Cottage On The Pristine Shores Of Beautiful Stewart Lake- One Of Muskoka's Best Kept Secrets (Under 2 Hours From Toronto). Aside From Your Own Waterfront, You Can Walk To The Local Beach, Boat Launch & Groceries. All The Essential Utilities Are In Place (municpal water/sewer and hydro and city plowed roads) and To Facilitate A Smooth Construction Process. The Construction Site Plan Has Already Been Approved, And The Property Is Primed For Permit Application, Ensuring A Hassle-Free Building Experience For The New Owner. Also, The Construction Design And Drawing Package Is Available For Permit Submission. A Detailed Survey Of The Land Has Been Completed, And Construction Stakes Have Been Located. Don't Miss This Exceptional Opportunity To Create Your Waterfront Paradise On The Picturesque Stewart Lake, Where You Can Enjoy The Peaceful Muskoka Lifestyle You've Always Envisioned. This Property Will Not Last Long! HST INCLUDED. Price Includes The brand new driveway and permits. This Lot Has A Natural Rock Formation (Hill) In The Middle Of The Lot Which Makes It A Perfect Place To Build A Cottage Overlooking The Water (id:27476)

Property Highlights

MLS® Number
X12020636
Type
Vacant Land
Community Name
Freeman
Land Size
91 x 320 FT ; AS PER GEOWARHOUSE|under 1/2 acre

Building

Square Footage
0 - 699 sqft
Fireplace Present
No
Basement Type
N/A (Other, See Remarks)
Basement Features
Building Heating Type
Other
Heating Fuel
Building Cooling Type

Utilities

Water
Municipal water
Utility Sewer
Sanitary sewer

Location