162 Winding Way, Georgian Bay, Ontario L0K 1S0

Listed for:
$1,039,000
3 beds
1 baths
Listed Today
House for rent: 162 Winding Way, Georgian Bay, Ontario L0K 1S0

View all 39 photos

Learn more about this property
Listing provided by:
Corcoran Horizon Realty
MLS® number:
X12399470
Agent:
Jeffrey Braun
*Indicates required field
Name is required
Email is required
Please enter a valid phone number (e.g., 416-111-1111).

About

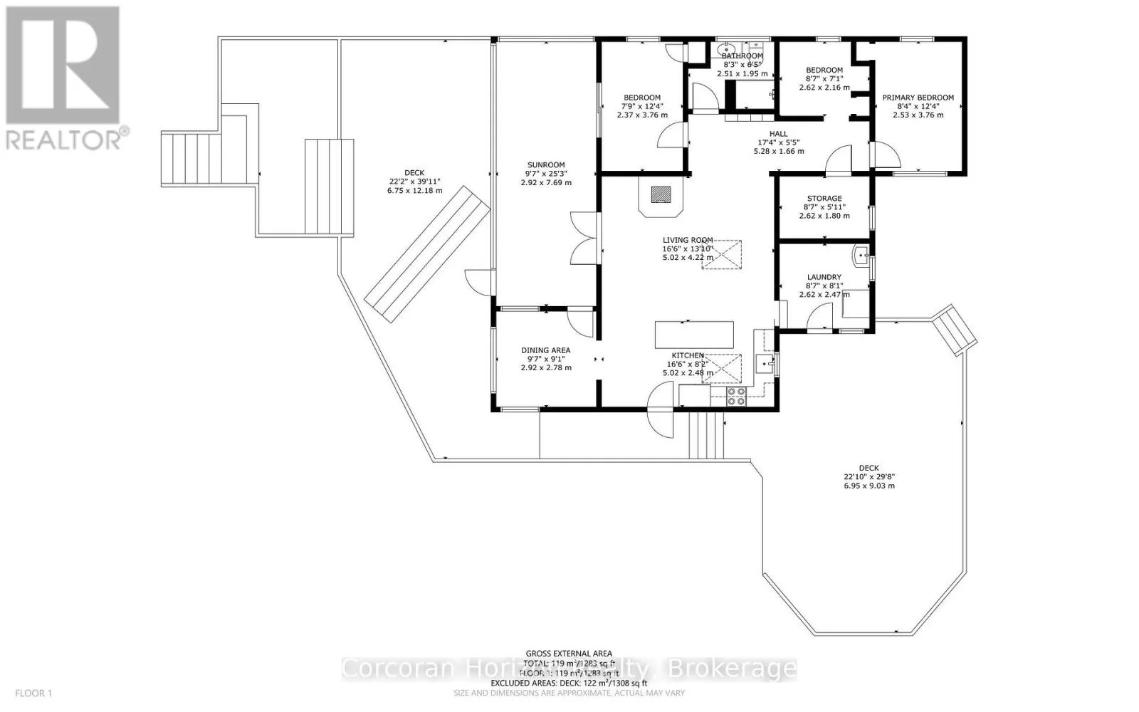
HWY 400 TO CROOKED BAY RD TURN LEFT TO WINDING WAY TO #4 This lakeside retreat offers everything you're looking for in a getaway or year round home. Situated along a private road on the tranquil shores of Six Mile Lake, the 1,500 sq. ft. cottage enjoys a pristine sandy beach with coveted southern exposure. The property is nestled in a serene bay and features gracefully terraced decks that wrap around the cottage perfect for entertaining or soaking in the view. Inside, the home offers a spacious living room and a sunroom, both designed for relaxing and enjoying the natural surroundings. The updated kitchen and numerous new windows ensure a bright, modern feel, and the recently added full size washer and dryer make daily life easy. A renovated bathroom features contemporary finishes, meaning this cottage is truly move in ready. With three comfortable bedrooms and thoughtful updates throughout, this exceptional property is ready for you to unwind and savour lakeside living. (id:27476)

Property Highlights

MLS® Number
X12399470
Type
Single Family
Community Name
Baxter
Ownership Type
Freehold
Land Size
142 x 188 FT ; 142 X 188.1
Parking Space Total
6

Building

Building Type
House
Storeys
1.00
Square Footage
1500 - 2000 sqft
Bathrooms Total
1
Bedrooms Above Ground
3
Bedrooms Total
3
Amenities
Beach
Exterior Finish
Wood
Fireplace Present
Yes
Basement Type
None
Basement Features
Building Heating Type
Other
Heating Fuel
Building Cooling Type
None

Utilities

Water
Lake/River Water Intake
Utility Sewer
Septic System

Room Layout

Sunroom
Main level
2.92 m x 7.69 m
Great room
Main level
5.02 m x 4.22 m
Kitchen
Main level
5.02 m x 2.48 m
Dining room
Main level
2.92 m x 2.78 m
Primary Bedroom
Main level
2.53 m x 3.76 m
Bedroom
Main level
2.37 m x 3.76 m
Bedroom
Main level
2.62 m x 2.16 m
Bathroom
Main level
2.51 m x 1.95 m
Pantry
Main level
2.62 m x 1.8 m

Location

Community Spotlight: Homes For sale in Your Neighborhood