50 Hillside Drive, Georgian Bay, Ontario L0K 1S0

Listed for:
$1,350,000
3 beds
4 baths
Listed 155 days ago
House for rent: 50 Hillside Drive, Georgian Bay, Ontario L0K 1S0

View all 10 photos

About

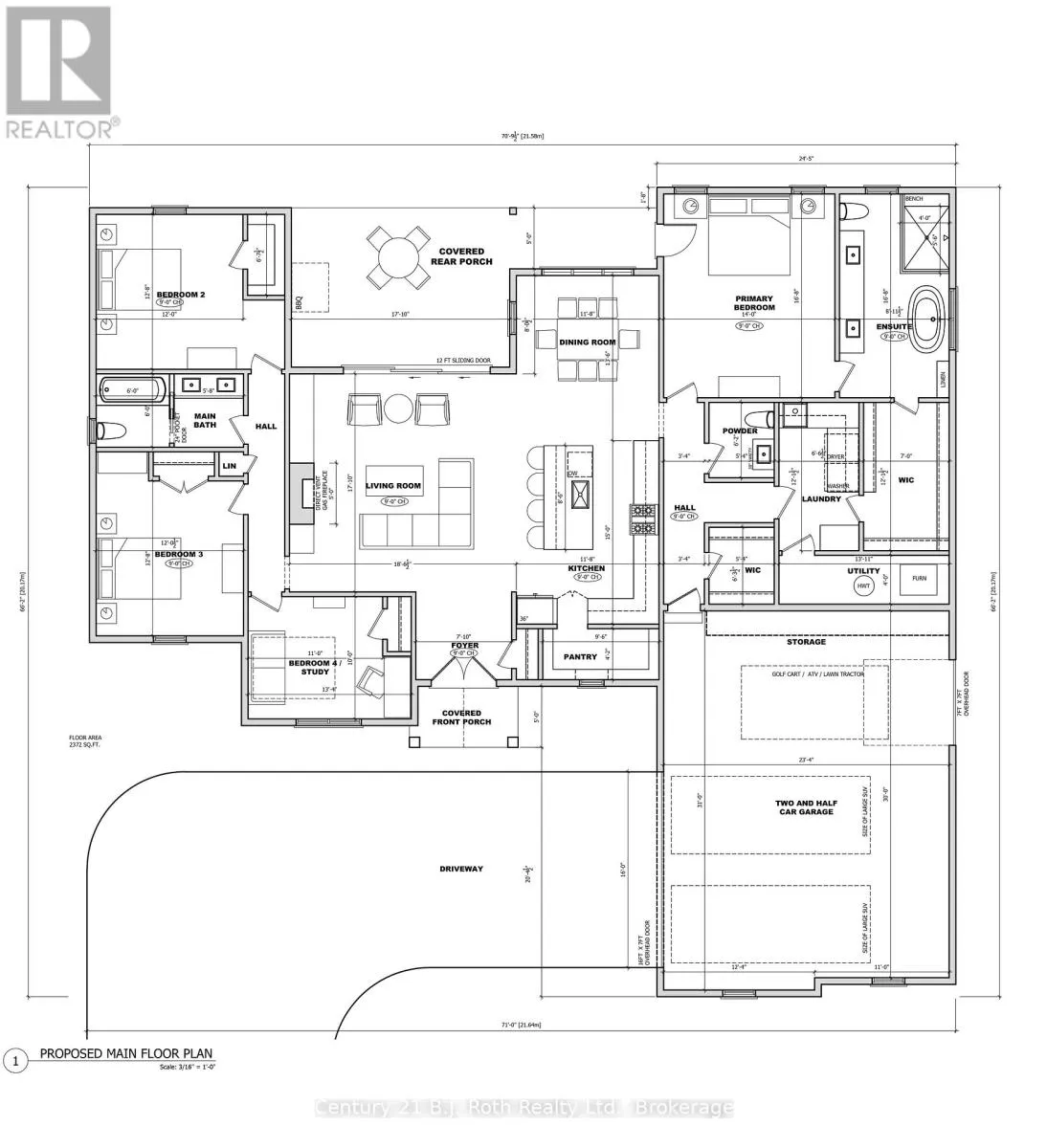
Cross Streets: Hwy 400/Honey Harbour Rd. ** Directions: Hwy 400 to Exit 156, Left on Honey Harbour Rd./District Rd. 5, to Right on Hillside Dr. It's time to live where you play, where luxury meets leisure, perfectly situated in a growing executive Port Severn community. Full of custom features with modern architecture design on a generous lot, this to-be-built ranch home offers the ideal blend of sophisticated and active living, perfect for young families or couples seeking to downsize. Step through a welcoming, covered entrance into the spacious foyer to a home designed for comfort and elegance. The open-concept living room, kitchen, and dining area boast vaulted ceilings throughout, creating an airy and expansive feel, perfect for entertaining or relaxing with loved ones. Beyond the interior, walk out from the living and dining areas to an impressive covered back outdoor lounge, offering a private sanctuary for al fresco dining or simply unwinding amidst the tranquility of your expansive yard. Car enthusiasts and hobbyists will appreciate the 2.5-car garage, complete with a convenient single overhead door leading directly to the backyard, providing easy access for all your toys and tools.Built for ultimate comfort and efficiency, you'll enjoy in-floor radiant heating in the concrete slab foundation, plus superior insulation for year-round comfort. Enjoy Port Severn's dynamic lifestyle at the local beaches, boating in Georgian Bay and the Trent Severn, pickleball in Honey Harbour, exploring the nearby Trans-Canada Trail, skiing, and snowmobile trails. You're also within walking distance to the Oak Bay Golf Course, dining and community centre. Shop and dine locally, in Midland, Orillia, or Port Carling, or take a 1.5-hour drive to the GTA. Don't miss this rare opportunity to secure your dream home and start living your best life in 2026! (id:27476)

Property Highlights

MLS® Number
X12539122
Type
Single Family
Community Name
Baxter
Ownership Type
Freehold
Land Size
174.7 x 310 FT
Parking Space Total
8

Building

Building Type
House
Storeys
1.00
Square Footage
2500 - 3000 sqft
Bathrooms Total
4
Bedrooms Above Ground
3
Bedrooms Total
3
Amenities
Golf Nearby, Marina, Place of Worship
Exterior Finish
Wood
Fireplace Present
Yes
Basement Type
None
Basement Features
Building Heating Type
Radiant heat
Heating Fuel
Other
Building Cooling Type
Central air conditioning

Utilities

Water
Drilled Well
Utility Sewer
Septic System

Room Layout

Recreational, Games room
Upper Level
8.3 m x 5.18 m
Living room
Ground level
5.44 m x 5.65 m
Bathroom
Ground level
3.56 m x 1.83 m
Pantry
Ground level
2.9 m x 1.27 m
Kitchen
Ground level
4.57 m x 3.56 m
Dining room
Ground level
4.15 m x 3.56 m
Primary Bedroom
Ground level
5.08 m x 4.27 m
Bathroom
Ground level
2.72 m x 5.08 m
Bedroom 2
Ground level
3.86 m x 4.37 m
Bedroom 3
Ground level
4.57 m x 3.68 m
Study
Ground level
4.06 m x 3.05 m
Laundry room
Ground level
1.98 m x 3.68 m
Utility room
Ground level
4.24 m x 1.22 m

Location

Learn more about this property
Listing provided by:
Century 21 B.J. Roth Realty Ltd.
MLS® number:
X12539122
Agent:
Suzanne Knight
*Indicates required field
Name is required
Email is required
Please enter a valid phone number (e.g., 416-111-1111).

Community Spotlight: Homes For sale in Your Neighborhood