110 Mountain Lake Drive, Georgian Bluffs, Ontario N0H 2T0

Listed for:
$798,000
2 beds
1 baths
Listed 110 days ago
House for rent: 110 Mountain Lake Drive, Georgian Bluffs, Ontario N0H 2T0

View all 21 photos

About

ONCE ON MOUNTAIN LAKE ROAD , TURN RIGHT ONTO MOUNTAIN LAKE DR. IT IS THE 3RD PLROPERTY ON THE LEFT. ESTATE WATERFRONT PROPERTY!! Welcome to a piece of nostalgic paradise, nestled in a picturesque country setting on a private lake. The construction of a 2 bedroom Shop-dominium has begun, with a possession date in and around March 2026. Live here while you design and build your dream estate! Then the shop-dominium can easily be converted to a shop, in-law suite, or guest house, once your dream home is built. This 7 acre beauty has over 300 feet of lake frontage. It showcases a stately, charming beam barn, with lots of great potential for the creative hobbyist, and other endless opportunities. New drilled well 2024. With a plethora of space to build your executive dream home, overlooking the stunning south facing views of Mountain Lake, and a shop for your toys, the sky is the limit!! Whether you wake up to the loons calling, or jump in the kayaks and meander around this serene lake you will enjoy every season at this peaceful Shangri-la! (id:27476)

Property Highlights

MLS® Number
40784706
Type
Single Family
Ownership Type
Freehold
Land Size
5 - 9.99 acres
Parking Space Total
12

Building

Building Type
House
Storeys
1.00
Square Footage
1300 sqft
Bathrooms Total
1
Bedrooms Above Ground
2
Bedrooms Total
2
Amenities
Beach, Marina
Exterior Finish
Vinyl siding
Fireplace Present
No
Basement Type
None
Basement Features
Building Heating Type
In Floor Heating
Heating Fuel
Building Cooling Type
None

Utilities

Water
Drilled Well
Utility Sewer
Septic System

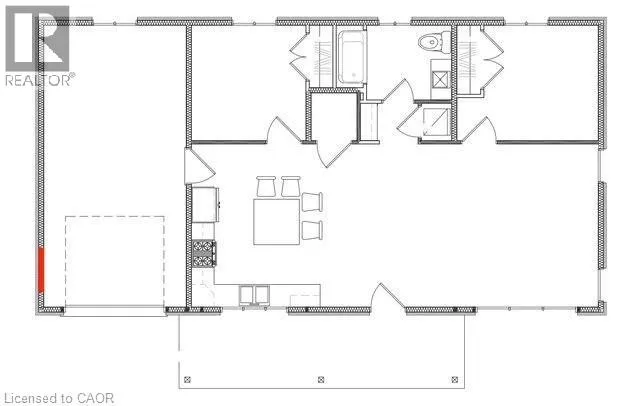
Room Layout

Kitchen
Main level
14'4'' x 11'8''
Dining room
Main level
14'4'' x 11'3''
Living room
Main level
14'4'' x 13'6''
3pc Bathroom
Main level
8' x 6'6''
Bedroom
Main level
10'2'' x 10'2''
Primary Bedroom
Main level
12'6'' x 10'7''

Location

Learn more about this property
Listing provided by:
eXp Realty
MLS® number:
40784706
Agent:
Denise Laura Bannerman
*Indicates required field
Name is required
Email is required
Please enter a valid phone number (e.g., 416-111-1111).