504240 Grey Road 1 Road W, Georgian Bluffs, Ontario N0H 2T0

Listed for:
$990,000
2 beds
2 baths
Listed 50 days ago
House for rent: 504240 Grey Road 1 Road W, Georgian Bluffs, Ontario N0H 2T0

View all 48 photos

About

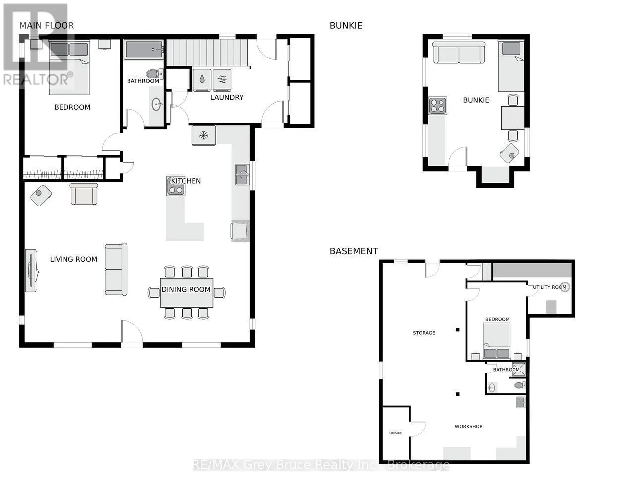
Cross Streets: coles sideroad. ** Directions: GREY ROAD 1. A VIEW OF GEORGIAN BAY THAT GOES FOR MILES, AND water acess that you own. The panoramic views from this property are incredible, The VIEW OF ALL 3 ISLANDS. The property has so much to offer, gardens, storage sheds, trails, wildlife, is all here to be enjoyed. The home has the principal bedroom on the main floor, open concept Living room dining and kitchen area. Large walk out basement with another bedroom. There is a fully equiped Bunkie, a large storage garage area, out door fire-pit, pond for fishing, as well as plenty of room for family campers to come and stay. If your looking for Privacy, and your own slice of nature you must check this out! lane way across is the owned lane way to your water front access. signs says private road it is part of this parcel. High speed internet. (id:27476)

Property Highlights

MLS® Number
X12932538
Type
Single Family
Community Name
Georgian Bluffs
Ownership Type
Freehold
Land Size
1442 x 1380 FT|25 - 50 acres
Parking Space Total
30

Building

Building Type
House
Storeys
1.00
Square Footage
1500 - 2000 sqft
Bathrooms Total
2
Bedrooms Above Ground
1
Bedrooms Total
2
Amenities
Fireplace(s)
Exterior Finish
Vinyl siding
Fireplace Present
Yes
Basement Type
N/A, Partial
Basement Features
Walk out
Building Heating Type
Forced air, Not known
Heating Fuel
Oil, Wood
Building Cooling Type
Central air conditioning

Location

Learn more about this property
Listing provided by:
RE/MAX Grey Bruce Realty Inc.
MLS® number:
X12932538
Agent:
Shannon Deckers
*Indicates required field
Name is required
Email is required
Please enter a valid phone number (e.g., 416-111-1111).

Street Spotlight - For sale