109 Pefferlaw Road, Georgina, Ontario L0E 1N0

Listed for:
$3,299,800
0 beds
0 baths
Listed 35 days ago
109 Pefferlaw Road, Georgina, Ontario L0E 1N0

View all 33 photos

Learn more about this property
Listing provided by:
HOMELIFE NEW WORLD REALTY INC.
MLS® number:
N11899060
Agent:
William Zhu
*Indicates required field
Name is required
Email is required
Please enter a valid phone number (e.g., 416-111-1111).

About

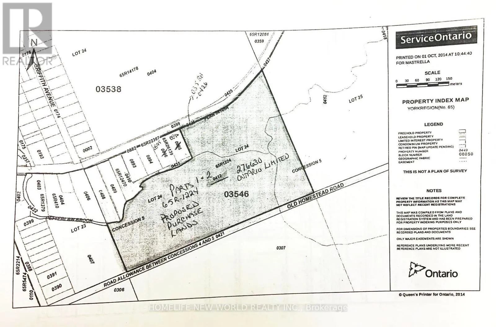
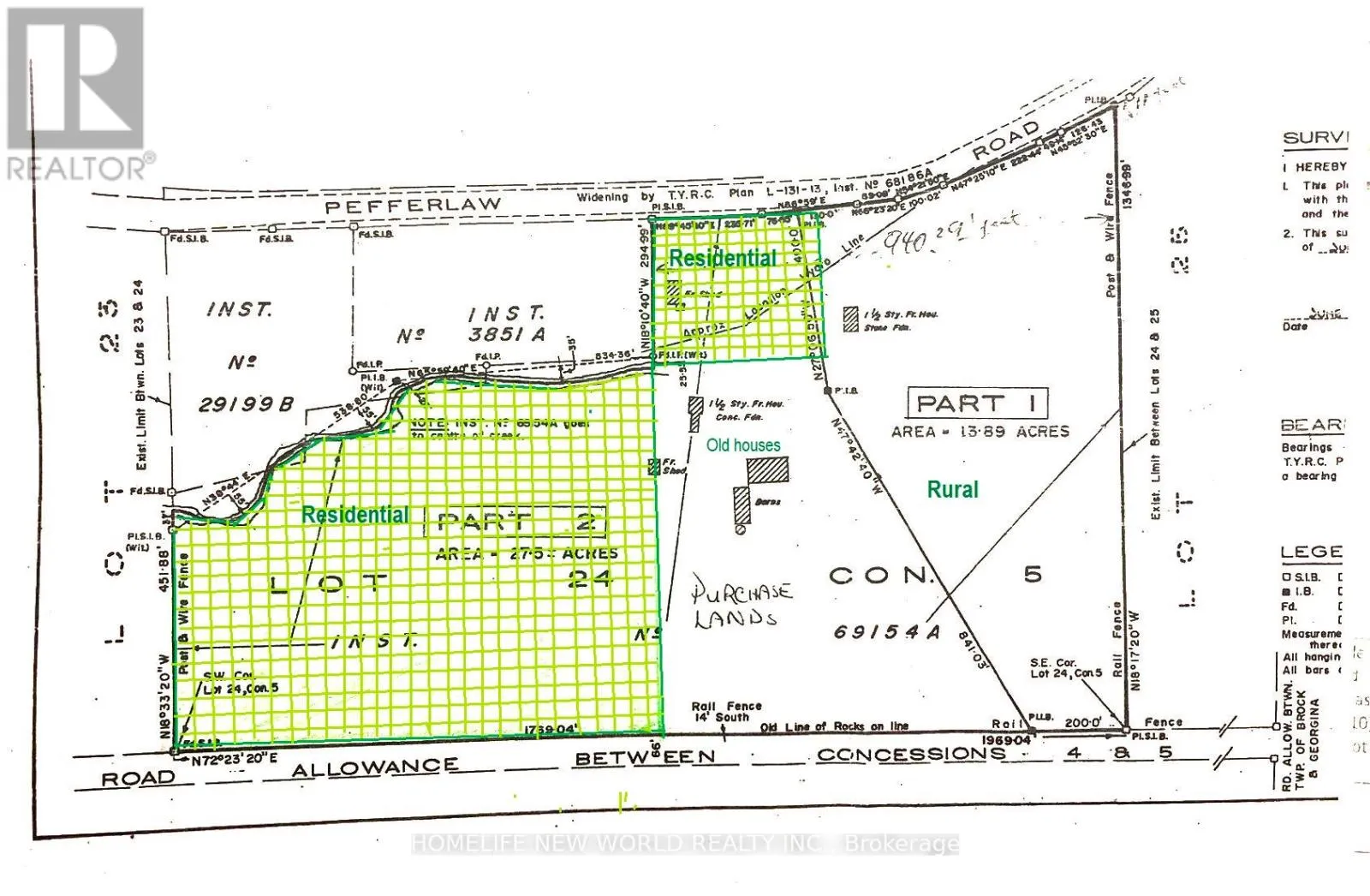
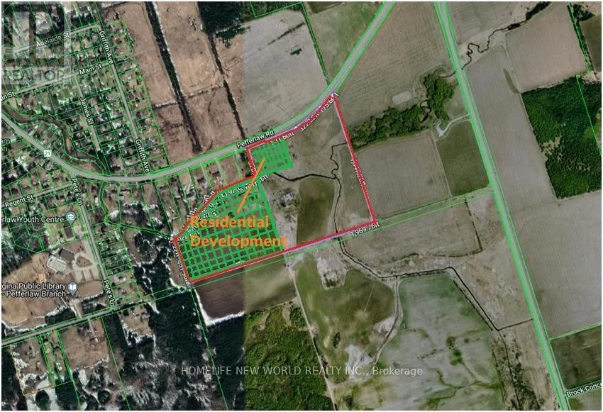
Pefferlaw Rd & Lake Ridge Rd A Fabulous Opportunity To Own the Developable Land of 41.39 Acres In The Heart Of Pefferlaw, the Next Develop Spot! Within the Pefferlaw Secondary Plan, the West portion & Part of North Area of the Land are Designated As "Residential" in the Assessment Notice and the Property is Described As or 100-Vacant residential land...". Ready to be Developed for Multiple Estate Homes, or for Future Opportunity to be Divided into Much More Small Building Lots. Fronting on Pefferlaw Rd, and Close to Lake Ridge Rd (the Regional Boundary), Near Planned Future Extension of HWY 404 and Lake Simcoe. Clear and Plain, No Mountain Rocks and Forests! As First Step, Buyer May Apply for to Rebuild Houses Besides the Old Structures on the Land. Buyers To Do Due Diligence. No Municipal Address Assigned now, But May Apply for As 109 Pefferlaw Rd. Only 55 Minutes to Toronto. Pls See Attached File for More Details. **EXTRAS** Possible VTB Mortgage for Qualified Buyer. Pefferlaw Is The Last Place of York Region To Invest In Developable Lands At Affordable Price For Future Soaring Value. The Utilities Available on Pefferlaw Rd. (id:27476)

Property Highlights

MLS® Number
N11899060
Type
Vacant Land
Community Name
Pefferlaw
Land Size
41.39 ac

Building

Square Footage
41 ac
Amenities
Highway, Recreation
Fireplace Present
No
Basement Type
Basement Features
Building Heating Type
Heating Fuel
Building Cooling Type

Location